查看完整案例

收藏

下载
© Greg Benson
格雷格·本森
架构师提供的文本描述。由1100名建筑师设计,佩里世界之家是宾夕法尼亚大学新的全球参与中心。新的空间允许大学12所学校的分支机构以跨学科的方式处理国际事务。为了适应该组织的多样化项目,这座17400平方英尺的建筑包括一系列空间,包括教室、会议室、14间办公室、50人会议室和公共区域,所有这些都是为了鼓励互动。其核心是世界论坛,一个玻璃封闭的中庭,作为一个充满活力的多用途活动空间,能够举办研讨会、讲座和特别活动。
Text description provided by the architects. Designed by 1100 Architect, Perry World House serves as the University of Pennsylvania’s new hub for global engagement. The new space allows affiliates from each of the university’s 12 schools to address international affairs in a cross-disciplinary way. To accommodate the organization’s diverse programs, the 17,400-square-foot building includes a range of spaces, including classrooms, meeting rooms, 14 offices, a 50-person conference room, and common areas, all designed to encourage interaction. At its core is the World Forum, a glass-enclosed atrium that serves as a dynamic multi-use event space capable of hosting seminars, lectures, and special events.
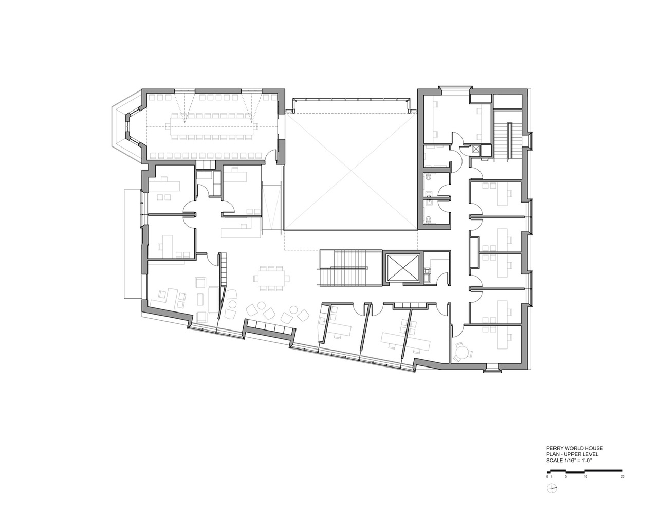
Main Floor Plan
主平面图
这座新的石灰石建筑位于宾夕法尼亚大学校园的中心,坐落在主要的步行街、蝗虫步行街和38街繁忙的城市大道的交汇处。佩里世界之家通过相应地调节其规模来调节这些不同的条件,既响应于南面和西面的步行街规模,又响应其北部和东部的城市规模。
Located at the heart of the University of Pennsylvania campus, the new limestone-clad building sits at the intersection of the main pedestrian route, Locust Walk, and the busy urban thoroughfare of 38th Street. Perry World House mediates these different conditions by modulating its scale accordingly, responding to both the pedestrian scale to its south and west and to the urban scale to its north and east.
© Greg Benson
格雷格·本森
该建筑还有助于塑造可用的室外空间,因为它的景观将用于非正式聚会,并作为校园步行体验的一部分。总部位于费城的景观建筑公司BryanHanes工作室设计了户外空间。
The building also helps to shape usable outdoor space, as its landscape will be used for informal gathering and as part of the pedestrian experience of the campus. Studio Bryan Hanes, a Philadelphia-based landscape architecture firm, designed the outdoor spaces.
© Greg Benson
格雷格·本森
根据历史文献,1100名建筑师选择抢救和重建1851年建造的现有房屋的一部分。这样做可以使新建筑与其西面相邻的校园建筑的国内规模相关联,如凯利作家之家(Kelly Writers House)。现存的结构也有助于参考19世纪费城的西部扩张。最初的灰泥屋最近被用作兄弟会之家。
1100 Architect elected to salvage and reconstruct, per historic documentation, a portion of an existing house built in 1851. Doing this allows the new building to relate to the domestic scale of the adjacent campus buildings to its west, such as the Kelly Writers House. The extant structure also helps to reference Philadelphia’s westward expansion during the 19th century. The original stucco house most recently served as a fraternity house.
© Greg Benson
格雷格·本森
在LEED银牌认证的轨道上,该项目包含了许多可持续的设计特色,包括丰富的自然光(从98%的占用空间中直接看到)、雨水捕获(平均年降雨量的90%)、节能装置和高回收含量的材料。
On track for LEED Silver certification, the project incorporates many sustainable design features, including abundant natural light (direct views out from 98% of occupied spaces), stormwater capture (90% of the average annual rainfall), energy-efficient fixtures, and materials with high recycled content.
© Eric Petschek
C.Eric Petschek
“佩里世界之家以其开放和灵活的空间,反映并支持其所在机构的目标,”FAIA的1100名建筑师大卫·皮斯卡斯(David Piscuskas)说。“我们创造了一个充满自然光的环境,在不同的环境中可以讨论不同的观点。”空间之间的透明度加强了学术学科和不同世界观之间的合作,而19世纪的小屋和21世纪的建筑之间的对话则形成了这些追求的永恒。“
“With its open and flexible spaces, Perry World House reflects and supports the aims of the institution it houses," says 1100 Architect founding principal David Piscuskas, FAIA. "We have created an environment, filled with natural light, where different points of view can be discussed in different types of settings. Transparency between spaces reinforces an emphasis on cooperation between academic disciplines and different world views, while the dialogue of a 19th-century cottage and a 21st-century building gives form to the timelessness of these pursuits.”
© Eric Petschek
C.Eric Petschek
“佩里世界之家的目的是在欢迎和舒适的同时达到一个非常严肃的目的。这种双重意图表现在它的主要外观上,它的新的制度规模和原有的住宅规模组件的直截了当和挑衅性的邻接。这一转变清楚地表达了该大学希望同时在一个地方展望过去和未来的愿望,“宾夕法尼亚大学校园建筑师大卫·霍伦伯格(DavidHollenberg)说。
“Perry World House is designed to serve a very serious purpose while being welcoming and comfortable. This dual intent is expressed on its primary facade, with the blunt and provocative adjacency of its new institutional scale and pre-existing residential scale components. The turn clearly expresses the university's desire to look to its past and its future, all at once and in one place,” says University of Pennsylvania campus architect David Hollenberg, AIA.
Architects 1100 Architect
Location Philadelphia, PA 19104, United States
Category University
Architect in Charge David Piscuskas, FAIA, LEED AP; Juergen Riehm, FAIA, BDA; Ed Parker, AIA
Area 17400.0 m2
Project Year 2016
Photographs Greg Benson, Eric Petschek
Manufacturers Loading...
客服
消息
收藏
下载
最近











