查看完整案例

收藏

下载
采购产品总承包商特殊工程有限公司结构工程师坎贝尔科莫工程分包商Jetco承包公司包层供应商阿莫斯木材工程总成包层供应商氧化铝窗供应商制造商装货。多规格少规格
General Contractor Special Projects Limited Structural Engineer Campbell Comeau Engineering Subcontractor JETCO Contracting Inc Cladding Supplier Amos Wood Engineered Assemblies Cladding Supplier Alumitech Window Supplier Manufacturers Loading... More Specs Less Specs
© Riley Smith Photographer
莱利·史密斯摄影师
架构师提供的文本描述。韦伯斯特露台是一座著名的现代运动房屋,分三个阶段建造。它有一个开放的计划,居住/用餐/厨房,有一个独特的倾斜天花板延伸到一个单坡悬臂屋顶。
Text description provided by the architects. Webster Terrace was a distinguished modern movement house built in three stages. It had an open plan living/dining/kitchen with a distinctive sloped ceiling extending into a mono slope cantilevered roof.
© Riley Smith Photographer
莱利·史密斯摄影师
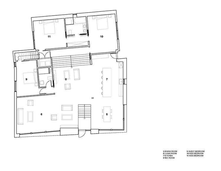
客户希望尽可能多地打开主楼层,建造一层第二层,两间卧室各有一间浴室。主要挑战是:
The Client wished to open the main floor as much as possible and build a second storey with two bedrooms, each with a bathroom. The main challenges were to:
·在房子防晒的同时增加一层二层楼
· add a second storey while keeping the house weather proof
·更多地展示了大倾斜天花板平面的空间特性
· ive even more presence to the spatial qualities of the large sloped ceiling plane
© Riley Smith Photographer
莱利·史密斯摄影师
*插入新的供暖、制冷、电力、管道、通信和娱乐系统
· insert new heating, cooling, power, plumbing, communications and entertainment systems
改善包络和系统的能量性能
· improve the energy performance of the envelope and systems
·使用当代、高性能、零边缘细节的材料
· use contemporary, high performance materials with zero edge details
© Riley Smith Photographer
莱利·史密斯摄影师
提尔对第一个挑战的反应是设计出一种“针眼”结构策略,通过屋顶上最小的开口将新的钢结构连接起来,并在同一天立即将它们密封起来。新的地板悬挂在现有的倾斜屋顶平面上,在下面创造了一个有用的存储空间。新的上层甲板的结构也是为了在旧屋顶上盘旋。
TEAL's response to the first challenge was to devise an 'eye of the needle' structural strategy that threaded the new steel structure through minimal openings in the roof, immediately sealing them the same day. The new floor is suspended over the existing sloped roof plane, creating a useful storage space underneath. The new upper deck is also structured to hover over the old roof
© Riley Smith Photographer
莱利·史密斯摄影师
第二个挑战是,拆除主层的大部分墙壁,比以前更多地暴露斜向倾斜的天花板平面,并创造一套宽楼梯,作为娱乐场所的集合座位。
The second challenge was met by removing most of the walls on the main level, exposing the diagonally sloping ceiling plane even more than before and creating a set of wide stairs that serve as a gathering seats for entertainment.
© Riley Smith Photographer
莱利·史密斯摄影师
现有房屋的信封被剥离内部和新旧墙壁都用高性能喷雾泡沫绝缘。所有的窗户都是新的,铝框架,带有热裂。零边玻璃细节的角落在两个层次显示惊人的南方的哈利法克斯的西北海湾海口。外包层是一个零维护的热材和纤维水泥板的组合,没有暴露在整个房子上的紧固件。
The envelope of the existing house was stripped internally and both the old and new walls were insulated with high-performance spray foam. All windows are new, aluminum-framed with thermal breaks. Zero-edge glass detailing on the corners at both levels reveals stunning southern views of Halifax's North-West Arm ocean inlet. The exterior cladding is a combination of zero-maintenance thermal wood and fiber cement panels with no exposed fasteners on the entire house.
景观是零维护河流鹅卵石,允许最大的渗透性的网站。
The landscape is zero maintenance river pebbles, allowing maximum permeability for the site.
这座房子在年轻的时候是一种大胆和现代的形式,它已经被扩展的空间恢复了活力,有了更好的视野,一种圆滑的二十一世纪的形式和以最简约的方式详细描述的材料。
The house was a daring and contemporary form in its younger days and it has been rejuvenated with expanded spaces with improved access to views, a sleek twenty-first-century form and materials detailed in the most minimal manner
© Riley Smith Photographer
莱利·史密斯摄影师
Architects TEAL
Location Halifax Regional Municipality, Canada
Category Houses
Area 3800.0 ft2
Project Year 2017
Photographs Riley Smith Photographer
Manufacturers Loading...
客服
消息
收藏
下载
最近





















