查看完整案例

收藏

下载
© Luke Carter Wilton
(卢克·卡特·威尔顿
架构师提供的文本描述。ToodyayShack位于埃文河(Avon River)的洪泛区,距离西澳大利亚的珀斯市(Perth)有一个小时的路程。周围图代山的景色渗透到棚屋的上下层。到达木材甲板周围的小屋,最终变成一个愚蠢的码头。从里面到外面的门槛不断地被玩出来,门消失在他们的砖门槛之上。ToodyayShack是一种记忆和设计的融合,创造了这座气候退化的建筑,它的砖石底座和帐篷启发屋顶结构,弯曲到微妙的周围景观。
Text description provided by the architects. The Toodyay Shack occupies a town site on the flood plains of the Avon River, an hour east from the city Perth in Western Australia. Views of the surrounding Toodyay hills penetrate into the upper and lower levels of the shack. The arrival onto timber decks surrounds the shack and eventually turns into a folly jetty. The threshold of what is inside to outside is continually played out with doors disappearing past their brick thresholds. The Toodyay Shack is a fusion of memory and design come together to create this climatic regressive building with its brick monolith base and tent inspired roof structure over, that bends to the subtle surrounding landscape.
© Luke Carter Wilton
(卢克·卡特·威尔顿
ToodyayShack位于一个重新审视和重新配置的1/2英亩城镇用地上。房子的内存也被重新查看和重新配置。气候回归的房子与什么是内部和什么是外部的阈值。航行和露营的比喻完全准确的方式,房子是激活和使用取决于天气。这一操作的实施,包括使房屋适应气候,是一个有木飞顶的砖洞。
The Toodyay Shack sits on a re-viewed and re-configured 1/2 acre town site. The memory of the house is also re-viewed and re-configured. The climatic regression house plays with thresholds of what is internal and what is external. Sailing a boat and going camping metaphors are completely accurate in the way the house is activated and used depending the weather. The actualization of this manipulation that includes orientating house to climate is a brick cave with a timber fly roof.
© Luke Carter Wilton
(卢克·卡特·威尔顿
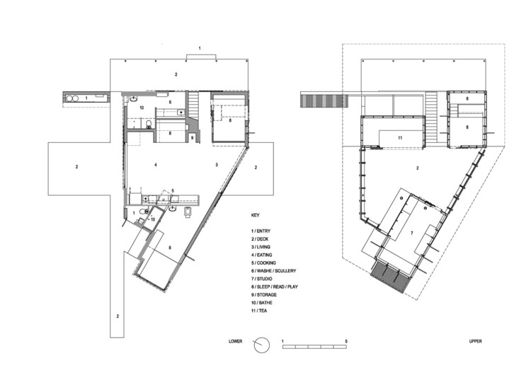
Floor Plans
平面图
© Luke Carter Wilton
(卢克·卡特·威尔顿
门打开,你会发现一个潮湿的房间和浴室,屋顶飞过,天花板和外部允许呼吸这些内部空间。另一种选择是通往外部有盖空间的外部楼梯,并可进入这一公共区域外的三个房间。
Doors open up and you discover a wet room and bathhouse with fly roof over as ceiling and outside allowed to breathe with these internal spaces. The alternative is access to external stairs up to an external covered space with access to the three rooms off this communal area.
© Luke Carter Wilton
(卢克·卡特·威尔顿
塔,书房和茶室,允许不同的景观和接近河流和洪水平原与屋顶的感觉,即使没有墙壁。身体不断地被转向远处的小山开放。在较低的水平,你到达一个没有门槛的门,进入一个多功能的烹饪/进食/休息/阅读/聆听的房间,两扇大的外部滑动门滑过了他们的门槛。当气候与等高线一起运行的时候,房子就会向外推。
The tower, study and tea room, allow different perspectives of the landscape and proximity of the river and flood plain with the roof giving the sense of shelter and enclosure, even though there are no walls. The body is continually being turned to open up to the hills beyond. At the lower level you arrive through a door with no thresholds and into a multi functioning room of cooking/eating/resting/reading/listening with two large externally sliding doors that slide past their thresholds. The house moves pushes out against the lands contours while the climate run with the contours.
© Luke Carter Wilton
(卢克·卡特·威尔顿
Architects Paul Wakelam Architect - A Workshop
Location Perth, Australia
Category Houses
Area 2850.0 ft2
Project Year 2017
Photographs Luke Carter Wilton
Manufacturers Loading...
客服
消息
收藏
下载
最近























