查看完整案例

收藏

下载
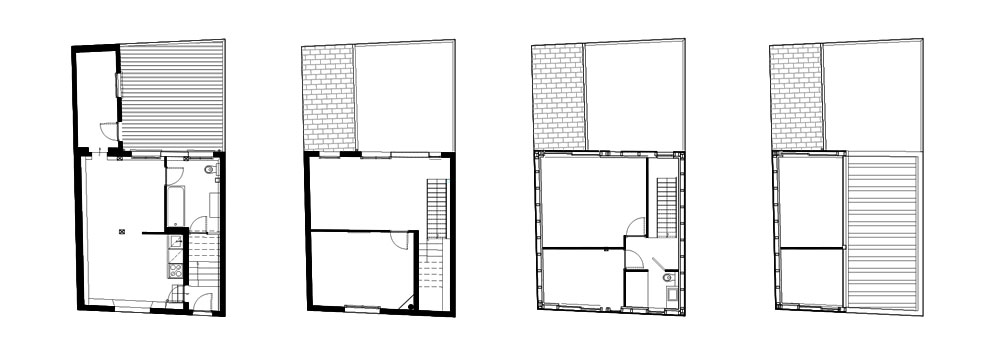
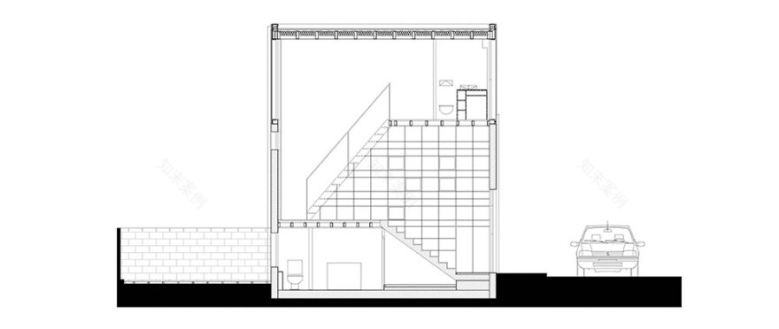
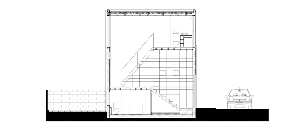
通过增加一个新的层次来延长这座现有的房子的决定是在保留家庭记忆的同时提供新的区域。历史在继续,后代现在居住在这所房子里。
由于其特点:重量轻,安装方便,安装速度快,施工现场清洁,环境友好,因此决定采用木质结构竖立立式延长线。
扩展具有简单但有表现力的形状。两块不同大小的木块覆盖着木覆层,每一块都使用不同的精华:杨树和松树。这个抽象的图形构图就像一个城市节拍,在一个尊重的对话中回响着近邻的比例。
事实上,这种高度的变化使得自然光线可以透过天花板的开口穿透卧室。此外,双音量楼梯核心在房子的中心是沐浴光由于慷慨的窗户。所有这些系统都很好地代表了根据空间及其周围环境的方向探索各种自然光的来源和观点。
Firm WY-TO
Type Residential › Apartment Private House
STATUS Built
YEAR 2015
SIZE 0 sqft - 1000 sqft
BUDGET $100K - 500K
keywordsarchitecture, architecture news, interiors, interior design, portfolio, spec, brands, marketplace, products Urban Beat
关键词建筑,建筑新闻,室内设计,组合,规格,品牌,市场,产品城市节奏
客服
消息
收藏
下载
最近























