查看完整案例

收藏

下载
© Jae Youn Kim
(Jae Youn Kim)
架构师提供的文本描述。这房子是为一对夫妇设计的。丈夫是艺术系的大学教授。该遗址位于一座山坡上,视野开阔,西北有一条宽阔的斜坡,南面是一座山。它提出了一个特别的挑战,即房屋的方向和主要观点的方向不一样。
Text description provided by the architects. The house was designed for a couple. The husband is a college professor at art department. The site is placed on a hillside with a sweeping view and a broad slope to the northwest, and faces a mountain to the south. It poses a particular challenge that the orientation of the house and of the main view cannot be the same.
Exploded Isometry
爆炸
这对夫妇想在丈夫退休后,除了居住外,还想有一个地方从事各种社会活动和活动。为了做到这一点,他们想要一个独立的客房,除了主楼,为丈夫提供独立的书房和工作室,以及一个可以容纳大约20人的多用途空间。
The couple wanted a place for various social activities and events, in addition to residence, after the husband retires. To do so, they wanted a separate guest house apart from the main house, an independent study-cum-atelier for the husband, as well as a multi-purpose space that can accommodate about 20 people.
© Jae Youn Kim
(Jae Youn Kim)
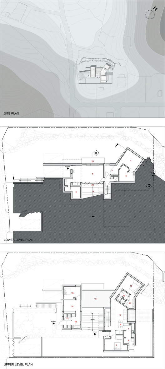
考虑到场地的条件和夫妇的需要,我们决定最大限度地向西北方向发展,并设计一个灵活的空间来容纳各种活动,并进行仔细的分区规划。利用斜坡,我们把朝南的居住小区放在上层,分为主楼和招待所。在较低的层次上,我们设计了一个多用途的房间,将这两座建筑连接起来.
Considering the site conditions and the couple’s needs, we decided to maximize a view to the northwest and design a flexible space to accommodate various events, with a careful section planning. Using the slope, we put south-facing living quarters on the upper level, separated into a main house and a guest house. On the lower level, we designed a multi-purpose room that connects the two buildings.
© Jae Youn Kim
(Jae Youn Kim)
最显著的空间特征是一个台阶庭院,跨越两个层次,位于主楼和招待所之间。这是房子的空间中心,也是最有趣的地方。庭院连接上下两层,可以灵活地容纳各种活动。庭院顶部有一个观景台,将主房子和客房连接起来,作为房子的一个风景区,可以看到全景。
The most notable spatial feature is a stepped courtyard that spans the two levels, located between the main house and the guest house. This serves as a spatial center of the house, and is the most interesting place. The courtyard connects the upper and the lower levels, and can flexibly accommodate various events. The courtyard is topped by a viewing deck that connects the main house with the guest house, serving as a scenic point of the house with a panoramic view.
Floor Plan
在涂饰材料方面,采用深灰色砖块、锌板、浅灰色水泥板制造出单色外观,使房屋自然融入周围环境。在房子里,也使用了白桦树的单色和自然色调来强调与透过窗户看到的周围景色的对比。房子的外部和内部的建筑元素相互联系,从而扩大了房子的空间范围,因为外部空间被认为是室内的延伸,反之亦然。
As for finishing materials, dark gray bricks and zinc panels, light gray cement panels were used to create a monochromatic exterior so that the house can naturally blend into the surrounding. Inside the house, also monochromatic colors and natural tone of white birch were used to emphasize the contrast with the surrounding view seen through windows. Architectural elements of the exterior and interior of the house were linked, thereby expanding spatial scope of the house as the exterior space is perceived as an extension of the interior, and vice versa.
© Jae Youn Kim
(Jae Youn Kim)
Architects UAARL_Urban Alternative Architecture Research Lab
Location Yangpyeong-gun, South Korea
Category Houses
Architect in Charge Woo Hyoung Lee , AIA, LEED AP
Design Team Jin Hyeon Seo
Area 278.34 m2
Project Year 2017
Photographs Jae Youn Kim
Manufacturers Loading...
客服
消息
收藏
下载
最近




































