查看完整案例

收藏

下载
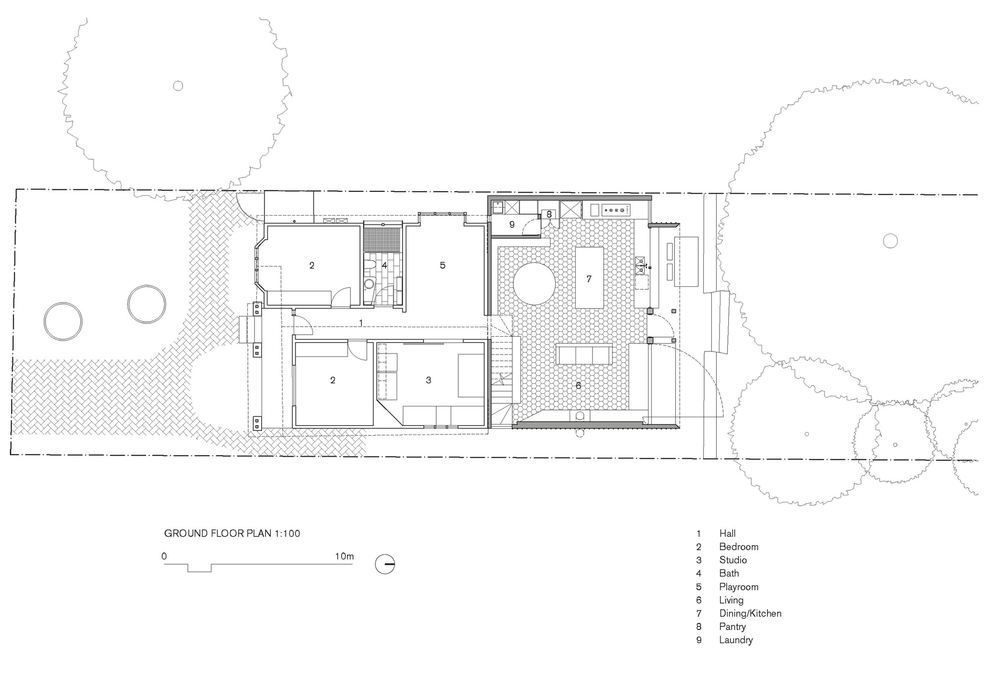
架构师:BKK建筑师地点:Northcote维克,澳大利亚面积:205.0平方米照片:香农麦格拉思, 希拉里?沃克项目团队:Adi Atic西蒙?诺玛德琳山毛榉建造者:Creo利比里亚;杰里米・迪克森,朱利安柴棚结构工程师:佩雷特・辛普森斯坦顿建筑测量师:第二组电气:薪酬福利电管道:绿灯管道画家:JT Colourtone 细木工制品:内阁和家具店景观设计:Tai Snaith)景观萎缩:建筑工厂从架构师。娃娃的房子是一个想法关于提供灵活、高度可持续生活对其上下文和能够适应不断变化的需求的家庭长寿命。 第一个已知的玩偶之家,最初称为“小房子”在1557年展示当地的创意者和工匠来显示他们的商品。洋娃娃的房子后来玩的孩子,想象的空间。 共享思想的创造力、工艺、玩和想象力支撑这个家,同时也反映的灵活性玩偶之家,卧室可以成为客厅或餐厅,只需移动家具或细木工。两个空间的新成员在很大程度上是由堆叠在彼此,没有门和墙壁,家具和细木工划分空间,意味着使用。 房子的两个层次被很明显;低沉没在年级和接地,而上层飙升到树顶。 新释放的计划前的老房子客厅和餐厅领域已经成为一个灵活的缓冲区空间和艺术家工作室和游戏室,创造力和中心的家里玩。有一个怀旧参考孩子的简单的画房子的最基本形式,座冒着滚滚浓烟的烟囱,一个幸福的地方和内容。 facade的开场字幕是基于儿童节目游戏学校,每个窗口都是不同的,并提供门户到其他世界。 房子的内部空间可以完全打开,扩展到那边的风景。 材料精心挑选的能力展示的工艺水平,从超大的木梁暴露于手绘瓷砖的所有者。可持续的房子重新考虑从第一原理;改变透风,不保温的木材平房变成一个表现良好的未来的房子。 房子是使重定向到北,雇员:完美的太阳能访问,一个R7绝缘结构,高度密封的信封,热质量、低VOC材料和优秀的交叉通风。照明是定制设计和制造低能量完全集成到构建织物。 从斑马条纹外观是借来的,只有马动物生活在大草原。 被热成像时,斑马线整个不同的颜色显示出较大的温差,产生小电流的气流在他们的身体。主要景观是实用和耐旱,使用灰水的循环,果树和地下雨水水箱水的蔬菜。 有野花,肉质植物和当地人点缀着可食用植物和蔬菜如番茄、南瓜和豆类。 前面的两个圆形混凝土种植者妄水箱顶部和底部。
客服
消息
收藏
下载
最近






















