查看完整案例

收藏

下载
架构师提供的文本描述。连接新旧的主题
Text description provided by the architects. A motif to connect old and new
Aedas设计上海地标中心位于苏州河北岸,位于上海四川北路和闸浦路之间的商业区内,地理位置优越,可俯瞰北外滩和黄浦江。该遗址周围是低矮的住宅大厦和一些历史建筑,如上海邮电局、上海总医院、新亚饭店、瑞康大厦和外百度大桥,形成了独特的城市结构。新的综合体为商业中心和周边地区创造了协同效应,并将上海的新旧城市连接起来。
Located on the north bank of Suzhou Creek and within the business area across Sichuan North Road and Zhapu Road in Shanghai, Aedas-design Shanghai Landmark Center enjoys a prime location with excellent views towards the Northern Bund and Huangpu River. The site is surrounded by low-rise residential blocks and a number of historic buildings such as the Shanghai Post and Telecommunication Bureau, Shanghai General Hospital, New Asia Hotel, Ruikang Mansion and Outer Baidu Bridge, forming a unique urban fabric. The new complex creates a synergy for the commercial hub and the neighbourhood and connects the old and new of Shanghai city.
Courtesy of Aedas
艾达斯
这是一项由刘嘉诚设计的商业发展计划,以回应东、北两处充满活力的邻里及低层住宅,由南至北,有两座高楼,北面有零售部分,包括一个开放的中央广场,供饮食及各种户外活动之用。建筑物沿场地边缘放置,以预留四个角落的空旷空间,作为过渡节点与周围的高密度环境。建筑群的聚集和方向突出了建筑层,同时也促进了日照穿透和通风到相邻的住宅街区。中央广场将外部与地面上方和下面的零售部件连接起来,并将周边社区的循环扩展到建筑群。
In response to the vibrant neighbourhood and low-rise domestic buildings on the east and north, this commercial development designed by Executive Director Cary Lau, retreats from south to north with two towers sit in the south of the site with the retail components in the north, embracing an open central plaza for food and beverage and various outdoor activities. The buildings are placed along the site edges to reserve open spaces at the four corners, acting as transitional nodes to the surrounding high-density context. The massing and orientation of the complex highlight the architectural layers whilst facilitating daylight penetration and ventilation to the adjoining domestic blocks. The central plaza connects the exterior with the retail components above and below the ground, also extends the circulation from the adjacent communities to the complex.
Courtesy of Aedas
艾达斯
受附近老建筑的中国传统窗户的启发,立面设计诠释了当代语言中的东方元素,创造了一个令人印象深刻的主题,为发展设定了基调和身份。与典型的玻璃塔相比,这种对塔面的现代解释使得反射率更低,并使邻近的建筑物免受光污染和干扰。标志性的东方主题延伸到零售板块,不仅作为装饰屏幕在外观上,而且还添加有趣的,动画灯光图案的内层。
Inspired by the traditional Chinese windows from the nearby old buildings, the façade design interprets the oriental element in a contemporary language and creates an impressive motif, setting the tone and identity of the development. This modern interpretation on the tower façade allows less reflectance compared to typical glass towers, and relieves its neighbouring buildings from light pollution and disturbance. The signature oriental motif extends to the retail blocks, not only serving as an ornamental screen on the façade but also adding interesting, animated light patterns on the inner layer.
Courtesy of Aedas
艾达斯
Courtesy of Aedas
艾达斯
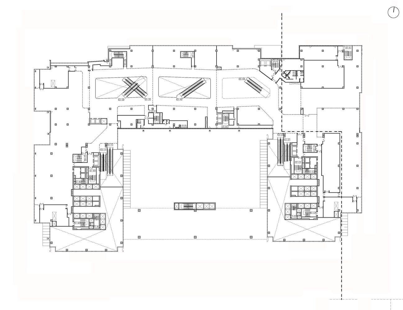
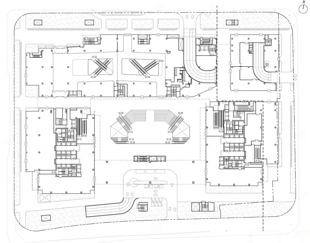
零售交通连接零售街区,连接所有入口和中庭。中央中庭上方的天窗有利于日光穿透,绿色屋顶提供了一个欢迎的公共空间。
The retail traffic links up the retail block, connecting all entrances and atria. The skylight above the central atrium facilitates daylight penetration and the green roof offers a welcoming public space.
需要在新的发展中反映这座历史城市的完整性和活力,并确保为现在和未来的使用提供最大的灵活性,这对这一项目构成了最大的挑战。干净的长方形结构与历史建筑的城市结构以及遗址周围当前和未来的发展非常吻合,而双塔则象征着通往虹口区的大门。现代建筑具有谦逊、东方的触觉和色调,是一种巨大的视觉效果,突出了城市独特的历史和特色,创造了一个地标,在苏州河沿岸享受着标志性的上海天际线。
The needs to reflect the integrity and energy of the historic city in a new development, and ensure maximum flexibility for present and future uses, pose the biggest challenge for this project. The clean-lined, rectangular form goes well with the urban fabric for the historical buildings as well as current and future developments around the site, whilst the twin tower symbolically signifies the gateway to the Hongkou district. The contemporary architecture with a sense of humble, oriental touch and overtone serves as a large visual that accentuates the city’s unique history and identity, creating a landmark enjoying the signature Shanghai skyline along the Suzhou Creek.
Courtesy of Aedas
艾达斯
Architects Aedas
Location Shanghai, China
Category Retail
Director Cary Lau
Area 0.0 m2
Project Year 2016
Manufacturers Loading...
客服
消息
收藏
下载
最近






















