查看完整案例

收藏

下载
© Joshua McHugh
乔舒亚·麦休
架构师提供的文本描述。在购买了一座占地1万平方英尺的现代住宅“老果园”一年后,房主们又推出了烈火的马克莱建筑,使住宅得到了完整的改造。最初的结构被配置成一个线性的,单层的,玻璃和金属盒子,在两端刻到地下室的水平。这提供了低档进入车库的一端和一个小庭院的两个较低层卧室在另一端。
Text description provided by the architects. One year after purchasing Old Orchard, a 10,000 square foot modern spec house, the homeowners brought on Blaze Makoid Architecture to give the residence a complete redo. The original structure was configured as a linear, single story, glass and metal box with grade carved down to basement level at both ends. This provided below-grade access to a garage at one end and a small courtyard for two lower level bedrooms at the other.
© Joshua McHugh
乔舒亚·麦休
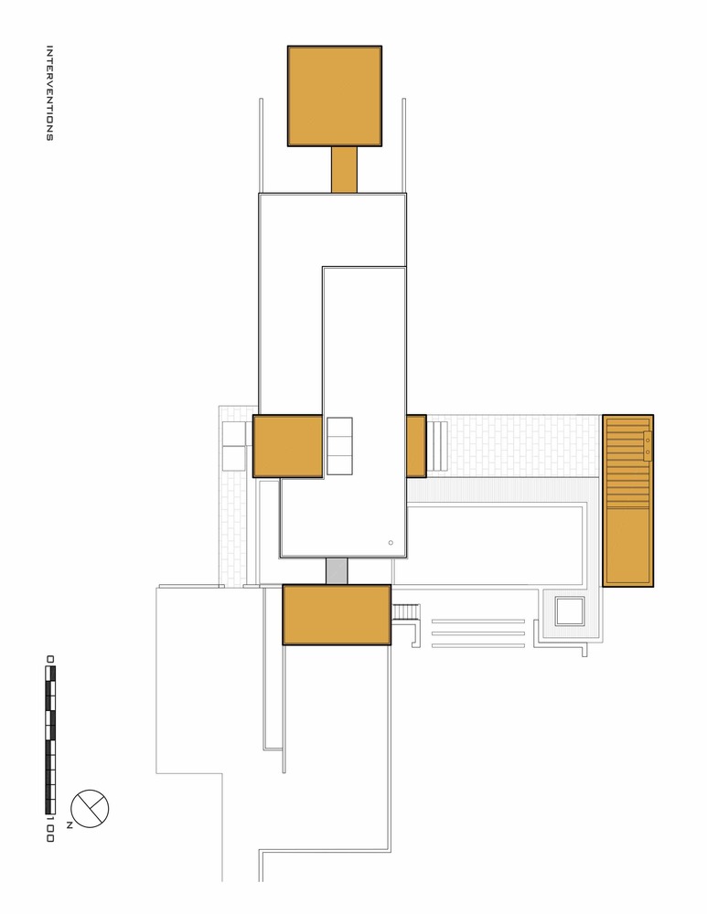
First Floor Plan
一层平面图
© Joshua McHugh
乔舒亚·麦休
BMA用架构时刻解决了一系列编程问题。简单的木材和玻璃元素的语言提供了一个可识别的对比与现有建筑的铝皮,并开始温暖的材料调色板。增加了一个新的木‘管’来平分主结构,在现有地板之上几步创建了一个入口点,并在整个地产上建立了一个与新的游泳池房屋结构的视觉对齐。第二和第三单元发生在现有结构的两端,由小型玻璃桥梁隔开。
BMA addressed a series of programmatic issues with architectural moments. The language of simple wood and glass elements offers a recognizable contrast to the aluminum skin of the existing building and begins to warm the material palette. A new wood ‘tube’ was added to bisect the main structure, creating an entry plinth a few steps above the existing floor and setting up a visual alignment with a new pool house structure across the property. The second and third elements occur at either end of the existing structure, separated by small glass bridges.
© Joshua McHugh
乔舒亚·麦休
新的家庭办公室跨越和帮助屏蔽不那么诱人的沉陷车库驱动器,提供了一个更有吸引力的木材外观在接近。位于另一端的两层主卧由一间木屋和一间玻璃卧室组成,而浴室则位于水泥、地下室层的基座上,里面有一间通向沉陷的庭院的大更衣室。该项目的其他组成部分包括重新设计厨房和将部分地下室改造为家庭温泉和剧院项目。
The new home office spans and helps to screen the not so inviting sunken garage drive, providing a more inviting, wood façade during approach. The two story master suite at the opposite end consists of a wood and glass bedroom and bath at grade level sitting atop a concrete, basement level plinth containing a substantial dressing room that opens up to the sunken courtyard. Other components of the project include a redesign of the kitchen and the conversion of part of the basement level to home spa and theatre programs.
© Joshua McHugh
乔舒亚·麦休
Architects Blaze Makoid Architecture
Location East Hampton, United States
Category Houses
Area 10000.0 ft2
Project Year 2015
Photographs Joshua McHugh
Manufacturers Loading...
客服
消息
收藏
下载
最近











































