查看完整案例

收藏

下载
架构师提供的文本描述。这家人的家位于巴塞罗那的上层。为了达到向南和向东的最佳方向,并有一个宽敞的花园,可以俯瞰海景和巴塞罗尼城,这座建筑被搬到了地块的后面。
Text description provided by the architects. This family home is located in the upper area of Barcelona. The building was move to the rear of the plot in order to achieve the best orientation towards the south and east, and to have a spacious garden with panoramic views of the sea and the city of Barcelone.
© Julio Cunill
朱利奥·库尼尔
© Julio Cunill
朱利奥·库尼尔
它靠近环形公路,需要正式解决噪音污染问题。这个问题在家里解决了,设计了一个木制石板的正面,并在地块的边缘设计了一个绿色的墙-滑石墙。
Its proximity to a ring road required a formal solution to noise pollution. It was resolved in the home, by designing a façade of wooden slats and planning a green wall-talus on the edge of the lot.
© Julio Cunill
朱利奥·库尼尔
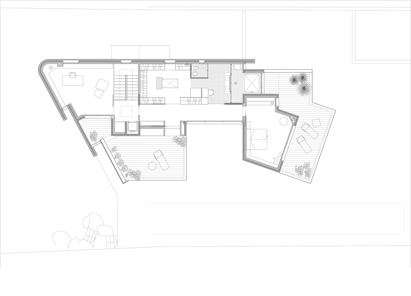
通往房屋和车库的行人通道位于工地的一侧。不同的楼层,地面,第一层,第二层和地下室是按照地形的纵向形式发展的,中间有一个楼梯井和电梯,将每一层的不同区域分开。
The pedestrian access to the house and to the garage is located to the side of the site. The different floors, ground, first, second and basement are developed following the longitudinal form of the terrain, with a stairwell and elevator in the middle that divides the different areas in each level.
地下室和车库包括储藏室、机房、酒窖和花园后面的健身房,游泳池就在那里。卧室有书房和露台,在一楼和二楼。
The basement as well as the garage includes storage rooms, machine room, wine cellar and gym in the back of the garden, where the swimming pool is. The bedrooms, with a study and terraces, are on the first and on the second floor.
© Julio Cunill
朱利奥·库尼尔
木头和灌木锤打的混凝土与大型木结构的对比有助于把房子与花园及其周围环境结合起来。
The contrast between the wood and bush-hammered concrete with large woodwork structures serves to integrate the house with the garden and its surroundings.
© Julio Cunill
朱利奥·库尼尔
Architects BC Estudio Architects
Location Barcelona, Spain
Category Houses
Area 570.0 m2
Project Year 2009
Photographs Julio Cunill
Manufacturers Loading...
客服
消息
收藏
下载
最近

















