查看完整案例

收藏

下载
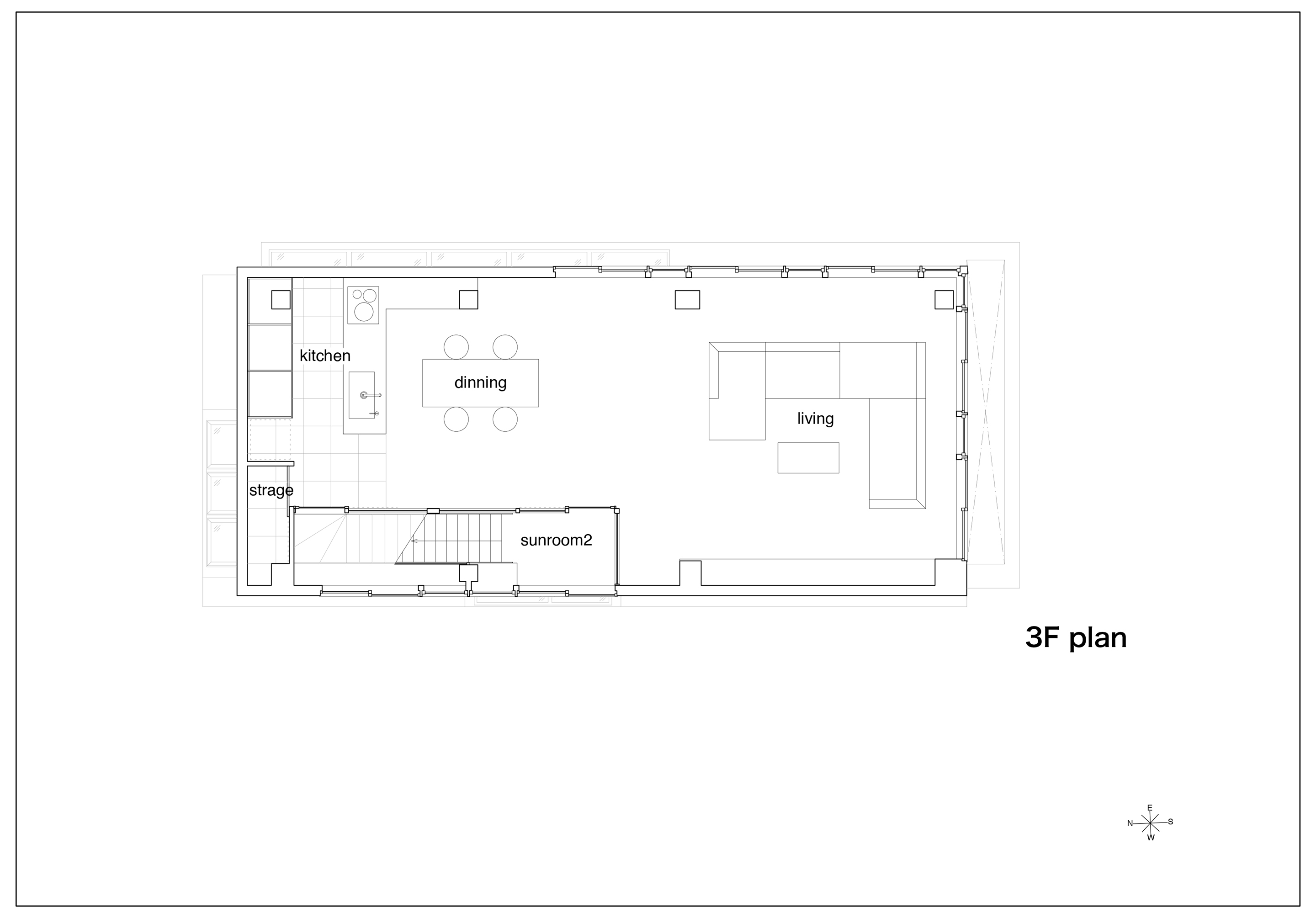
这是在当地城市郊区建造的一所房子的重建。每一层都有一个不同的三层结构,作为一种组合具有不同的特性.为了注意周围的环境,我们在上下移动的同时,在每一层中堆放的体积略小于建筑物的覆盖率。第一层是封闭的,因为它是一面墙在后面,墙壁在两边。唯一开放的路旁是一个内置车库,以减轻冬季雪铲的负担。二楼不对外开放的一侧不能看到意料之外的风景,如邻近的洗衣窗或日光浴室(金泽市的金泽雨区,安装在许多房屋中)作为洗衣房,这一东侧与日光浴是唯一开放的。它是第一次向周围的环境开放,当它是第三层,那里的能见度可以打开很远。在较低的楼层,垂直表面的开口较小,没有利用体积的偏差,而是提供了顶灯,在空气方向上的开口按规定保证了照明率,窗口随着向上一层的增加而逐渐进入垂直表面,从而产生了视图的变化。外墙广泛应用于从镀锌钢板、空调设备、电气设备等镀锌钢板到建筑、土木工程基础设施、电器、汽车、容器和固定装置等各个部位,采用耐用性和加工性优良的材料制成。最初它有一种反射周围环境的光泽,但锌逐渐溶解,变成暗灰色。它覆盖着能够承受恶劣气候条件、多功能性和时间连续性变化的材料,从现在起将继续作为当地城市郊区的住宅区来更新,我认为我可以接近这个环境。作为内部,第一层和第二层都充满了建筑家具材料和细节,试图改写每一个边界的存在。三楼有一个大的一室空间,从那里通往屋顶的楼梯是半户外的,使用与外墙相同的材料。通过将内部和内部、内部和内部之间的边界用一种不兼容的、稍微不同的按钮捏住,它现在的位置就不是了。
Firm Yuichi Yoshida & Associates
Type Residential › Private House
STATUS Built
YEAR 2016
SIZE 0 sqft - 1000 sqft
BUDGET $500K - 1M
keywordsarchitecture, architecture news, interiors, interior design, portfolio, spec, brands, marketplace, products SHINBOHON・HOUSE・K
关键词建筑、建筑新闻、室内设计、组合、规格、品牌、市场、产品SHINBOHON·House·K
客服
消息
收藏
下载
最近































