查看完整案例

收藏

下载
这座房子最初是为一对年轻夫妇设计的,他们在曼谷郊区有一块小土地。他们想要一座紧凑的房子,它具有现代生活方式所必需的所有功能,建筑和维护费用也很低。该项目最终被终止,但同时,林克的一名建筑师成员计划为他的家庭建造一所房子,其面积要求与这所房子相似。因此,经过几次现场调整,设计又重新焕发了生机。
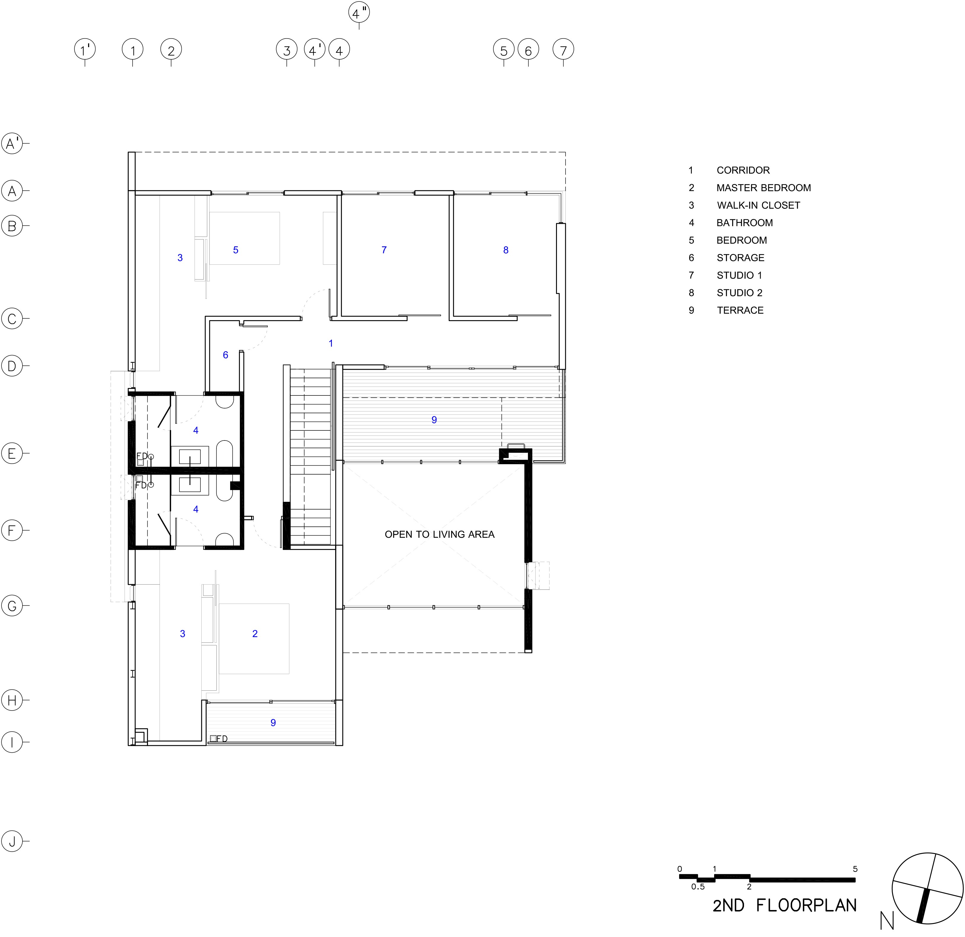
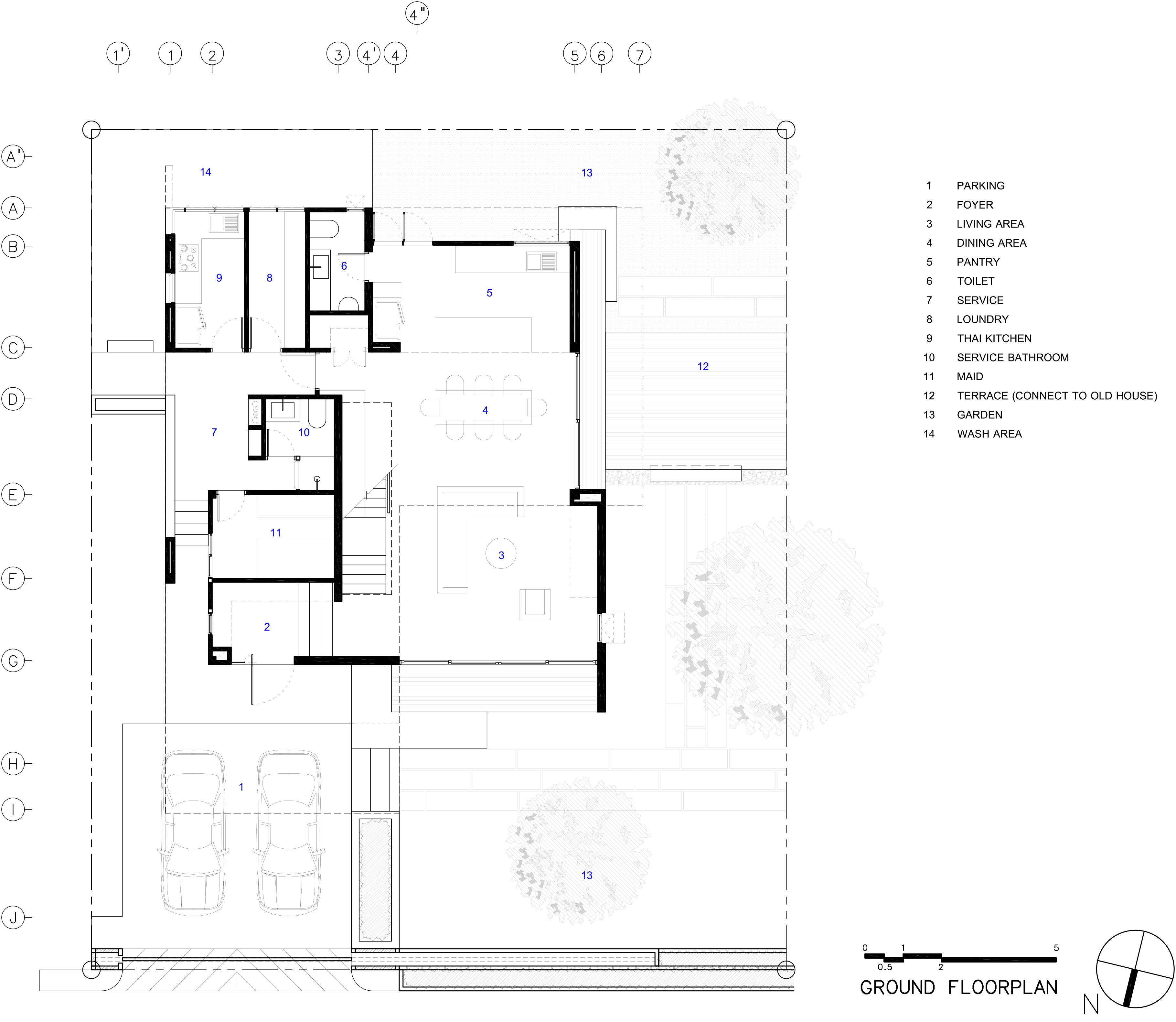
对新土地的一项调整是增加室外空间,作为过渡绿地,因为建筑现在毗邻新业主的现有住所作为最初的特色,已经成为这所房子的关键要素是位于二楼的泰国中央露台,就在房子的中心,它给家里的所有空间带来了生机和联系。
这座房子的结构由两个主要部分组成,分别是鲜明的、鲜明的色调和颜色。第一个是非常坚实的,支持第二个;这是较轻和能够更长的跨度。这两个隔间的结构和材料不同。例如,实心部分由钢筋混凝土和马桑构成,以保持稳定;较轻的部分则是用绝缘填充的钢框架建造,用纤维水泥板覆盖,以减轻其重量和厚度。
Firm Lynk Architect Co., Ltd.
Type Residential › Private House
STATUS Built
YEAR 2014
BUDGET $5M - 10M
keywords:architecture, architecture news, interiors, interior design, portfolio, spec, brands, marketplace, products demoH Home
关键词:建筑,建筑新闻,室内设计,组合,规格,品牌,市场,产品演示
客服
消息
收藏
下载
最近


































