查看完整案例

收藏

下载
Courtesy of Smart Design Studio
智能设计工作室提供
架构师提供的文本描述。在苏里山的一个突出角落,皇冠515呈现出一种动态的街道形式,重新诠释了传统的露台在当代设计的角形和闪闪发光的瓷砖。
Text description provided by the architects. On a prominent corner in Surry Hills, Crown 515 presents a dynamic form to the street, reinterpreting the traditional terrace in a contemporary design of angular shapes and shimmering tessellated tiles.
Courtesy of Smart Design Studio
智能设计工作室提供
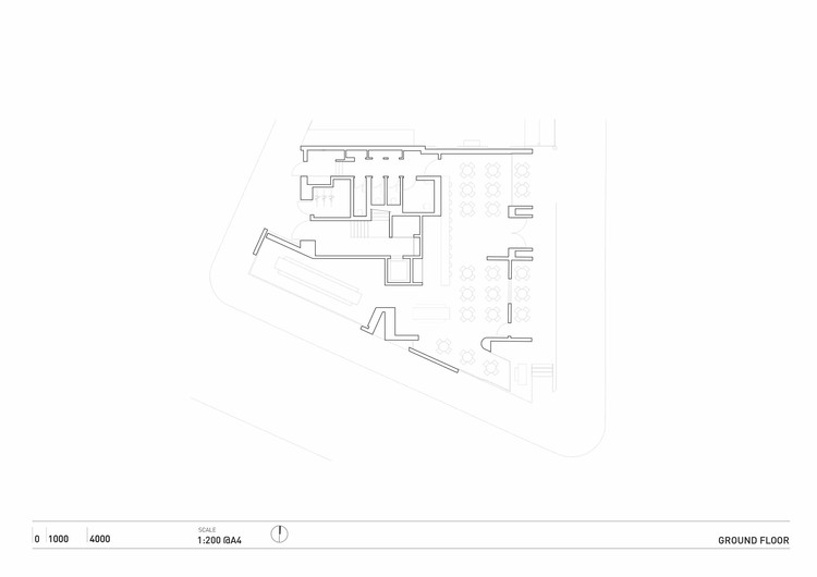
一个巨大的底层商业空间被设想为一家餐厅,注定要成为当地美食的一部分,而上面两层的五套公寓则提供定制的住宅。
A large ground-floor commercial space is envisioned as a restaurant, destined to be part of the local food scene, while five apartments on the upper two floors offer bespoke residences.
Courtesy of Smart Design Studio
智能设计工作室提供
这座建筑的特征是由两种不同但相关的建筑姿态构成的,它们在现有的独立露台房屋的两侧形成了一种对话,利用一边是一个空块,另一边是一块三角形的小块土地。
The character of the building is formed by two distinct but related architectural gestures that create a dialogue on either side of an existing free-standing terrace house, making use of an empty block to one side and a small triangular parcel of land on the other.
East Elevation
建筑的建筑语言是对传统露台的挑战,它来源于周围结构的倾斜屋顶形式,并有意识地点出相邻梯田类型的垂直入口。从皇冠街的角度看,南面的锐角夸大了街角的角度,凸现出一个活跃的公共角落。
Derived from the pitched roof forms of the surrounding structures and with a conscious nod to the vertical portals of the adjoining terrace typology, the architectural language of the building represents a challenge to the conventional terrace row. Viewed from Crown Street, the acute angles of the southern facade exaggerate the perspective of the corner site, lifting up to reveal an active public corner.
Courtesy of Smart Design Studio
智能设计工作室提供
这个正面是覆盖着光泽的白色镶嵌瓷砖,反射和折射他们的周围,捕捉和放大南方的光线。沿着这一排,在新的填充梯田,同样的瓷砖线的内部揭示的门户,提供了一个一致的,但独特的特点,以外部完成的建筑物。
This facade is clad in gloss white tessellated mosaic tiles that reflect and refract their surroundings, catching and amplifying the southern light. Along the row, in the new infill terrace, the same tiles line the internal reveals of the portals, offering a consistent yet distinctive character to the external finish of the building.
Exterior Detail
外部细节
这个设计“回馈”了街道,创造了一个室外的餐厅平台,舒适地高于街道的水平,但仍然是一个公共区域。与沿着皇冠街的长廊一起,这创造了一个社会空间-顺利过渡到Surry Hills环境中。
The design ‘gives back’ to the street by creating an outdoor dining terrace, raised comfortably above street level but still very much a public zone. Paired with the promenade along Crown Street, this creates a social space the transitions smoothly into the Surry Hills context.
Courtesy of Smart Design Studio
智能设计工作室提供
餐厅可由皇冠街及迈尔斯街通往后方,方便使用,而铺有瓷砖的南面则在拐角处展示第二个入口点,巧妙地激活该地点的这个角落。这部分建筑的规模,它的邻居有一个高大的街道墙,只有一条状窗口在一楼以上。高霍伯恩街的两个立面都没有开洞,有强大的、图形化的高地,提供了平衡著名建筑邻居希斯科斯体育馆和圣彼得斯教堂所需的形式力量。
The restaurant is accessible from both Crown Street and Miles Street to the rear, allowing flexibility of use, while the tiled southern facade lifts up at the corner to reveal a secondary entry point, subtly activating this corner of the site. This portion of the building recognises the scale of its neighbours with a tall street wall, punctuated by only one strip window above ground floor. The two facades to High Holborn Street are unpunctuated by openings, with strong, graphic elevations that offer the strength of form required to balance prominent architectural neighbours Hiscoes Gym and St Peters Church.
Courtesy of Smart Design Studio
智能设计工作室提供
位于遗址北面的一个充满露台的建筑将传统建筑与北方的邻居连接起来,延续了人们熟悉的带有住宅阳台的长方形建筑的垂直节奏。充满苏里山的性格,这个定制,当代的解释经典建筑类型的比例和功能驱动的梯田类型。
An infill terrace to the north of the site connects the heritage building to its northern neighbours, continuing the familiar vertical rhythm of rectangular forms cut with residential balconies. Infused with the Surry Hills character, this bespoke, contemporary interpretation of a classic building type features proportions and function driven by the terrace typology.
Courtesy of Smart Design Studio
智能设计工作室提供
该建筑物的住宅入口被完全从该地点的商业活动中移除,位于高霍伯恩街的发展项目的后面。居民通过中央楼梯和电梯进入两层以上的五套公寓中的每一套。
The residential entry to the building is completely removed from the site’s commercial activity and is located at the rear of the development on High Holborn Street. Residents access each of the five apartments over two floors via a central stair and lift.
Courtesy of Smart Design Studio
智能设计工作室提供
这些公寓巧妙地利用了现有的露台,保留了关键的结构墙,并在周围编织空间。西面的公寓以大的北向阳台为特色,带有后巷方面的隐私,而更活泼的皇冠街公寓则利用现有的和新的露台阳台。个别公寓也有独特的设计特色:三号公寓有一扇大窗户,展示了餐厅的高挑天花板,而东部高层公寓则有一个非常大的甲板,向后倾斜,以避免街道出现,并提供声学隐私。
The apartments make clever use of the existing terrace, retaining its key structural walls and weaving space around them. Apartments to the west feature large north-facing balconies with the privacy of a rear lane aspect, while the more lively Crown Street-facing apartments make use of existing and new terrace balconies. Individual apartments also boast design features: apartment three has a large window revealing the tall raked ceiling of the dining room, and the upper-level eastern apartment features a very large deck, set back to avoid street presence and offer acoustic privacy.
Ground Floor
First Floor
Second Floor
建筑遵循节能和可持续设计的基本原则。厚厚的复合墙提供外部温度的绝缘,而有凹槽的窗户则提供自然光而不产生过多的热量。慷慨的天花板高度允许大量的太阳能进入冬季,并排除炎热的太阳在夏季。可操作窗户的战略性放置减少了室内空间对空调的依赖,并进一步使建筑物与其场地相结合。
The building observes the fundamental principles of energy efficiency and sustainable design. Thick composite walls provide insulation from outside temperatures, while windows with recessed reveals provide natural light without excessive heat gain. Generous ceiling heights permit plenty of solar access in winter and exclude hot sun in summer. The strategic placement of operable windows reduces the reliance of interior spaces on air conditioning, and further engages the building with its site.
Courtesy of Smart Design Studio
智能设计工作室提供
Architects Smart Design Studio
Location Crown St, Sydney NSW, Australia
Category Apartments
Project Team William Smart, Glenn O’loughlin, Peter Badger, Anna Chan, Ronald Wibisono, Jolyon Sykes, Nicole Leuning
Project Year 2017
客服
消息
收藏
下载
最近























