查看完整案例

收藏

下载
© Atul Kanetkar
c Atul Kanetka
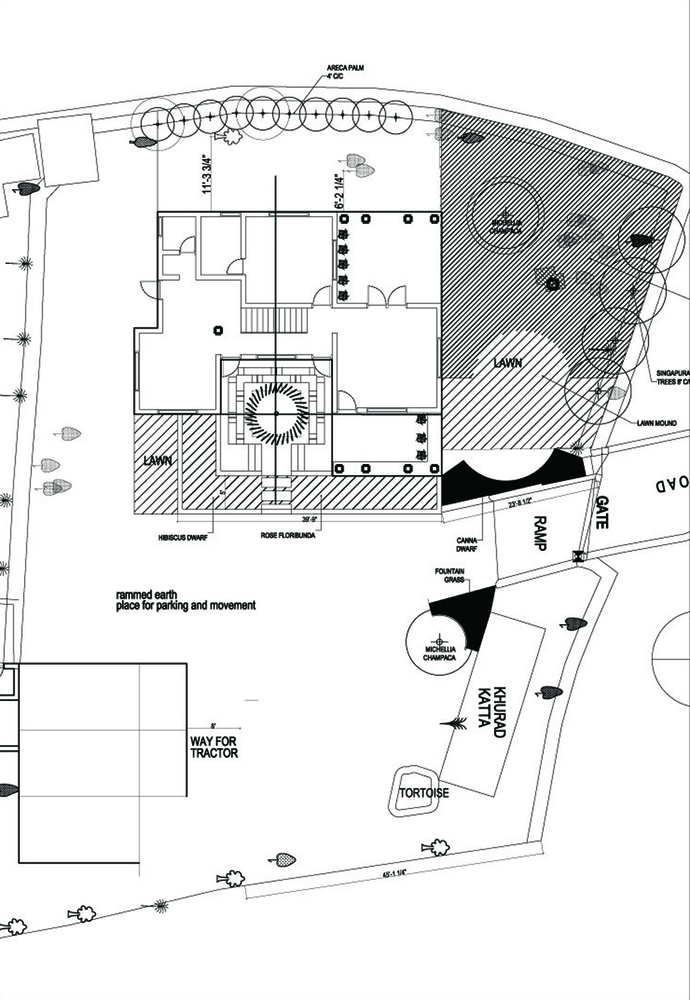
架构师提供的文本描述。在瓦尔基河两岸的一个项目,占地2.5英亩(10,000平方米)。位于库勒村,塔尔穆尔希,约35公里在浦那市的西侧。周围是肥沃的农田,稻田,椰子和芒果种植园。建筑师们不得不维护现有的142平方米农舍的占地面积。在Panchayat的记录上。
Text description provided by the architects. A project on the banks of Walki river, spreading over a land of 2.5 acres ( 10,000 sq.m.) located at village kule, tal mulshi , around 35 km on the western side of Pune city. The site was surrounded by fertile farmland with paddy fields , coconut and mango plantations. The architects had to maintain the footprint of the existing farm house built on 142sq.m. as registered in the gram Panchayat records.
© Atul Kanetkar
c Atul Kanetka
建筑形态的演变可以看作是用户与环境互动的结果,它不仅包括自然环境,还包括社会环境和经济环境。
The evolution of built form can be seen as the result of interaction between the user and his environment, which not only includes the natural, but also the social and the economic environments.
Courtesy of Q-design
由Q-设计提供
客户是萨达希夫派的居民,普恩和继承了典型的“派”文化,这种文化有着小面积的房屋,造成了空间的垂直分布。因此,最重要的要求是一个多维空间,在一个层次上,家庭可以互动-聚在一起,在大自然中。
Client is a resident of Sadashiv Peth, Pune and inherits a typical “Peth” culture, which has houses on small plot widths, causing vertical distribution of spaces. Thus, the foremost requirement was of a multidimensional space, at one level, where the family can interact – come together, amidst nature.
© Atul Kanetkar
c Atul Kanetka
关于客户所要求的符合建筑师的自然设计哲学和自然的自然外观和经验,他们决定使用Konkan建筑的概念。孔坎宫通常由红色红土石(俗称Chira)建造的房屋组成。
With regards to the natural look and the experience that the client requested which was in consonance to the architect’s philosophy of design with nature, they decided on using the concept of Konkan architecture. The konkan house typically comprises of house made in red laterite stone, commonly known as Chira.
© Atul Kanetkar
c Atul Kanetka
附近有一棵现存的芒果树,它是尼泊尔国王送给客户的。芒果树被概念化为房子的中心,完整的建造形式是围绕着树规划的,因此它成为设计词汇的一个固有的部分。
There was an existing mango tree adjacent to the old structure which was gifted to the client by King of Nepal . The mango tree was conceptualised as the epicenter of the house, the complete built form was planned around the tree in such a way that it became an intrinsic part of the design vocabulary.
© Atul Kanetkar
c Atul Kanetka
以昆德的形式设计了一个开放的空间,设有台阶式座椅,将芒果树保持在它的中心位置。昆德中部被适宜居住的空间所包围。客厅在北侧,厨房和餐厅在南面,床在西侧,由一条连接生活和厨房的通道隔开。客厅在东侧和西侧由大型阳台(PADWI)缓冲。
An open space in the form of a Kund, with stepped seating was designed keeping the Mango tree at its centre. The central Kund is surrounded by habitable spaces. Living room on northern side, kitchen and dining on southern side and bed on western side separated by a passage connecting living and kitchen. The living room is buffered on eastern and western side by large verandahs (padwi).
© Atul Kanetkar
c Atul Kanetka
Architects Q-design
Location Pune, India
Category Houses
Architect in Charge Anand Kulkarni
Project Team Pankaj Puranik
Area 175.4 m2
Project Year 2016
Photographs Atul Kanetkar, Shantanu Rao
Manufacturers Loading...
客服
消息
收藏
下载
最近













































