查看完整案例

收藏

下载
Blue Jay Way住宅位于美国洛杉矶Bird Streets,毗邻比佛利山庄住宅区。场地坐拥山脉高处绝佳位置,俯瞰洛杉矶和好莱坞天际线。项目开阔的平面设计追求室内与城市全景视野的视觉与体验上连接,错落有致的中庭和温暖的白色材质让光影投射到建筑的每一个角落。
这座极简住宅坐拥山脉宝贵的南面的大片平地,宛如白色羽毛轻盈地落于陡峭的山坡之巅,一览无余地俯瞰着城市天际线。
设计师用利用线性墙壁勾勒出一系列居住和生活空间,形成开阔明亮的空间布局。
线性墙壁不但提供了开阔的空间布局,也将视线引导至无垠的远方。
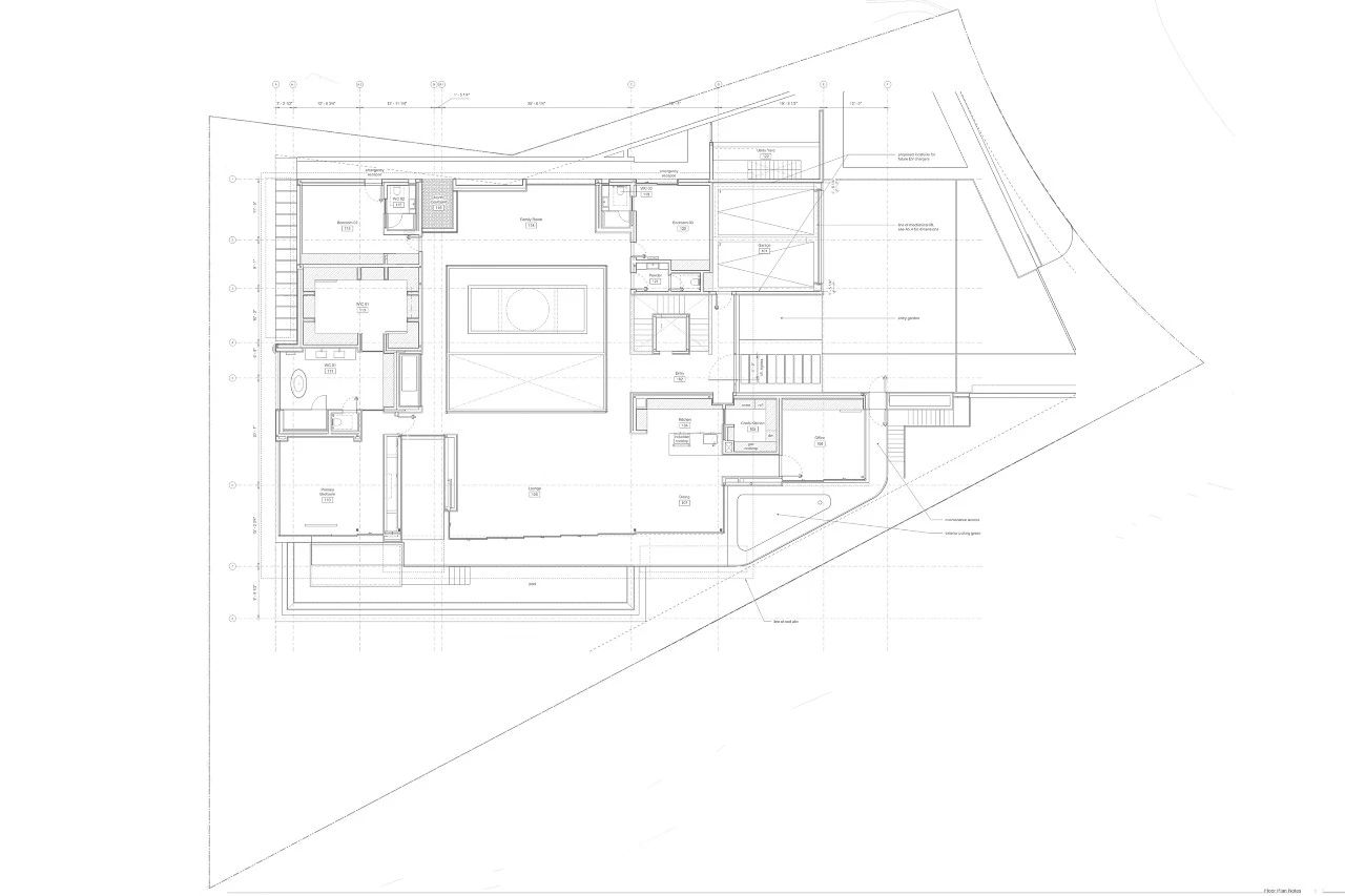
双层庭院布局是这个项目的核心所在。来访者被巧妙设计的空间流线引领至中庭,阳光从上方倾泻而下,将视线引向一层的法拉利展示厅。黑色大理石的展示空间与白色居住空间形成鲜明对比,使展示厅成为整个项目的视觉焦点。而与之相呼应的极简主义庭院,则借由百年橄榄树的静谧氛围,与展示厅相得益彰。两层空间之间的瀑布和中庭反射水池,作为流动的水体将垂直空间巧妙连接。
为整体体验增色的是位于二层的无边游泳池。项目通过线性、开放的水体,把开阔的室内空间融入了远处的无边天际。
项目还包含办公室、客房、健身房、酒窖和电影放映室等设施,与大小庭院错落有致地融合在一起,为居住者提供了丰富多样的空间体验,让阳光与自然充分融入生活的每个角落。
景观总平面图
一层平面图
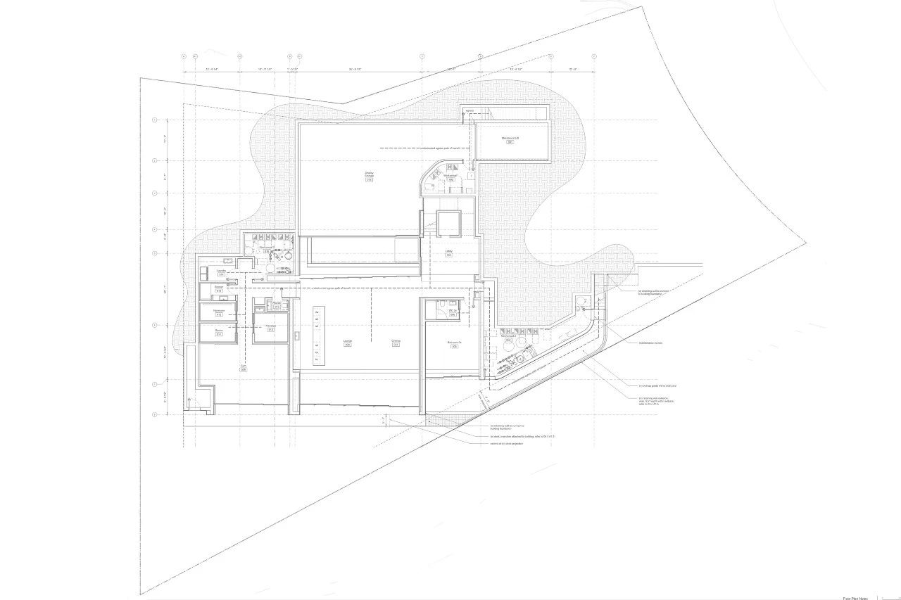
二层平面图
剖面图
分析图
客服
消息
收藏
下载
最近
































