查看完整案例

收藏

下载
时至今日,设计师仍持续在乡村建设抛出的问题寻找合理的解答:中国的乡村文化如何呈现崭新生命力?乡村更新如何走出传统的商业化模式?如何保护乡村原本的肌理?随着度假酒店、民宿等模式的介入,城乡互动性提升,乡村不再仅是少数人的诗与远方,而是通过实地体验、媒体触及等方式更加直面大众群体。▽项目鸟瞰© 奥观建筑视觉
▽顶视图© 奥观建筑视觉
01乡村肌理:如何将设计隐于乡村
不过多考虑乡村应该是什么样子,在宜昌南岔湾石屋设计之初,设计师就明确了“乡村先于设计”这一思考主题。南岔湾石屋位于长江三峡起始地湖北宜昌的一处小山村,山水如墨,拥有天然的地理人文景观。南岔湾石屋一期完成于 2020 年,在一期设计时间内,设计师就已在脑海中构思二期的形态。
▽项目远观© 奥观建筑视觉
▽项目外观© 奥观建筑视觉
在整个石屋的乡村实践中,避免从传统酒店的方式去套设计模式,而是从延续乡村肌理出发去思考新方向,力求保持地域纯粹性。在缓慢的时间进程中逐渐形成的村落,不是设计手段可以模拟,却天然的具有邻里关系最自然的状态,房屋的建设时常是顺应环境而生,一棵古树,一条古村路,或比邻而居,均可作为建筑选址坐标。▽石屋的规划延续了乡村肌理© 奥观建筑视觉
▽自然的邻里关系状态© 奥观建筑视觉
经过实地考察南岔湾村庄,一期的两栋建筑原本是两兄弟的楼房,一如当地其他村民的建筑,均由当地山体石材搭建而成,缺乏很好的密闭性,时常渗雨进风,这也是在设计中的需要克服的因素。▽建筑由当地山体石材搭建而成© 奥观建筑视觉
▽石材的使用延续了乡村风貌© 奥观建筑视觉
▽入口立面© 奥观建筑视觉
▽简化后的飞檐翘角形态© 奥观建筑视觉
02空间肌理:如何厘清石屋的递进关系
宜昌石屋为设计提供了原始参考,设计力图呈现这种原生的美感,建筑需要把时间的连续性充分表达出来。因石材外观鲜明的地域特点,石材的使用不仅可延续乡村风貌,还可将时间记忆在新建筑中得以传承。
▽院落夜景© 奥观建筑视觉
▽石屋的递进关系© 奥观建筑视觉
二期石屋由多栋建筑构成看似无序的空间序列,延续和递进一期石屋的形态关系,根据地势散落在山坡上。与一期两栋石屋不同,没有依照统一的朝向,而是依据乡村建房因势而建的特征,呈现无序中的有序感。
▽庭院夜景© 奥观建筑视觉
▽入口玄关© 奥观建筑视觉
▽楼梯© 奥观建筑视觉
03自然肌理:如何将石屋设计延续自然记忆
在此保留和退让策略下,为了避免置入新建筑带来与环境的潜在竞争,采取梳理型设计,对环境组成元素做了大部分保留,乡村原本的层次结构得到保护,且得以让原有植被二次生长。
▽客房内部© 奥观建筑视觉
▽宁静的室内氛围© 奥观建筑视觉
▽建筑的大尺度开窗尽可能的面向山石© 奥观建筑视觉
▽室内与山石形成极具力量感的对话© 奥观建筑视觉
▽室内外紧密的视觉关系© 奥观建筑视觉
▽景观画框© 奥观建筑视觉
山体石头的肌理状态同样是一种无序中的自然秩序,建筑的布置与开窗相应与之忽近忽远,或紧密或松弛的微妙动势,使得室内空间尽数拥有独特自然记忆的画框。▽山体石头的肌理使得室内空间尽数拥有独特自然记忆的画框© 奥观建筑视觉。内部空间也尽可能的去装饰化,外材内用,将石材运用在室内营造中,使得自然肌理在室内延续。
▽近景© 奥观建筑视觉
04时间肌理:如何将设计价值进一步延伸
“乡村建造要有时间性,特别是手艺的建造”。设计师表达建造过程并非是一蹴而就,而是与当地匠人合作逐渐打磨完成。
▽温暖的木质肌理© 奥观建筑视觉
▽柔和灯光与木材的结合© 奥观建筑视觉
▽细部© 奥观建筑视觉
石材不仅作为建造材料也作为室内材料,室内设计则按照现代生活方式介入,采用木材、钢材与石材进行精确组合,避免装饰性赘述。而为了在建造工艺方面保存乡村的“时间肌理”,设计师寻来当地匠人,通过他们纯熟的手艺,更加细致的去营造乡村的时代断面。▽石材不仅作为建造材料也作为室内材料© 奥观建筑视觉
▽浴室© 奥观建筑视觉
诚然,当代乡村不全是美好的一面,乡村当然也不是设计师展现精英化的秀场。直面当下乡村的现状,建造可在乡村推广的建筑审美范式,这是宜昌石屋在设计中希望传达的理念,也是设计之外,理想得以延伸的价值。▽夜景鸟瞰© 奥观建筑视觉
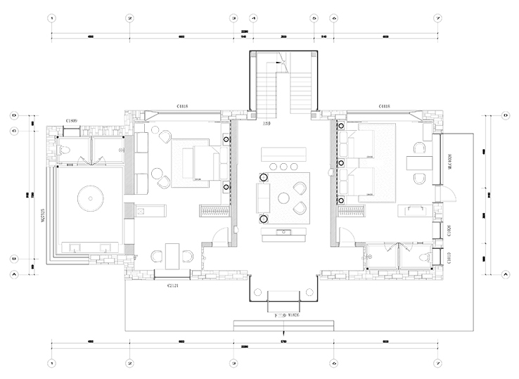
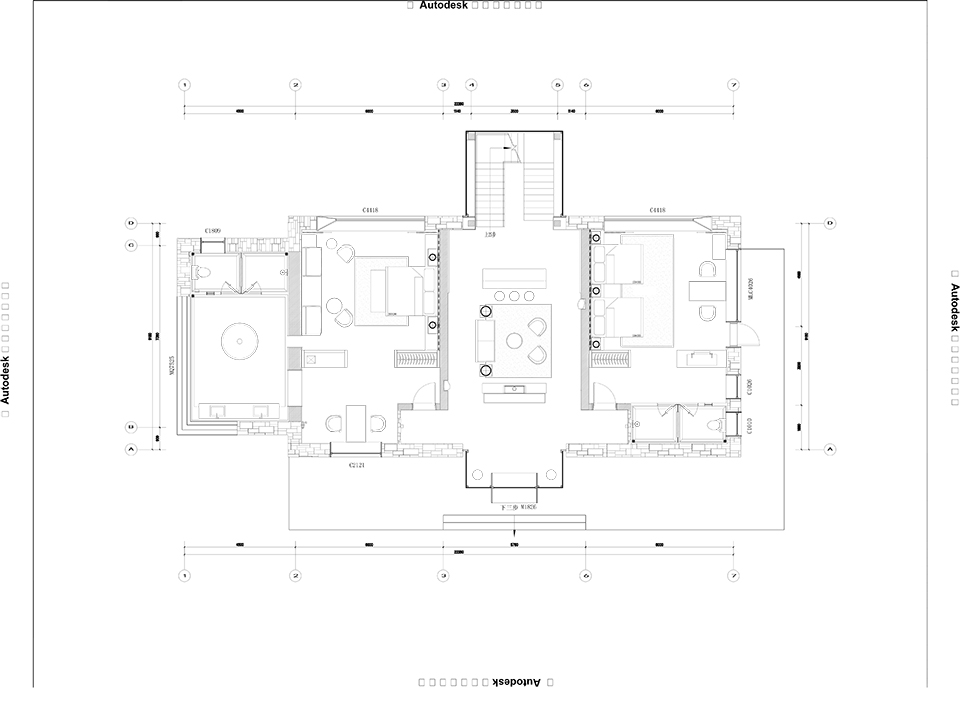
▽独栋套房一建筑平面图©中国美术学院风景建筑设计研究总院
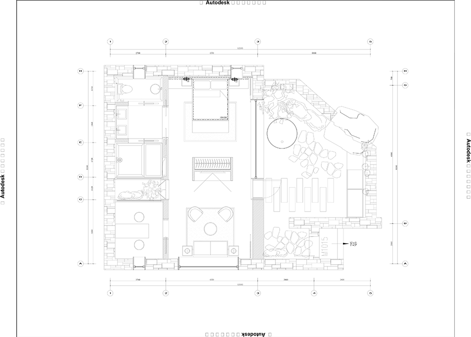
▽独栋套房一建筑立面图©中国美术学院风景建筑设计研究总院
▽独栋套房一建筑剖面图©中国美术学院风景建筑设计研究总院
▽独栋套房二建筑平面图©中国美术学院风景建筑设计研究总院
▽独栋套房二建筑立面与剖面图©中国美术学院风景建筑设计研究总院
▽二期客房建筑一层平面图©中国美术学院风景建筑设计研究总院
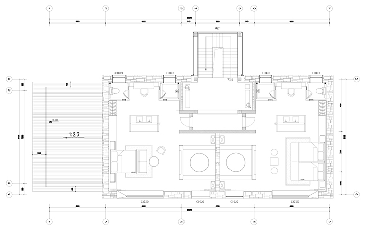
▽二期客房建筑二层平面图©中国美术学院风景建筑设计研究总院
▽二期客房建筑立面图©中国美术学院风景建筑设计研究总院
▽二期客房建筑剖面图©中国美术学院风景建筑设计研究总院
▽细部详图©中国美术学院风景建筑设计研究总院
客服
消息
收藏
下载
最近
























































































