查看完整案例

收藏

下载
▽中庭©形在摄影 Here Space
▽南入口©形在摄影 Here Space
项目背景
“要附白鹤背,往访青羊踪”。MUDA 慕达建筑此次设计的“宽三堂-东方人文生活空间”,位于中国四川省成都市青羊宫旁。青羊宫历史悠久,始建于周朝,原名青羊肆,后唐僖宗于蜀中避难,以此为行宫,诏改为青羊宫并致力修建。青羊宫被誉为“川西第一道观”,也是中国著名的道教宫观之一。
▽青羊宫视角的东入口©形在摄影 Here Space
▽与青羊宫一墙之隔的茶室©形在摄影 Here Space
设计理念
“为天下谷,常德乃足,复归于朴”。设计理念来自于道家哲学经典《老子》,道家讲“谷是生之地,生之繁衍不息”。谷的内部是没有形状的,正因如此,才可以呈现出任何形状。谷的意象指向“实”之间的“虚”与“无”,使它有孕育、承载“生”的无限可能,且无法被用尽。
▽改造策略分析图©MUDA 慕达建筑
溪水的意象则为“谷”带来生生不息的源泉,使谷盈,善利万物,滋养生息。谷与水的意向包含了道家对世界与生命的看法与哲学观,谷与水的关系是生动的,有生命力的,且永恒的。我们提取了关于“谷”的描述进行衍生,营造虚的“谷”,并通过“水”的手法引入流动的“溪”将其演绎成建筑空间,重建场所感和叙事感。▽中庭©形在摄影 Here Space
▽虚与实©形在摄影 Here Space
▽藏在木色序列中的结构柱©形在摄影 Here Space
▽浅池中的鱼和景©形在摄影 Here Space
南入口
“为天下式,常德不忒,复归于无极”
项目有东南两个入口,其中南入口为社会入口,位于成都市一环路,紧邻青羊宫地铁站。作为整个场域的起点,南入口取意“无极之境”。无极,指的是混沌的先天状态,无形无相,不分阴阳,为万物之始。万物生于有,有生于无,“无极之境”也寓意整个空间的开始。
▽南入口处的老树©形在摄影 Here Space
▽树影和水缸©形在摄影 Here Space
在熙熙攘攘的现代都市,缓缓推开两扇古朴的铜门,蜿蜒的红色景墙散发着浓郁的东方传统美学气息。红墙灰瓦,百年古树屹立其中,向内生长,引导着来者的视线,吸引人们到达“谷”的深处。▽从等候区望向南入口的老树©形在摄影 Here Space
▽从等候区的取景框捕捉中庭景色©形在摄影 Here Space
庭院
“人法地,地法天,天法道,道法自然”。道家以“无为而无不为”、“反者道之动”,是道之自然。庭院的设计,作为此次项目中“谷”最为核心的体现,MUDA 慕达建筑以“天圆地方”为切入点,为二层增加室外平台,边缘形成一条顺滑曲线,使用红色的玻璃栏杆将其符号化,抬头便是蓝天绿树的取景框。而一层方形的庭院则进行了造景,回应“一池三山”的意向。“天圆地方”的道,“一池三山”的法,掌控了整体的自然要素。
▽院内造景©形在摄影 Here Space
▽中庭水景的结构钢柱序列给游人的视线进行了空间重组©形在摄影 Here Space
▽中庭的结构钢柱序列连接中庭与二楼平台空间©形在摄影 Here Space
MUDA 慕达建筑希望通过不同的造景手法©形在摄影 Here Space
▽窗棂对景©形在摄影 Here Space
▽弧形旋转楼梯将一楼与二楼空间串联©形在摄影 Here Space
室内空间
“楼阁宜佳客©形在摄影 Here Space”
▽花园包间使用灵活的木格栅推拉门实现空间的通透性©形在摄影 Here Space
▽院外借景©形在摄影 Here Space
连续包间 | Continuous Room
项目中一层和二层均有连续包间,二层连续包间通过顶部坡屋顶元素塑造木纹弧顶。包间与包间通过可移动隔断来灵活划分使用,软装设计以简洁调性为主,确保空间的秩序感。木饰面与墙面深灰色软包,以及搭配的吊顶氛围灯带,使整个空间兼具合用的整体性和单独使用的独特性。
▽连续包间©形在摄影 Here Space
▽通过顶部坡屋顶元素塑造木纹弧顶©形在摄影 Here Space
▽室内细节©形在摄影 Here Space
茶室 | Tea Room
茶室的吧台空间围绕着一颗高大的银杏树,银杏树叶伸展在室内,自然与空间的界限也被打破。
茶室设置三个层级的矩形镂空吊顶,空间基调以木色为主,中间区域置入发光膜作为主要照明,使空间的光氛围舒适而宁静。
朝着青羊宫一侧的滑轨门可以完全旋转打开,外摆区也可作为咖啡甜品场景使用,同时也增强了室内与院外的自然景观互动。
▽茶室©形在摄影 Here Space
▽吧台空间中的高大的银杏树©形在摄影 Here Space
▽茶室窗景©形在摄影 Here Space
青羊宫入口
“同谓之玄,玄之又玄,众妙之门”
项目与青羊宫仅一墙之隔,东入口作为与青羊宫的衔接,取意“众妙之门”。东入口取其幽远难辨之意,赋予原本简单直接的空间以层次,形成一条连接了历史和当代的时空隧道。一侧是底蕴深厚、举步抬眼皆是时间沉淀的青羊宫,一侧是秉承了未来东方精神、表达传统文化的当代空间,“众妙之门”则实现了时间与空间的连接。
▽东入口©形在摄影 Here Space
▽入口立面细节©形在摄影 Here Space
结语
“道生一,一生二,二生三,三生万物”。道家“谷”的意象指向“实”之间的“虚”与“无”,透过这种虚空性,我们可以看到整个建筑的过去、现在和未来。它是以一个整体时间段的存在,而并非只是存在于某一个时间节点。这也正好印证了“太一、太谷“等东方哲学观,即从整体去看待和描述一个事物发展。谷本无形,空间应运相生。▽二层平台©形在摄影 Here Space
▽红色围墙细节©形在摄影 Here Space
▽剖面 1© MUDA 慕达建筑
▽剖面 2© MUDA 慕达建筑
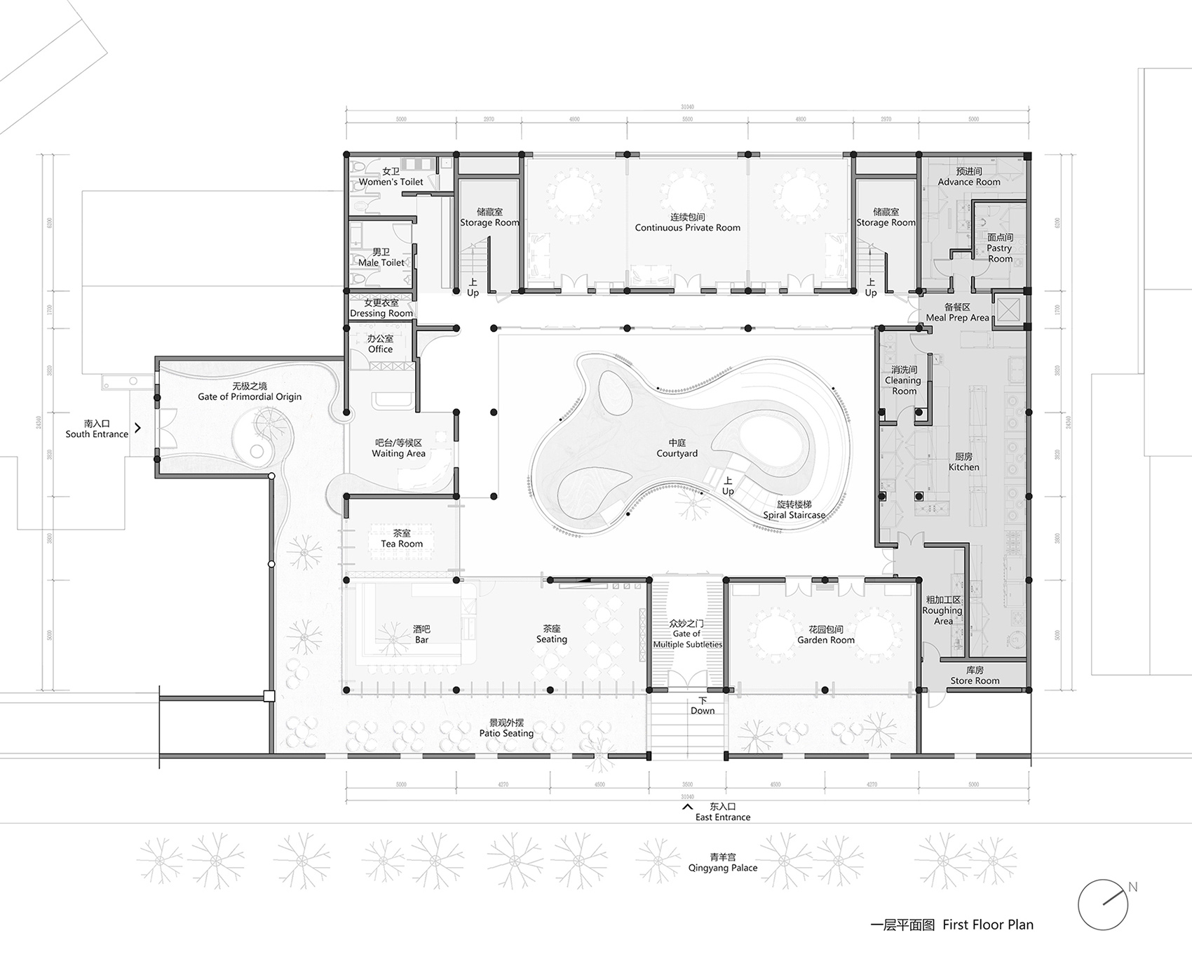
▽一层平面© MUDA 慕达建筑
▽二层平面© MUDA 慕达建筑
项目名称:宽三堂 中餐厅-东方人文生活空间
项目地点:中国 成都青羊区
项目类型:室内设计 景观设计 建筑立面改造
建筑面积: 904 平方米
景观面积:524 平方米
主创建筑师: 卢昀
设计团队:李爱东,吕晨宇,荣典,詹子琪,何帆,付尧
结构设计顾问:Yuki.Law
灯光设计顾问:DOPI Design
业主单位:成都宽三堂生活文化创意有限公司
摄影:形在摄影 Here Space
客服
消息
收藏
下载
最近





























































