查看完整案例

收藏

下载
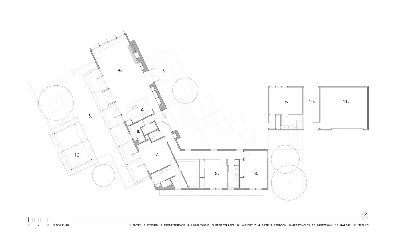
这座3,400平方英尺的住宅被拉成两翼,创造了一个中央花园空间,将一个人定向到主屋的入口。
现在的设计是在目前的场地上建立了一种地方感。简单的标志性金属屋顶元素覆盖着防火壁板,在入口处通过雪松升高视觉感,增加了覆盖在钢制遮阳板和钢窗墙上的北立面。
钢、木格和拱廊有助于为房屋遮挡炎热的夏日阳光,让冬季的低阳光深入生活空间。
主要生活空间采用裸露的天花板结构、钢拉杆、石膏板墙、定制木橱柜以及木地板、混凝土地板,进行最低限度的氛围渲染。
空间对比
为此,被动式太阳能策略、可持续采伐木材、复合壁板、金属屋顶、钢、包覆木门窗和板成型混凝土,都是该项目不可或缺的一部分。严格的工艺和材料带来的丰富感在整个项目内部显而易见,外部材料调色板则是为项目提供了另一种感觉。
项目信息:
住宅建筑
•美国
建筑师:尼克·诺伊斯建筑事务所
面积:3490 尺
年:2018
照片:塞萨尔·卢比奥
制造商:Crittall Windows,James Hardie,Kolbe-Kolbe Milwork,Milgard
客服
消息
收藏
下载
最近






















