查看完整案例


收藏

下载
——为不同的人设计生活的细节,这些点点滴滴将是他们人生的侧影,其间一草一木,一景一物,都是他们的心境。AC设计在家装私宅项目中重新定义了高级,不管是凡尔赛的繁奢还是瓦尔登湖式的追求。高级,定然是赏心悦目之上的那份心有所属。
借景,是来自中国传统的园林设计手法。利用高楼层和观景窗的优势,以独特的视角俯瞰景色,把风景带入室内,每个角度都不容错过,每一处都能独享窗外的四季。
我们试图创造一个高复合的动态空间,不再是一个封闭的家庭环境,她将更开放,拥有更多的可能性,这里将产生各种生活的乐趣,有琴声,有歌声,有欢笑,有三餐之味、有四季之美。
如果说动区灵动洒脱,那么静区就是我中有你,你中有我的格局,层层递进,高低错落,打造空间的延伸感受,不拘泥一点一线,通透而轻盈,用不同角度的反射借景到室内,每一眼每一瞥都是不同的景致。至此,回归居住的最终奥义,让身体感受光与自然的爱与恩惠。
玻璃幕墙从动区一直延展到静区,是空间语言带有情绪化的和谐表达,诠释了一个家开放与隐秘,是主人的小情趣,是光与影的小游戏,更是自然光线在家居生活中含蓄且完美的呈现。
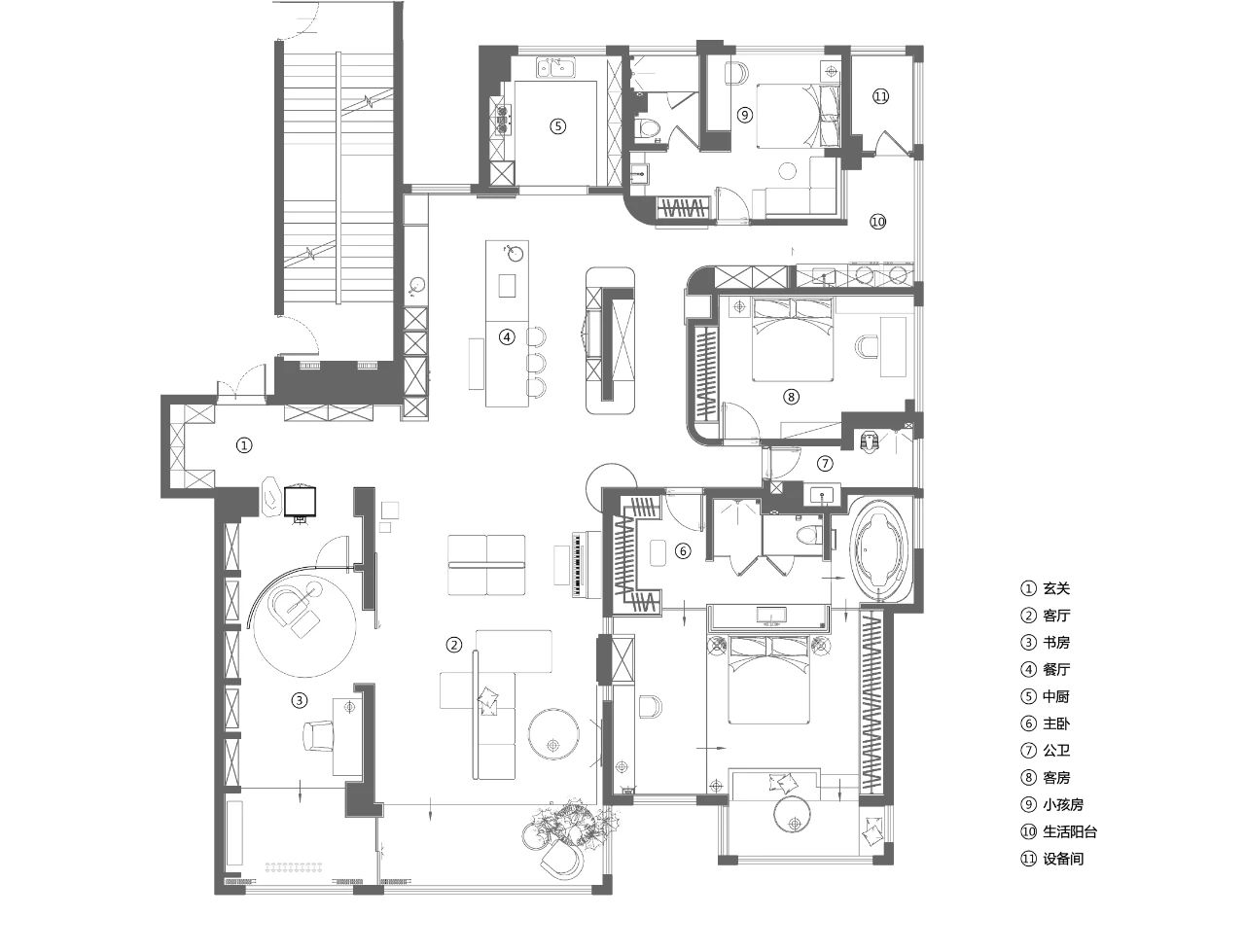
项目名称:天际藏玉
设计机构:AC Design
项目地点:湖南
项目面积:300㎡
AC DESIGN成立以来,一直致力于研究东方哲学于当代空间中的实践与应用,并创造性的提出“精神东方"。
我们旨在用国际化的视野在空间中提炼并融入古典文学、美学、哲学,营造出当代东方精神的场域空间。
客服
消息
收藏
下载
最近























