查看完整案例

收藏

下载
BO CUI YUN DI丨NATURAL STYLE
博翠云邸丨原木自然风
总有一日,我要在一个充满阳光的早晨醒来,那时我要躺在床上,静静的听听窗外如洗的鸟声,那是多么安适而又快乐的一种苏醒。
---------------------------------------------
-------------------------------------------------
------------------------------------
我希望我未来的家是安静的,温暖的,阳光的——MY FUTURE HOME。本套案例的业主是一位在铜梁工作的小姐姐,虽然离主城有 60 公里,但业主还是想装出心满意足的居所,所以找到了我们,整个装修过程没有提太多的要求,只希望家能有足够的温度。
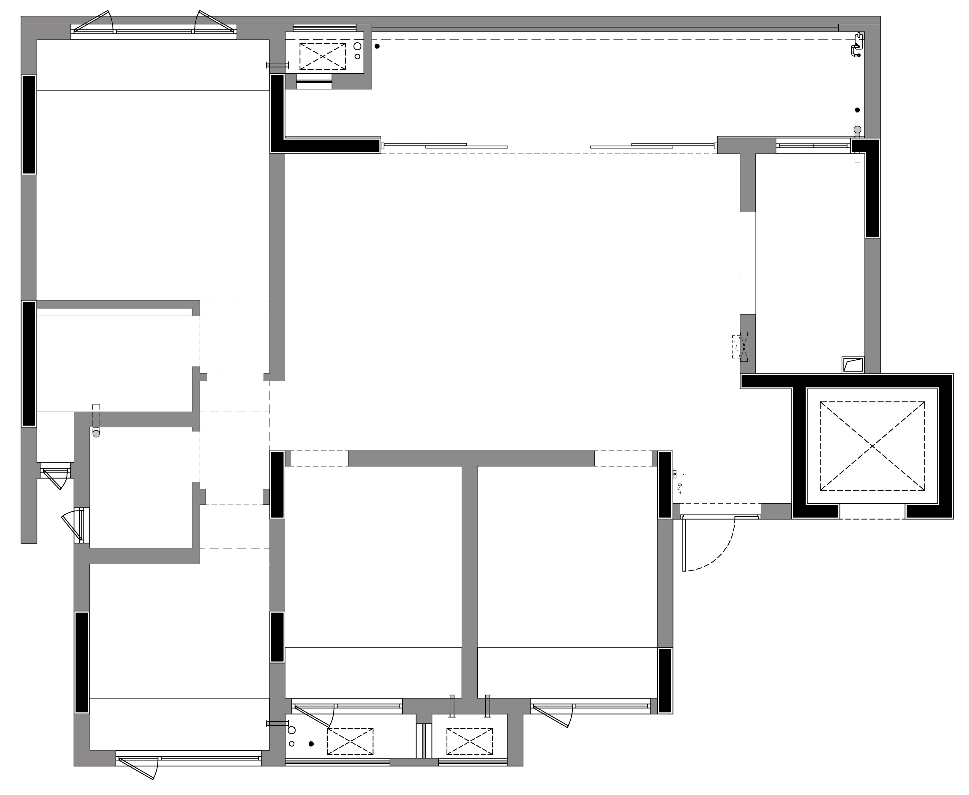
户型改造 House type structure
原始结构图
平面布置图
原始结构改造:
#客厅
放弃了传统的布置方式,设计师采取了沙发背靠窗户的布置方式,这样过道空间成为客厅空间的一部分,从而让客厅空间变大了。
#厨房
将厨房墙体打掉,让餐厅和厨房融为一体,中间吧台做为隔断处理,增加了通透性,也提高了厨房的空间利用率。
#生活阳台
将客厅阳台一部分作为生活阳台,解决了业主的晾晒和洗衣功能。
#杂物间
将客厅阳台纳入到室内,扩大了客厅空间,把原本在阳台上的空调机位利用起来,做成了储物区。
客厅
LIVING ROOM
客厅空间木色和白色的温柔搭配,温和的色彩能瞬间将刚回家的女主人拉回到放松的状态,木地板和木饰面的呼应,将空间悠闲惬意的氛围拉满。
将沙发电视摆放方向旋转 90°,原始过道空间纳入了客厅,让整个客厅空间更大气。设计师小心思:考虑到业主常常独居,沙发的布置既能靠墙也能第一眼与入户门对视,希望这样的布置能给女生带来一种心理的安全感,这样细节的设计真的好暖心!
当一抹温暖而有活力的阳光洒向了客厅时,与白色和原木色系充分融合,空间随性自然的调性跃然而上,仿佛把自然搬回了家。
餐厨
DINNING & KITCHEN
简约而不失雅致的木饰面贯穿整个客餐空间,搭配上橱柜不同层次的原木色系,给餐厅空间增加了视觉冲击和质感,整个餐厅洋溢着悠然自在的生活气息。
一方小吧台作为厨房与餐厅的隔断,清晰地划分出生活空间的同时,又给生活添了一些趣味。书房 STUDY
将原始入户旁边的次卧墙体打掉改装长虹玻璃隔断,让整个空间更加通透大气,开敞封闭兼具的书房,为生活提供了一份交流和独处的可能。
设计师小心思:业主现在虽然是独居,但是设计师做了功能前置考虑,如果常住人口增多,未来想把书房变卧室不再需要做墙体改造。
满墙柜开放格与封闭柜兼具,为书籍、摆件提供了收纳之地;摇曳的光影,清透的玻璃,原木的书桌,共同构建了一个治愈温柔的暖意空间。
主卧
MASTER BEDROOM
将主卧的飘窗全部拆除,扩大卧室空间,并在靠窗处做了颜值与实用性均在线的内嵌式化妆桌,木饰面搭配深灰系纯色窗帘,大气耐看高级感满满。
其他空间
OTHER SPACES
次卧的使用率虽然不高,但是依旧用心,床头墙面干净的线条,满顶的柜子,整体配色干净舒适,让整个空间简约而不简单。
设计师小心思:主卧旁边的卧室改为了独立的衣帽间,既可以满足目前主人的使用,也可以随着未来家庭成员的变化,这个房间也可以成为大家共同使用的储物空间。
设计师有话说:本套案例在设计过程中业主没有提太多的要求,所以整个设计上自己有很大的发挥空间。总体围绕温暖、舒适与实用展开,不执着于过多的装饰,空间的本与真,打造一种通透而自然的效果,生机而不喧嚣。空间功能布局找到了最理想的平衡点,既满足了实用又满足了颜值。
DE—为年轻人设计—
THEEND
案例信息:
项目丨金科博翠云邸
建筑面积丨121㎡
户型丨四室两厅
风格丨原木自然风
硬装设计丨DE 设计事务所
软装设计丨D.ART 谛阿特设计
施工团队丨DE 工程中心
客服
消息
收藏
下载
最近























