查看完整案例

收藏

下载
- 天井的布置,是本案最精彩的地方。
- 将设计回归居住者本身,不在材料、效果上做过多处理。
- 功能布置和居住者习惯相吻合,打造一套 30 年不用更换的房子。
金辉耀江府|项目地点
现代|设计风格
黑白灰为主|色彩运用
500㎡|建筑面积
联排别墅端户|项目类型
以功能为导向,家才能越住越舒适。本案为现代居所空间,设计师以功能为导向进行思考,摒弃繁杂的装饰性设计,也正好符合业主一家的生活理念,较少的立面装饰,最终呈现出温润韵致的效果和不一样的高级感。
房屋基本情况及业主需求:
1.房屋主要进出通道是车库,需要电梯,地下室作为男主人接待朋友的空间;
2.车库无建筑排水口,需要解决排水问题;
3.需要健身房、保姆房、司机房和储物间;
4.一楼需要卧室,厨房分中西厨;
5.二楼作为儿童房区域,要求两个面积与布局一样的房间,还需要一间备用客房;
6.三楼为主卧区域,需要衣帽间与书房;
7.需要考虑花园的景观需求。
& 纳入阳光与空气
由于男主人会在地下室空间接待朋友,我们改造的核心为创造使用的条件,让地下室有阳光空气的进入,阻隔一楼花园回填土对地下室的潮气影响。
由于原建筑的天然条件,建筑侧面牺牲花园的面积能下挖出下沉式庭院,下沉式庭院能解决阳光、空气、潮气的问题,同时在地下创造出更多使用空间。
3 米宽天井由对称的两部分组成,保证阳光与空气流通的同时也给负一楼、负二楼空间提供了景观面。
& 地下空间布置
负二楼公共区域布置了门厅、茶室、电梯厅、会客厅、简餐吧台区、卫生间及提排设备间,卫生间和提排设备间设置在后花园下方,既实现了与潮气分隔开,也便捷了设备管道的布置。
Hallway
入户
入户以一幅艺术抽象画拉开家的序幕,大理石背景墙凸显空间质感,和精美摆件、清新植物一起,演绎了一首满是高级感的前奏曲。
Recreation area
休闲区
挑高的空间设计以及灵活巧妙的布局,塑造出大宅的稳健气度。电视背景墙运用三块石材进行拼接,衔接工艺手法自然,仿佛一个整体,清雅的自然纹理内蕴深长。
极富质感的软装布设打造出空间的精致度与人文气息,明媚的阳光得以在空间里随意跳跃,为居者提供体贴舒适的居家时光。
Tea room
茶室
负二楼设置了茶室空间,茶室的桌椅色彩不同,与墙面的背景形成呼应,成为了一个不容错过的细节。摆上茶具和绿植,禅意自在,温暖由心,给内心世界创造了一处向往的栖居之所。
& 负一楼布置了两间小卧室、一间储物间,开敞区有健身房与娱乐室空间。
& 在后院下方同负二楼一样布置了卫生间、洗衣间及设备阳台。
& 一楼在原建筑空间基础上,在侧面加开了两扇小窗户,优化了客厅空间的采光,也让客厅和花园有了更多的视线交流。
& 餐厅区域也是电梯厅空间与走道空间,让前场与后场串联起来。在最安静的区域设置了卧室,既满足了使用要求,也实现了房间与后院的联系。
Living room
客厅
增加的窗户尽可能多地纳入阳光和空气,也让室内外有了更多的视线交流。无主灯的设计,给人以简单大方的空间感,沙发墙以大幅抽象挂画为背景,呼应不规则的茶几组合,简单的色彩搭配,晕染出内敛的现代简约空间。
Dinning room 餐厅
在空间布局上,餐厅处于厨房与客厅的连接位置,起到了枢纽作用。清晰的动线,让居住者能有更好的交流和使用感受。Kitchen 厨房
厨房分为中西两个部分。西厨与餐厅相邻,嵌入式冰箱更显简洁,保留了岛台设计,起到分流的同时,更多的操作台面也能满足居住者不同的使用要求;而中厨与户外花园相邻,烹饪的间隙悄然抬头,也有一片怡人的景色在等待。
Elderly room
老人房
& 二楼空间布置了两间儿童房与一间客房,同时在楼梯厅旁边预留了儿童活动间,可以学习也可以玩耍使用。活动间外面有景观阳台,让室内空间与室外空间有所缓冲。
& 两间儿童房采用套房形式布置,各自有独立的卫生间,在使用品质上充分考虑,满足以后的使用变化。
& 在儿童房卫生间里设计了独立储物柜,在满足储物需求的同时,也优化了卫生间过长的弊端,同时卫生间显得比较轻盈生动。
Son room
儿子房
儿子房以蓝色为主打,淡蓝色和灰色搭配的床品组合,与床头的背景形成呼应,大面积的低饱和度色彩,营造出温和舒适的氛围,充满卡通趣味的玩偶,让空间变得童真满满。
Daughter room 女儿房
女儿房则是在素雅的基础上加以女生都爱的粉色点缀,粉色的床和单椅,像甜甜的棉花糖,很有温暖甜美的感觉,一幅斑斓的床头画也为空间增添了些许灵动之感。
Study
书房
木质的书桌椅、展示柜和边柜有序地摆放在书房,统一的元素让空间显得整齐美观,摆上绿植,又多了几分禅意。这个空间可以作为书房使用,也可以是两个孩子平时的活动玩耍区域。
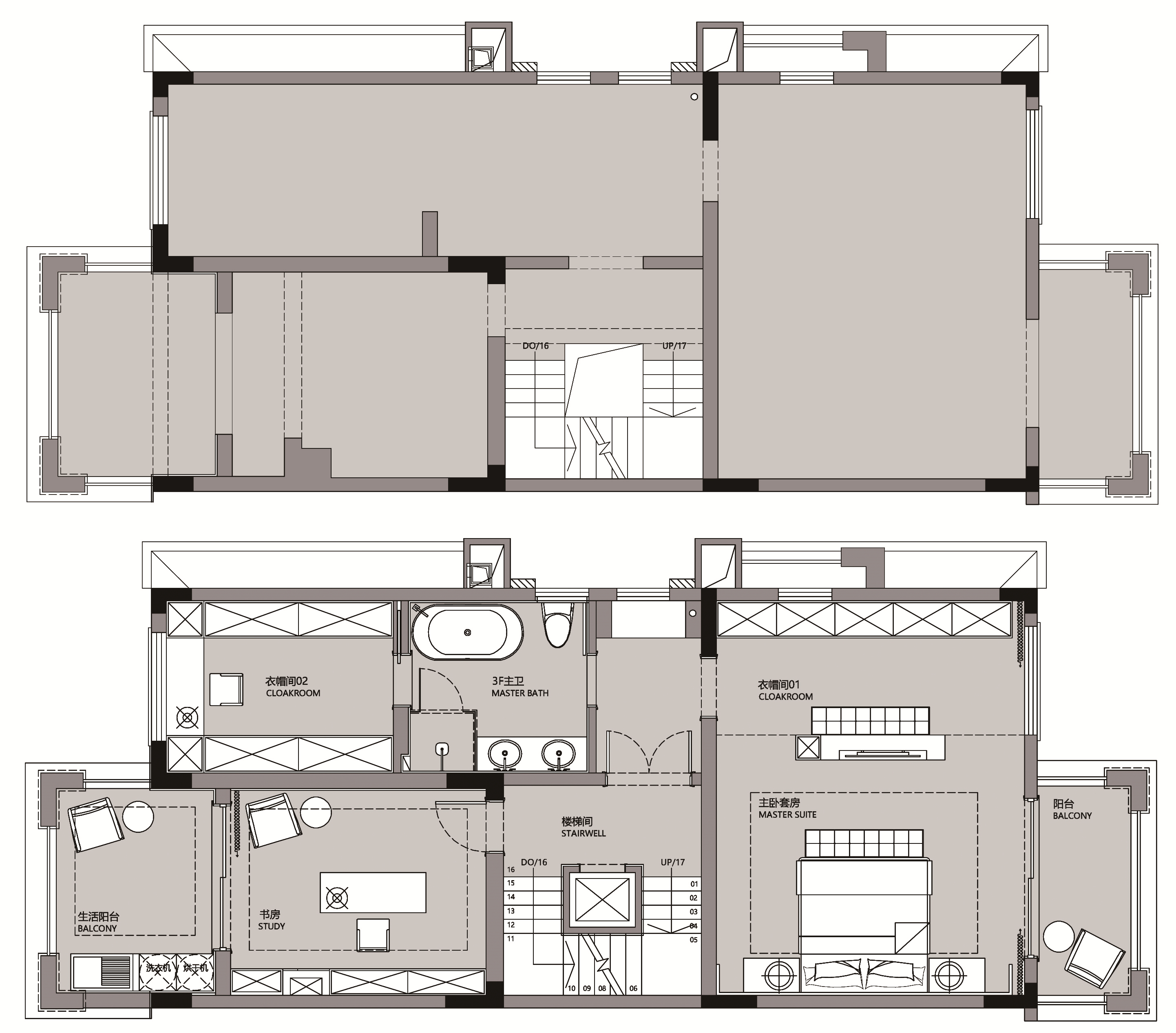
& 三楼布置了独立的书房空间与阳台空间,卧室分为三个区域:睡眠区域、卫生间与衣帽间。
& 在满足使用需求的同时,充分考虑了动线设计,让居住者在使用过程中更加便捷。
Master bedroom
主卧
卧室墙面采用木饰面与地面的木地板相呼应,营造出温润质感。对称的金属吊灯营造出和谐的氛围感,靠窗的床头用了不一样的处理手法,既不单调又不显得突兀。
Main toilet
主卫
家里卫生间的布置都在一条竖向轴线上,在满足基本使用要求的同时,最大限度地提高使用的舒适性与品质性。
& 电梯可以直接到达阁楼空间,这个空间作为储物间及第二活动空间布置,家庭成员可以在这里发展自己的兴趣爱好,也可以作为朋友到访的第二活动空间。
满足一切美好的憧憬
DE
THEEND..
案例信息
项目丨金辉耀江府
建筑面积丨500㎡
户型丨联排别墅
风格丨现代风格
硬装设计丨DE 设计事务所
软装设计丨D.ART 软装服务机构
施工团队丨DE 工程中心
来自群组:
客服
消息
收藏
下载
最近










































