查看完整案例

收藏

下载
屋子在一点点变“空”
像透明的与自由变化的天气联系起来
家宅和屋主的性格、职业总有一定的关系,从事审计师工作的新婚夫妻,他们有很强的逻辑思维,平时工作中自是非常干脆利落,不喜欢拖泥带水,在新家装修时将这种特质延用下来,空间没有束缚的条框,但功能有条理的衔接。屋主很喜欢石材的质感,玻璃、镜面材质,他们的家也获得自内而外的通透,与明亮接洽。
-
虚化界限,被解放的空间
空间是未满的状态,可以容纳各种可能与想象。
设计师着重塑造了公共空间的精神,而内部的生活样貌则预留出一些可以改变的余地,创造出个人印记鲜明的居所。不必在意是否华美,意指形色高雅,空间去除纷杂装饰,以木皮、石材作为主要的空间表情,用隐形门统一房门。
考虑到层高影响,设计师决定让梁体外露,以保留空间原先的个性,以梁体为线将客餐厅横向串联起来,百叶帘为界,将书房与客厅再次连接。我们把重点放在书房的片墙处理上,大理石的半高背景加上超白玻璃的组合,让客厅和书房之间有互动也有划分,其他墙面都清爽释放出来做留白处理。
在家具的选择上我们延续了整体干净利落的感受,选用了皮质硬挺的沙发来增加空间的气质,米色单椅承袭品质,装饰也可以哲学化,简单但耐看。设计师积极让整个场域在材料的高低错落中一次推进,不仅能感受尺度绵延,分区与分区也因为界限虚化而暧昧多元。
-
对峙与包容,合二为一
感受空间的包容,功能流畅衔接,简单生活的美妙。
在功能聚集的开放性场所,餐厅由一个固定岛台加上一米八的长餐桌组成。岛台一侧采用了镜面材质,在视觉上增加了过道的通透感,也藉此横向分割出餐厨范畴,岛台下的储物空间也补充了厨房的一些收纳。
空间的梳理上我们把储物全部边置,释放出更多的空间让屋主游走其中,享受其中。为了避免空间太生硬、直接,另外加入了一些木质元素来调节,餐厅区域有重色半围合,用力量感引出待客的仪式感。
-
透明感书房
像上了一层透明的釉,光装满书房。
将书房置入到客厅中,以片墙形式分割,既是客厅的电视背景,亦是书房办公书桌。慢慢地走进去,在被簇拥的空间中感受空旷,借由材质特性,比如石材的光感,玻璃的清透,百叶的光影和留白的墙面,完成这一幅“定格”的透明感。
-
隐形分界,再回归本质
极少主义的手法不仅体现在空间的物质层面,更在于模糊掉人的心理边界,为空间所承载的生活方式提供探索未来的无限可能。
灰色调突显出来,沉静的一面藏在卧室里。
卧室的梳妆区域我们以乳胶漆分色做了一个界定划分,灰色的乳胶漆搭配灰色的桌面形成一个灰色BOX。将屋主的生活状态细细描摹出来,以空间与人的情感链接为主导,让氛围更加平和,向内寻求空间所代表的人与内心的关系。
我们将原有卫生间重新规划扩大后,置入洗衣功能,方便沐浴后直接清洁。节省时间,让做家务更加便捷。
家的后面有一个大露台,关于院子的梦想在空中展开。
考虑到露台面积不大,没有做过多复杂处理,将露台一分为二,一边铺设防腐木作为后期的聚会烧烤区域,一边铺设汀步作为室内的清洁打扫区,边缘以花台围绕一圈,种植了花草和一些蔬菜,也为加班后加餐方便解决了一些食材,向蔬菜自由靠拢。
-
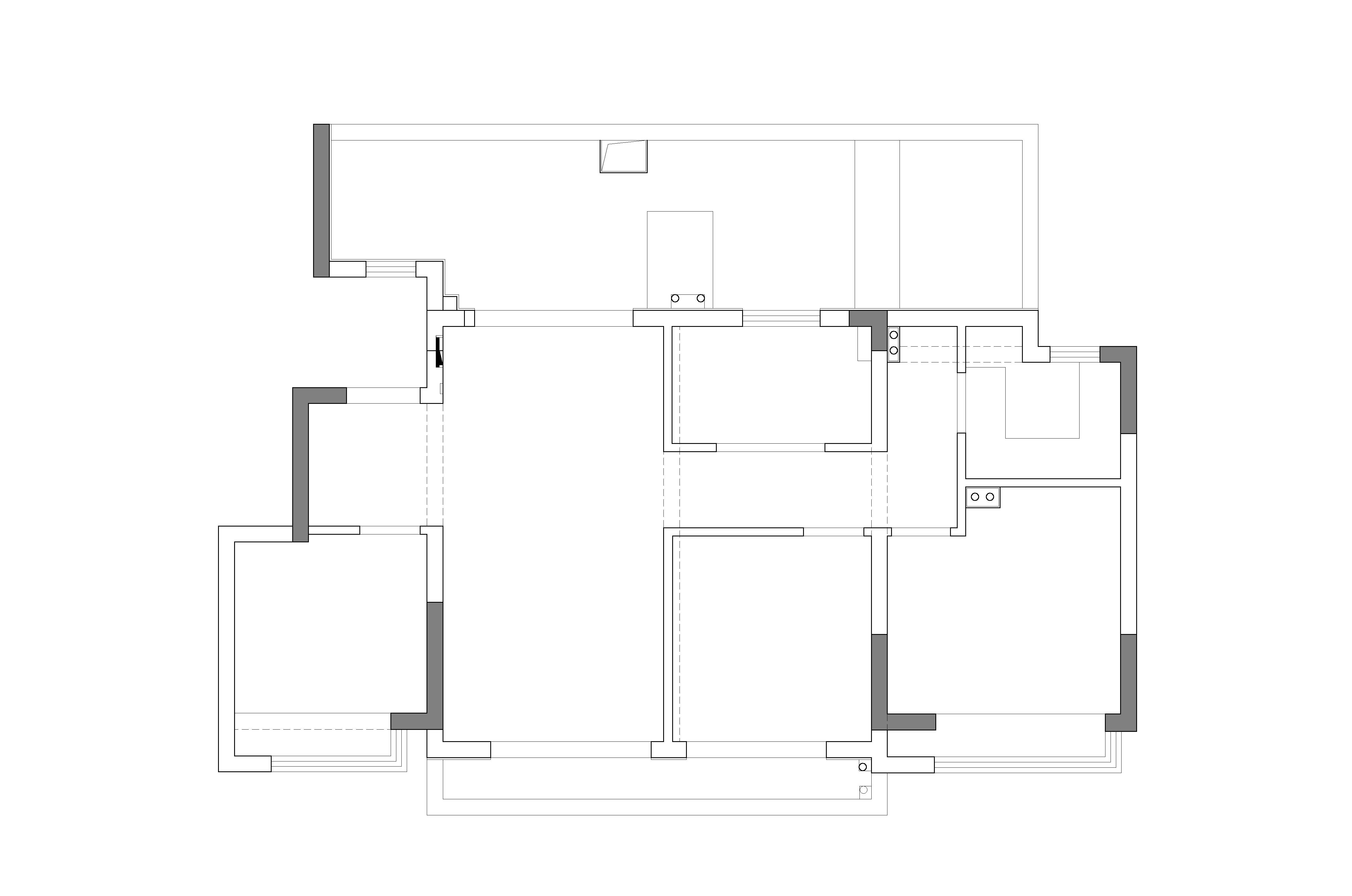
户型改造前后对比
项目名称
/ 深轴线
项目地址
/ 南京 语山棠
主创团队
/ 云行设计
项目周期
/ 2020.8-2021.12
建筑面积
/85㎡+露台23㎡
项目类型
/ 平层
整体造价
/ 30w(不含活动家电)
空间摄影
/ 黑曜石
主要材料
/ 玻璃、石材、双饰面、镜面
客服
消息
收藏
下载
最近































