查看完整案例

收藏

下载
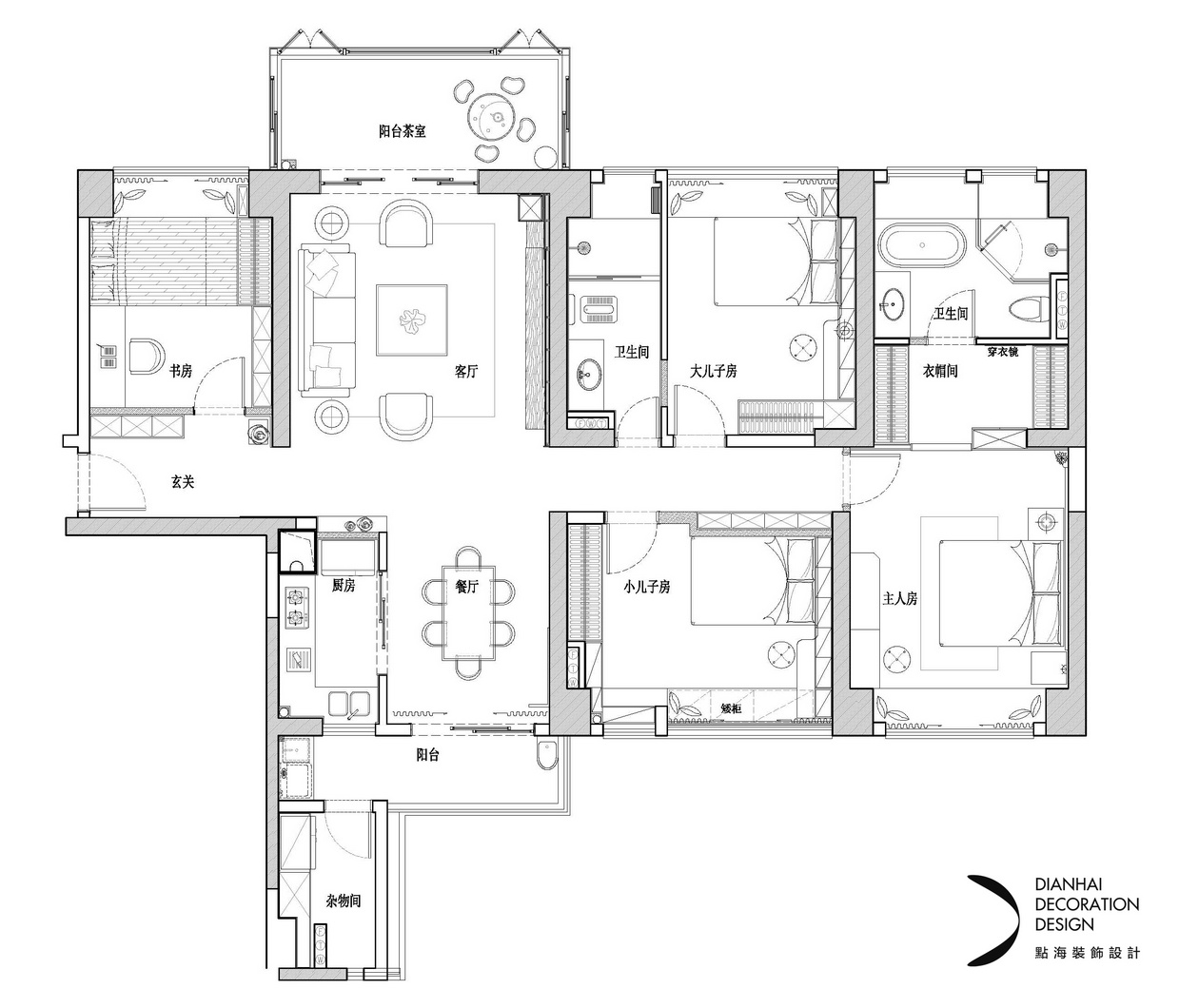
中式元素贯穿了整个家居空间,是对东方特有美感的传承与启发。本项目的使用者为四口之家,这对文化底蕴深厚的父母,选择了更为年轻一代接受的简约东方风格,不回避传统元素,不回避当下审美,慕古而不复古,在意象上追述,在韵味上靠近。东方文化的最高追求不是美,是雅。01 黄杨木直纹木纹饰面,配合上简约素雅的岩板面、纯白石座,电视背景墙在有意无意的现代极简与传统中式的对碰中,运用了不同比例的调和,灵动精致,富有层次感;左侧上方的月球灯聚焦视线,将角落处点亮,灯光映射在木饰面上温暖舒适;点亮的灯光,也引向了通往由阳台改造的,可饱览一线江景的茶室空间。
简体中式的表达,是独特、干净、简约,但又不乏细节,令人有不断发现的惊喜。
02 入门即见过道,房间门前的一侧作为端景位置,搭配绿化,使室内空间顿时绿意盎然,充满生机。
03 与客厅相接的是就餐区及厨房位置,雅致的水墨画墙布,转角压背屏风,中式韵味的餐椅和大理石金属质感的餐桌,搭配那一抹绿意盎然,让整个餐厅充满了生活气息,却又不乏高雅与舒适。
设计师回到文化审美的初衷,把清雅的水墨押韵的东方意境融入空间,传出人与空间,人与人之间的美好关系,让人身处其中,即可找回内心的宁静。
04通过走道,便可进入各个家庭成员的隐私空间。走廊的尽头,是主人家的卧室,水墨画床头背景传承了中式文化在主卧中的诠释。
主卧拥有足够的空间与明亮的大飘窗,其设计重心为突出空间的艺术品位,感受雅致宁静不失细节的空间体验。
小孩房及书房延续了各个空间的韵味,木色与白色的交融,被去掉具象的元素,抽象成了构图与气质,浓浓地贯穿于每个空间,干净,整洁,放松而舒适,却依然保证了储物空间的充足。
本案的设计方式,是设计师希望呈现给业主一种隐约而有内涵的东方印象,现代与传统文化互相穿插,互相交融,描绘出一幅当代水墨。
项目地址:佛山市顺德区泰禾红郡府佛山院子
项目面积:200㎡
完工时间:2021.9
设计团队:佛山点海设计
软装设计:采虹空间
项目摄影:一千度视觉
施工单位:佛山市点海装饰设计工程有限公司
佛山市点海装饰设计工程有限公司创建于 2009 年,是集室内设计、环境设计、软装设计等一体化的综合性专业设计公司,主要从事办公空间、酒店民宿会所空间、高端居住空间、商业空间等设计项目。通过十多年来多样化设计项目的经验与累积,公司拥有资深的服务团队,其获得多项国内外设计大奖。公司对设计风格及设计素质要求严谨,以专业团队的努力协作,从空间、材料、家具、软装各个环节紧密把关,确保为客户提供至高水准的个性化定制服务。
客服
消息
收藏
下载
最近




































