查看完整案例

收藏

下载
确切地说,这是一个新“家”。
家即心之所安之处,无论外界的繁华或是凄凉,
一回家,心便有了着落,一切也就都能放下。
作品名称丨尙合· 新家
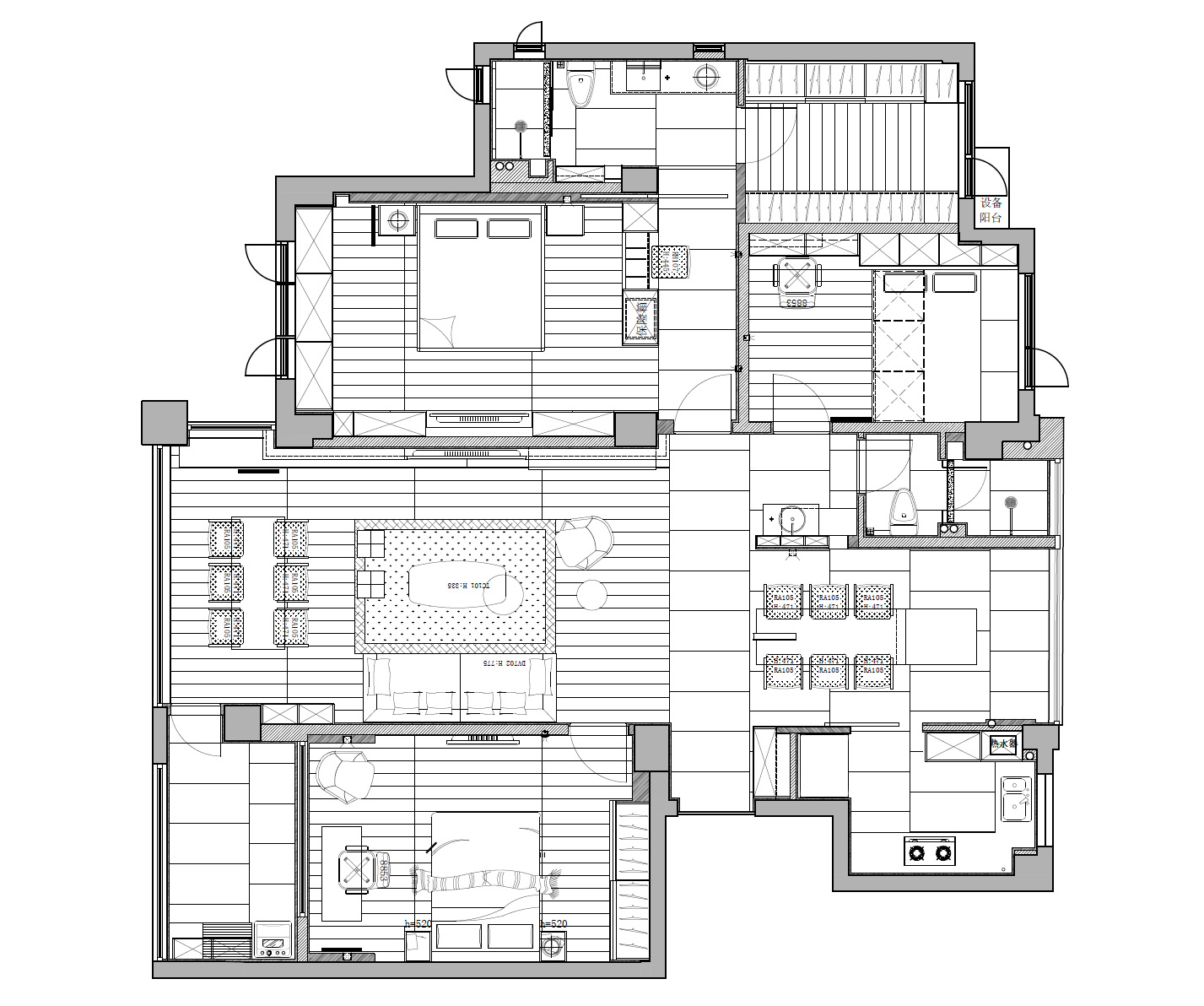
项目地址丨台州·上和家园
户型面积丨145㎡
装修风格丨现代简约
主案设计丨邵栎壬
项目摄影丨詹诗瀚
全案高定丨卡翡亚
平面布局
推门进去,
低饱和度的黑白灰以及深浅厚薄冷暖不一却又极其和諧的色调立马映入眼底,
场景切换情绪仿佛也马上得到了一次释放,
外间的纷扰立即被摒弃身后。
稍一细看,
地面不同材质的铺贴区分出了使用功能区,
泾渭分明,
天平却一反常态呼应整体,
突兀便瞬间化为无形,直为一神来之笔。
温润的木材质感贯穿整个空间,
门和背景、墙面合为一体,
看似随意的线条分割恰好地把握了面的比例以及体的尺度,
一切不着痕迹顺其自然。
细细品味,
对原始空间的重新分割可以看出设计师不凡的大局观
及对透视的校正使用得心应手。
整体造型兼具实用性直白大气,
绝不为设计而设计。
使用色彩的协调和互补,
似不经意又再三斟酌,
每项细节都有平衡的位置,
大到家具,小到每件摆设、照片、器皿等的出现,
都有原因,都有故事,不多不少,恰如其分。
夜色渐渐降临,天平灯和暗藏灯带被陆续打开。
如果说建筑的灵魂是空间的话,那么灯光就是空间的灵魂。
整个空间没有所谓的主灯,每盏灯都是主角,也是配角,
不同的组合不同的光影流动,它们已经不是冷冰冰的照明设施,
而是实用和审美相结合的艺术了!
窗外,也已是万家灯火,闻着厨房隐约飘来的香气,如此生活,甚好!
对话卡翡亚
简约风格,精致设计,既是生活的理念,也是生活的态度。卡翡亚与不同的设计工作室合作,不断为品味人士带来更多現代家居案例。
客服
消息
收藏
下载
最近
































