查看完整案例

收藏

下载
说在前面:男业主是IT工作者,平时的喜好就是宅在家捣鼓数码产品、打打游戏,所以对家的要求就是要舒适,极简。设计师结合业主需求打造意式极简+侘寂风,兼具实用、低饱和、质感、高级,让业主在工作一天,拖着疲惫的身体回到家时,能有一个彻底放松休息的空间。
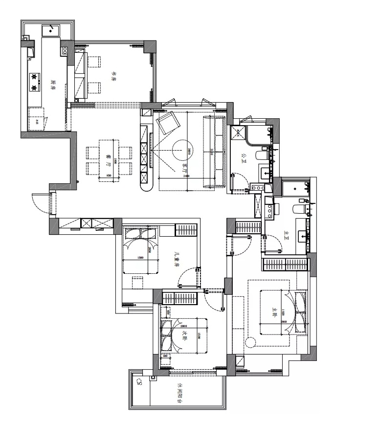
毛坯房开始测量设计,在客厅功能性思考无中生有的电视背景墙,以及多处弧形设计。
客厅以简约的白为基调,轻柔的线条水彩画,和地毯以同色系相衬,注入艺术的美学表达,丰富了居者内心的生活色彩,白色的包容,往往体现于多层次的色彩与材料搭配。
自由弧线的电视背景墙是客厅空间的亮点,微水泥材质现场制作背景墙基层,电视背景留有空隙让视觉可以穿透至餐厅和阳台,给空间增加了趣味以及灵活性。
感受到家中属于家具的小确幸,美与特别,悄悄投来几束光
餐厅背景墙餐边柜开放式和柜门的结合,微水泥材质与木质家具形成的视觉对比,让整体空间层次更为丰富,水晶吊灯的质感和软装摆件的呼应,让收纳充足的同时也保证了视觉的饱满多样感。
作为书房和嬉戏的小天地,圆润可爱的儿童桌椅色调清新自然,创意拱形书柜也极具趣味性。
主卧背景墙可以说是决定卧室颜值的关键,使用木饰面拼接的半墙设计,以内嵌灯光为主卧氛围加分,内敛而素净,从材质和造型上放大卧室的美学意义,为屋主营造舒适的休憩时光。
女孩房以浅色打底,利用不同饱和度的粉色装饰家居摆件,让空间粉嫩灵动起来。白色点缀原木色带来洁净,到顶的衣柜与开放柜为物品提供秩序,窗前的位置做成桌面可以成为独立学习区。
绿色可以营造轻松且富有质感的格调 让人舒适、放松,它作为相对和谐系数很高的颜色,不容易给空间带来冲突感,让男孩房的家居氛围更加清爽舒适
【项目信息】
全案软装:朴森全案设计
全屋定制 / 家具 / 软装:朴森
硬装团队:安优设计
客服
消息
收藏
下载
最近
















