查看完整案例

收藏

下载
设计公司:南昌阿鹤设计工作室
房屋格局:5房3厅5卫 / 项目面积:380平方米
【说在前面】
机缘巧合让我遇到了阿鹤团队,设计之初,阿鹤没有强势地先入为主,而是让我把个人需求、生活习惯梳理成文字发给他,他在业主需求基础上构思设计。
我和父母对装修最大的诉求就是功能实用,在设计上,满足了睡卧、会客、烹饪三层分区,做到了各自独立、互不打扰,整体风格也很简约,几乎没有什么冗余。还有书房下翻床、厨房玻璃推拉门、室外庭院、卫生间镜柜……这些美观实用的设计巧思,都让我们觉得惊喜。
从设计到完工,从毛坯房到梦想中的家,我见证了这套房子所有的变化。感谢父母,从不过多干预装修,让我能随心选择想要的风格。感谢阿鹤团队,这些年轻人和我一起拼出了这个温馨的家。
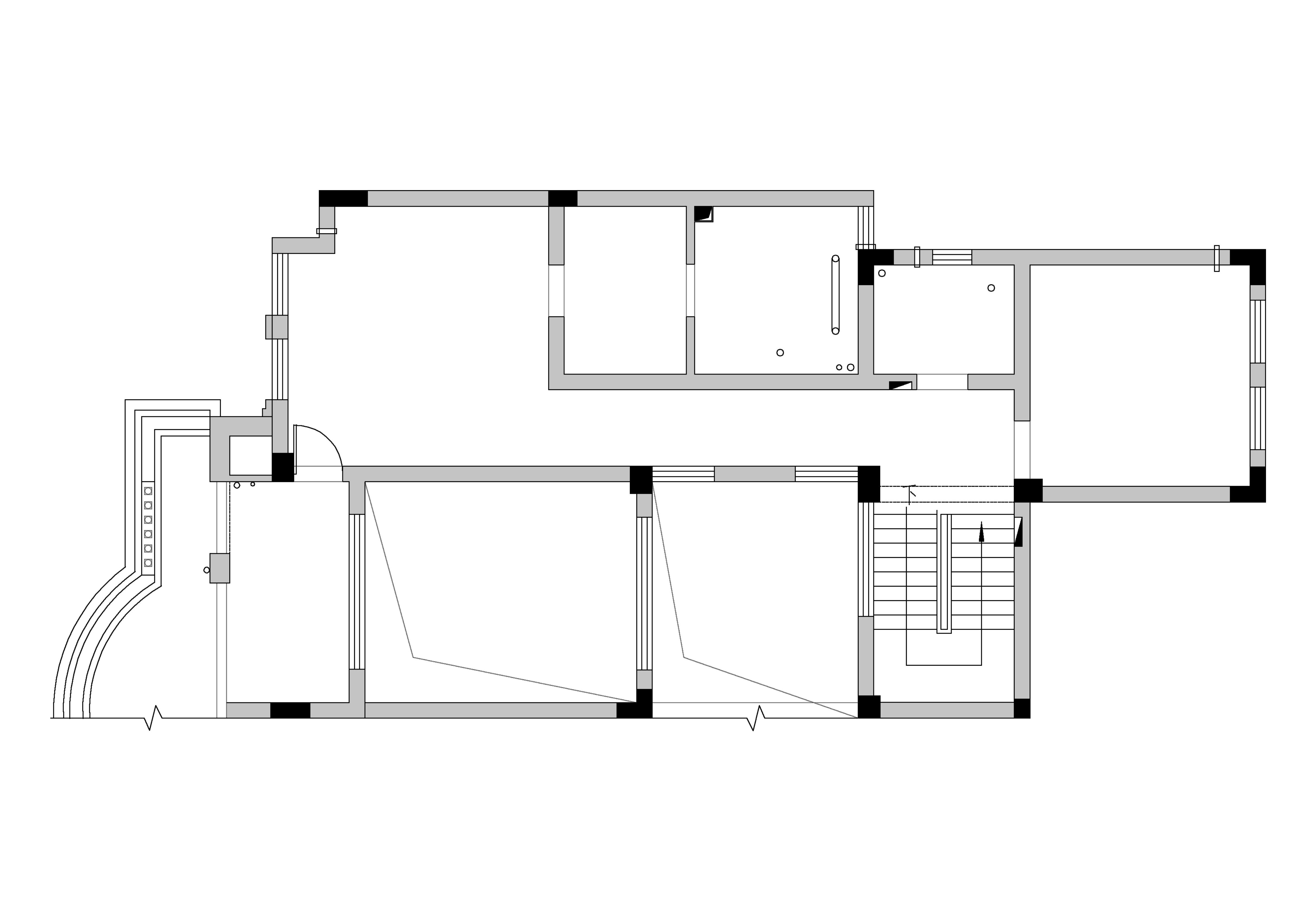
▼原始结构
原始结构是一个三层的排屋中间户负一楼的采光很差空间利用不好-楼中间有一个很大的天井用来采光导致--楼的空间利用率就不高厨房的采光很差二楼也是空间利用率不好所以空间的利用和负一楼的采光就是这次设计改造的重点
▼平面方案
户型改造后首先确定的是每一层的功能定位负一楼定位成功能区把厨房餐厅会客厅麻将房安排在这里一楼是起居室的空间多功能房和客房安排在这一层二楼是休息区然后把把楼梯改到了房子的中轴这样两边的空间就更好的利用负一楼为了采光最大化向南面开挖了采光天井让负一楼的采光最大化
▼1F客厅
一楼南门入户区域沿着墙面做了一整面的柜子用来收纳鞋子或者一些杂物考虑柜子造型的美观穿插了一条木色的抽屉局部用了黑色木饰面来搭配显的这面墙的柜子不是那么呆板
柜子的细节部分都是做了一门到顶的无拉手设计用的是按压的开门方式
客厅比较大沙发是设计的围合式的前后都可以坐人坐在沙发.上可以又不同的生活场景有些看电视有些玩手机这样就可以互不打扰背景墙设计的很简洁用.来一组收纳柜来做代替电视是和柜子齐平的在定制柜子的时候就需要看好电视的尺寸
楼梯看客厅的角度很喜欢这个角度有建筑雕塑的感觉
因为厨房和会客厅设计到了负一楼所以在-楼的地方设计了一个水吧区水吧区的旁边设计了暗藏的冰箱一楼喝水洗水果就不需要跑到负一楼去
黑色的楼梯扶手是用0.8MM的钢板做的在加工厂开好模板到现场来安装的然后现场喷氟碳漆
▼1F影音室
多功能书房包含了客房影院书房于一体白色柜子上面暗藏了幕布看电影的时候可以遥控下来木色柜子旁边是一个翻盖床
▼ -1F餐厅
可开可合的厨房是沟通了几次之后的结果两边分别是用了3联动的超白玻璃推拉门提前要预埋好吊轨
沿着厨房的柜子到餐厅这边是做一组餐边柜平时- -些小的家用电器可以放在西厨这边
▼ -1F会客厅
会客厅的墙面是在做之前墙面先垫出电视的厚度出来地面用的是防水磨石的地砖
楼梯的第一步是做了拉宽的处理显得楼梯更稳
▼主卧
床头背景用的是硬包和木饰面的搭配前期木工在原有墙面打好底后期留给软装和整木的人安装就可以了
▼女儿房
床头的凹位是用来放书的前期沟通的时候业主提出有这样的需求床尾本来是没有设计柜子的因为业主;的化妆品很多需要大量的收纳所以后面增加了一组柜子买床的时候就一定要注意尺寸不然过道的空间就不够了
客服
消息
收藏
下载
最近




























