查看完整案例

收藏

下载
JFYD
生活的理想状态就是去实现理想生活的过程。对于一个“蓬头垢面”的毛坯房而言,设计师无疑承担了魔术师的角色。要将之变幻出如梦似幻的表情,光琢磨造型是远远不够的。需要与空间融为一体,进入空间的思想,感受它的“心跳与脉搏”,方能将生命注入,使其充满生机与活力,能够吸引作为生活主体的人类,享受到戏剧与优雅,快乐与从容。
本案素净、平缓、整洁,一如年轻的业主。对于条理性的追求是人性的优点,无法接受杂乱无章的状态。就像《人潮汹涌》里的刘德华,即便失去记忆,爱整洁的性格却丝毫没变,这是角色的人格魅力所在。放到我们的设计里,这也是空间的魅力所在。所以,我们在整洁的道路上越走越远。
没有端正的会客厅,我们的客厅是家庭生活区,可以看电视,撸狗(小狗尚未入住),享受阅读纸质的乐趣,以及与家人分享时光。高光门板的墙柜,隐藏了巨大的储藏功能,只是为了空间的整洁。
胡桃色 KD 板处理的造型部分,其实是扩展出的原阳台。空间得到了延展,隐藏了结构柱。艺术壁灯闪耀全场。
当初选择这株树的时候,我们那么坚持,唯幸福树不取。除了寓意优秀之外,其形象气质也是超级匹配我们的环境。
从餐厅透视过去,空间表情惟妙惟肖。微笑中略带含蓄,犹抱琵琶的感觉,也不失为一种生活的乐趣。
反过来从客厅向餐厅透视亦然,楼梯的雕塑感是让设计师最为得意之笔,虽然几经周折,但最终落地仍然趋于完美。
洁白的社交厨房,呈现出一种冰冷的气质,干净中透出温婉的生活气息。设计过程中我们对色彩的调配与追求,不亚于在画布上反复琢磨每一笔颜料的彩度与形状。只是比画画更复杂,更小心翼翼。甚至连地面与墙面的反射度,都要反复的做思想实验,一遍遍在脑海中勾画出场景,再付诸实施。
哪怕是一道光的方向。这不是矫情,而是对精致生活的执着,一种仪式感,一种人与空间共舞的情趣。而这情趣又是那么的不动声色。只是静静的享受,亦或悠扬的钢琴曲,处变不惊的气度弥散在这组合的空间雕塑里了。
双层空间转换之虚实处理,蕴含了对美的追求。更是在转身间露出的淡然一笑。放慢上楼的脚步,体验家中安静的艺术。
开放的阅读空间,可做书房,亦可起居,又可与好友棋牌共乐。开放的不只是空间,也是心境。
卧室最“不着笔墨”,只想不被发现。慵懒于阳光下,放空思绪,什么都不想。我们认为这才是卧室应有的态度。
浴室倒是古灵精怪,仍逃不开主人的生活艺术。流淌的黑白纹理,在无序中寻找出有序。
春泥之名来自于那日午后布置场景,躺在灰绿的毛毛虫沙发里,脑中浮现出春泥中破土而出的嫩芽,犹如作品诞生之过程。艰辛是一定有的,只是不论遇到什么困难,我们都坚信成功一定在等着我们。探索的过程充满了挑战的乐趣。
其实对于设计师,一个项目完美落地后的收获远不只是那几张漂亮的照片。更多的与业主互相学习中得来人生成长,这种成长是能够丰富生命的。能够让你生命脚步踏出更多的莲花,面对非议与嘲讽,能够内心淡然,一笑而过。此种财富在当今社会弥足珍贵。
DESIGN PLAN
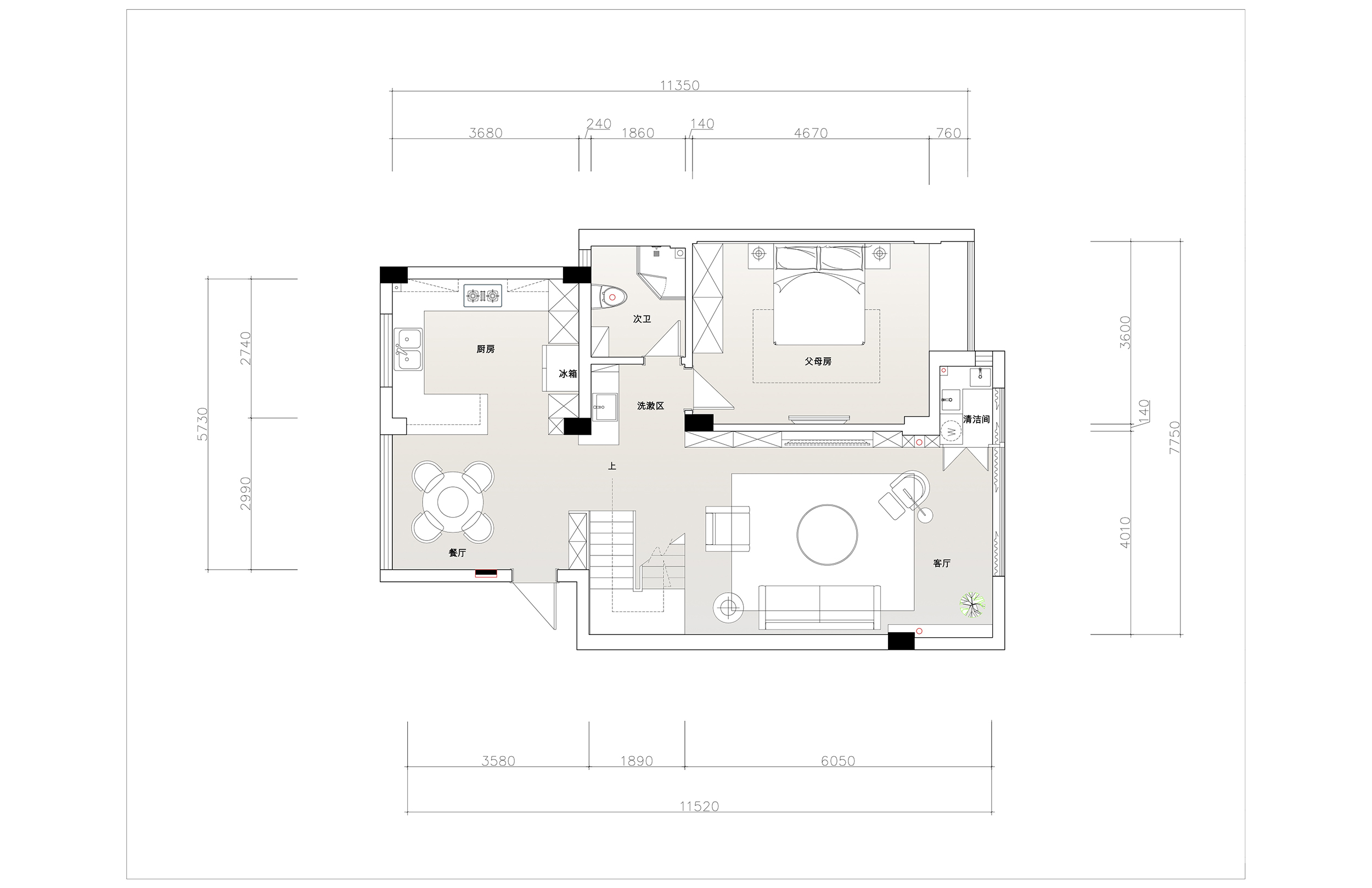
平面图
△ 一层平面图
△ 二层平面图
ABOUT THE PROJECT
项目信息
项目名称:春泥 | 亚夏风和苑
项目地点:江苏 镇江
项目面积:180㎡
设计机构:JFYD 贾峰云设计
设计主创:贾峰云
完工时间:2021 年 3 月
客服
消息
收藏
下载
最近


























