查看完整案例

收藏

下载

翻译
Architects:Manuel Tojal Architects
Area:1615ft²
Year:2023
Photographs:Francisco Nogueira
Manufacturers:Berker,CIN,CT Ibéricos,Carpilux,Catalano,Franke,JNF,Mitsubishi,Ofa,Oli,Silva&Carvalho,Wonder Wall,Zangra
Lead Architect:Manuel Cachão Tojal
Design Team:Liliana Nóbrega, Ricardo Seguro Pereira Francisca Patuleia Figueiras.
Main Contractor:Borges & Correa
Program :Remodelação, Residencial
State:Construído
Finishings:Lioz Marble, Existing wood floor
City:Lisbon
Country:Portugal
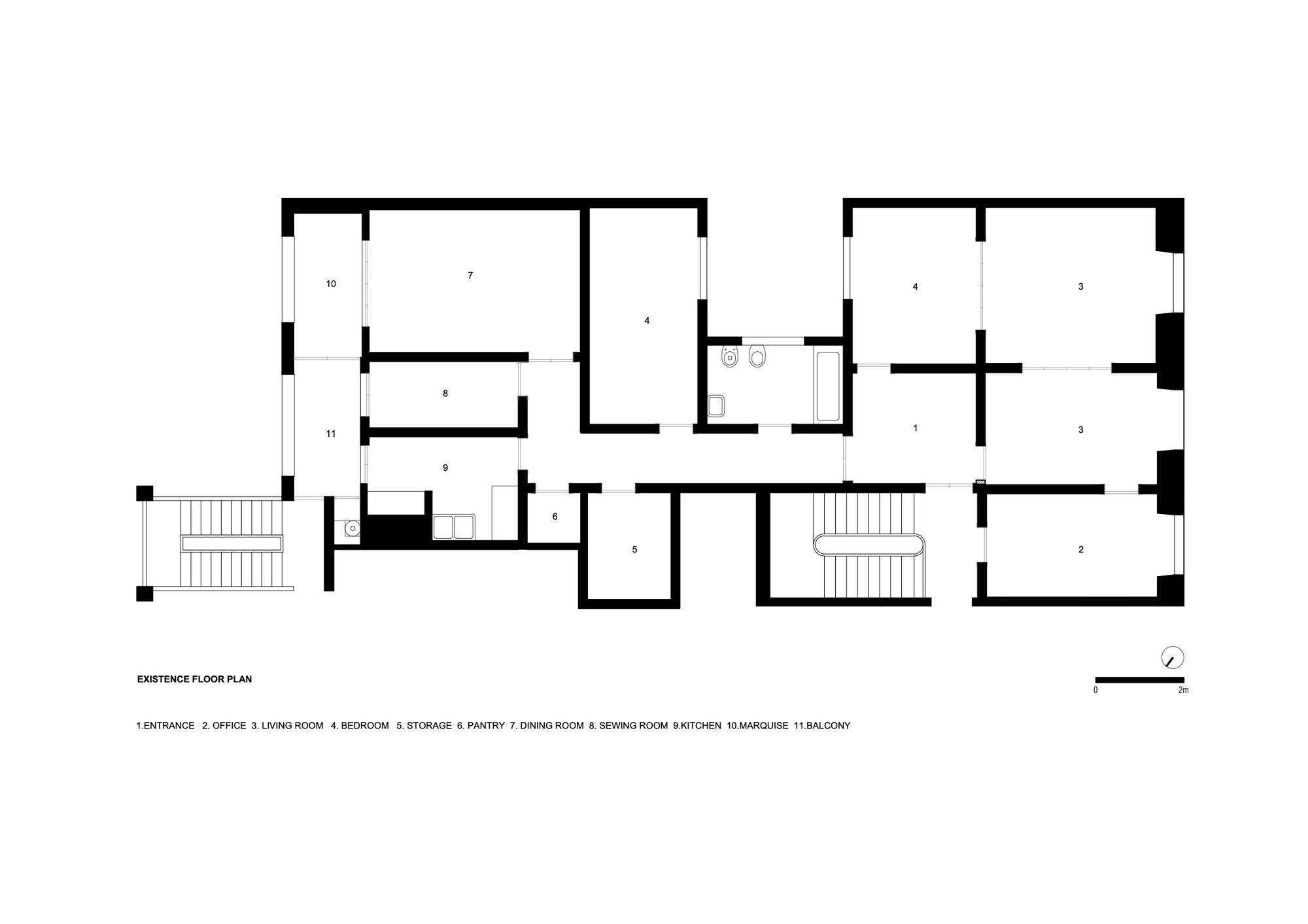
Text description provided by the architects. This project, of an apartment from the beginning of the 20th century, is located in a building between the iconic Diário de Notícias and the Sagrado Coração de Jesus Church, on Rua Rodrigues Sampaio.
When this project was commissioned to us, we immediately felt the enormous responsibility associated with the fact that the apartment was practically in its original state.
The apartment, with its typical typology and distribution of the time, had the kitchen and dining room on the back side and the social area facing the main street on the opposite side. All areas were served by anextensive corridor that allowed a transversal connection between the front and back of the apartment, where in the center a lobby illuminates the two bedrooms.
When faced with this renovation and taking into account that the program fit into the existing plan, we found it interesting to risk and maintain the apparent “schizophrenia” of the distribution of spaces from the original period, associated with an improvement in spatial and habitability conditions.
As a principle of intervention, it was decided to maintain the original character of the apartment, but with a sense of uniformity and connection between the spaces, reinforced by the fact that all spaces have different designs and types of flooring.
In this way, the various spaces that made up the social area were opened and assumed as one, with passageways or beams marking the existing spaces. The library area, despite being open to the living room, was framed in a gap, to take on the difference in the privacy of the space and also act as “a painting” for those in the living room. A W.C to support visitors was also introduced in the spatial reorganization of the apartment and the existing one was now integrated into the suite. The entrance hall has been taken over and through pivoting doors, it can be entirely closed or opened. The kitchen remained one of the most exceptional spaces in the house, making a more direct connection to the dining room, also extending to the balcony and exterior.
A single material (Lioz) and a single color (Terracotta) are responsible for standardizing the apartment and bringing a new identity without losing the essence of other times.
Project gallery
Project location
Address:Lisbon, Portugal
客服
消息
收藏
下载
最近





































