查看完整案例

收藏

下载

翻译
Architects:A3 Luppi Ugalde Winter
Area:1900m²
Manufacturers:Caros Divisores,New Light,Poral
Lead Architect:Andrea Winter
Drawings:Esteban Gonzalez
Developer:Bs As Flats
Construction:Isasias construcciones
Concrete:Loza construcciones
Sanitary Installations:Piunti.
Structure:Conest SRL.
Electrical Installations:Seel.
Landscape:Pastopaisajismo
City:Buenos Aires
Country:Argentina
Both in its private terraces and in the circulations and viewpoint, the premise is to generate visuals and dialogue with the environment as well as the entry of natural light. The proposal is based on generating units that are always entered through corridors and patios, offering the feeling of living in a house. These spaces are at the same time expansions completely integrated into the environments. The main areas relate to the terraces, blurring the boundaries, and capturing the visuals.
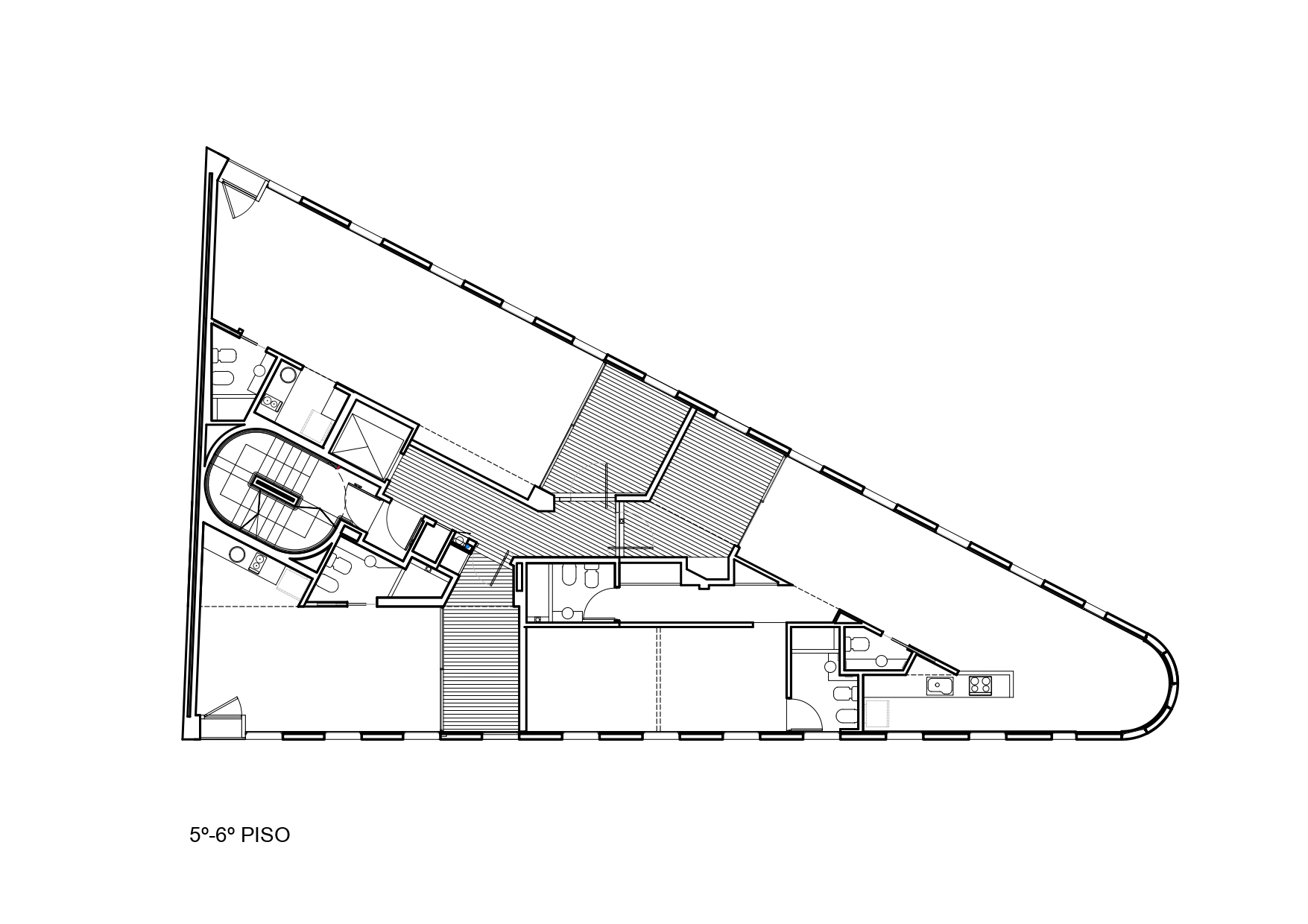
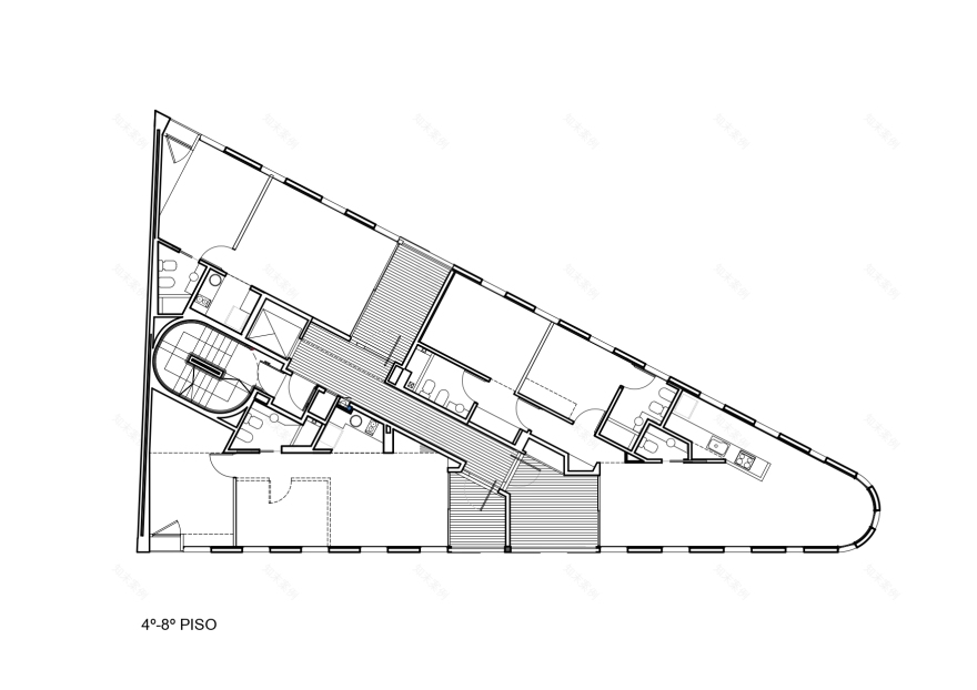
The building is made up of a ground floor, eight floors and two retreats on the ninth and tenth floors. The access is located on the façade of Av. Balbin. On the ground floor, garages and a completely transparent commercial space that consolidates the corner and integrates with the neighborhood. The services are located in the basement. All floors have three units, one large in the corner and two more on the sides, alternating dimensions and utility. The ninth floor, first retreat, consists of two homes with the particularity of taking advantage of the large perimeter expansion, while on the 10th floor, second retreat, the viewing terrace for common use is located.
As for the main decisions, the idea is to lean the core (staircase and elevator) on the party wall and generate a central corridor with access to each of the units. It is important to highlight that all the perimeter rooms of the building do not have columns, allowing flexibility to unify the premises. It is in this sense that the majority of the sanitary centers are located in the center of the plant, freeing up the areas that receive natural light.
Another relevant point of the building is the concept of the structure, a structural concrete envelope that frees all of the perimeter spaces from columns; This is complemented by a beam parallel to the edge and central columns that accompany the circulations that delimit circulation and services. This premise of communion between architecture and structural flexibility is translated into the language of the building from its genesis.
From its morphology, envelope, and play of full and empty spaces, an urban piece with a strong imprint that modifies the profile of the neighborhood. From living, houses that relate to the environment through the typological proposal that conceives a flexible and contemporary way of living. Re-elaborating the concept of the constructions that shone in Buenos Aires during the last century, this building gives identity to both those who inhabit it and its immediate surroundings.
Project gallery
Project location
Address:Buenos Aires, Argentina
客服
消息
收藏
下载
最近
































