查看完整案例

收藏

下载

翻译
Architects:ATA - Atelier Tiago Antero
Area:1378m²
Year:2021
Photographs:José Campos
Lead Architects:Tiago Antero; Vitor Fernandes
Collaborators:Abílio Silva, Catarina Fernandes, Nieves Schiafini, Francisco Soares, Pedro Queirós, Maria Rodrigues, João Albergaria, Eleftheria Petropoulou
Engineering:Stucco, Luísa Miguel, Daniel Pires, Fénix Engenharia
City:Porto
Country:Portugal
Text description provided by the architects. The purpose is to consolidate a protected city block in the city center by stitching the requested use – housing – with the need to solve the scale disruption of the urban void to intervene.
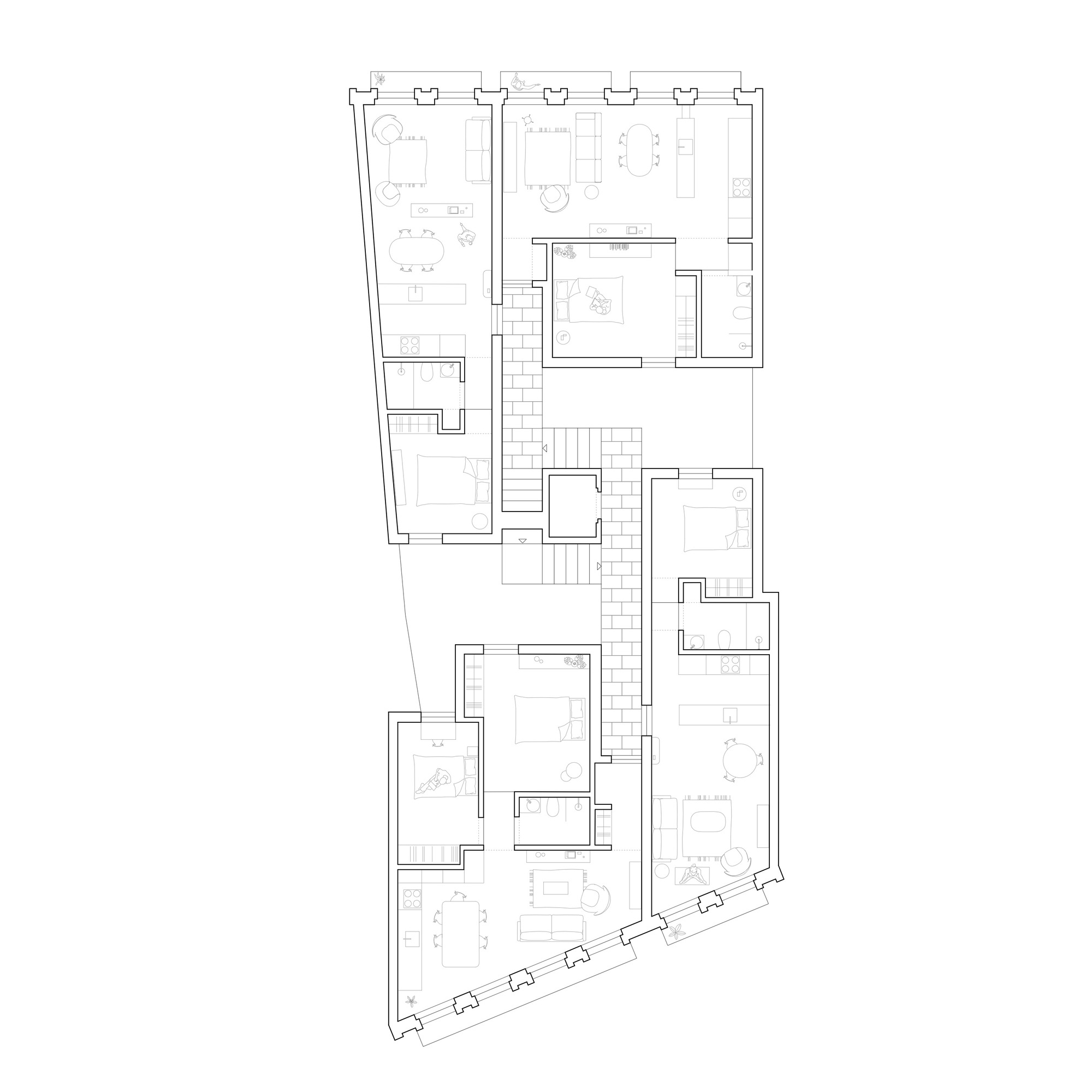
Schematically, it is proposed a building composed of two volumes for each of the streets with a jagged courtyard inside the block, with a central staircase that acts as a vital piece of the project, not only by its indelible impact in the space perception but mainly because this is the element that defines the buildings heights, consequently, all the altimetric relations with the surrounding, namely with cornices, eaves, mansards, balconies, windows height and granite socles.
The elevation metric, the tile's color and pattern choice, the distance between windows, as well as the design of the element itself – two casement openings with a fixed top panel limited by concrete pilasters – retain the association of the dynamic and tectonic of Porto’s surrounding buildings. The Genius Loci is the inexorable circumstance that dictates the formal lexicon.
The typological distribution- 4 apartments per floor – is intentionally hostage of the urban scale memory, in a morphological corollary that results in 4 volumes of 4 planes roof each, that evoke the 4 original plots, which composes the 5th project elevation. The ground floor is physically and visually permeable, functioning as an intermediate space between public and private, the moment where commerce and housing merge together and the space where the streets connect. The apartments turn their social areas to the street while the private area take advantage of the central courtyard inmost character, assuring transversal ventilation.
Project gallery
Project location
Address:Porto, Portugal
客服
消息
收藏
下载
最近




































