查看完整案例

收藏

下载

翻译
Architects:Alventosa Morell Arquitectes,Joan Josep Fortuny Giró
Area:4633m²
Year:2022
Photographs:Jose Hevia
Manufacturers:Diasen,Fusteria Galmes,Ladrillerias Mallorquinas,Teulera Can Benito
Lead Architects:Joan Josep Fortuny Giró, Xavier Morell, Marc Alventosa
Architecture And Drafting:Marina Morey
Construction Oversight:Gori Llambías
Drafting:Sandra Vargas
Layout:Raquel Mirón, Rebeca López, Eric Moya
Control Execution Of Works And Health Coordinator:Marco Menendez, Jaime Oliver
Structures:Joan Mas, Juan Fortuny
Foundation Calculation By Piloting:Lluis Guasp
Architect And Drafter Of The Basic Project:Jose Hevia
Photo Report:Jose Hevia
Calculation And Design Of Facilities:Estudis d'enginyeria de les Illes S.L.
City:Inca
Country:Spain
Text description provided by the architects. The plot owned by IBAVI has a rectangular shape with an approximate area of 3,266 m2. The proposed proposal attends to two fundamental aspects, the correct insertion of the building in the urban and physical environment as well as a solution that is a synthesis of the functional aspects of the program. The program proposed by the Balearic Housing Institute (IBAVI) consists of Parking in response to municipal regulations that is located underground and the 54 housing are located distributed by 18 flats by floor on the ground floor and two floors. In the interior space there is a common relationship space for users. The building is organized by a north-south axis that gives rise to the location of two independent volumes, creating a public space between them.
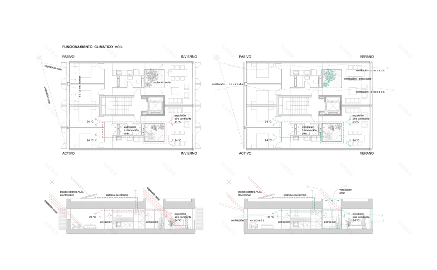
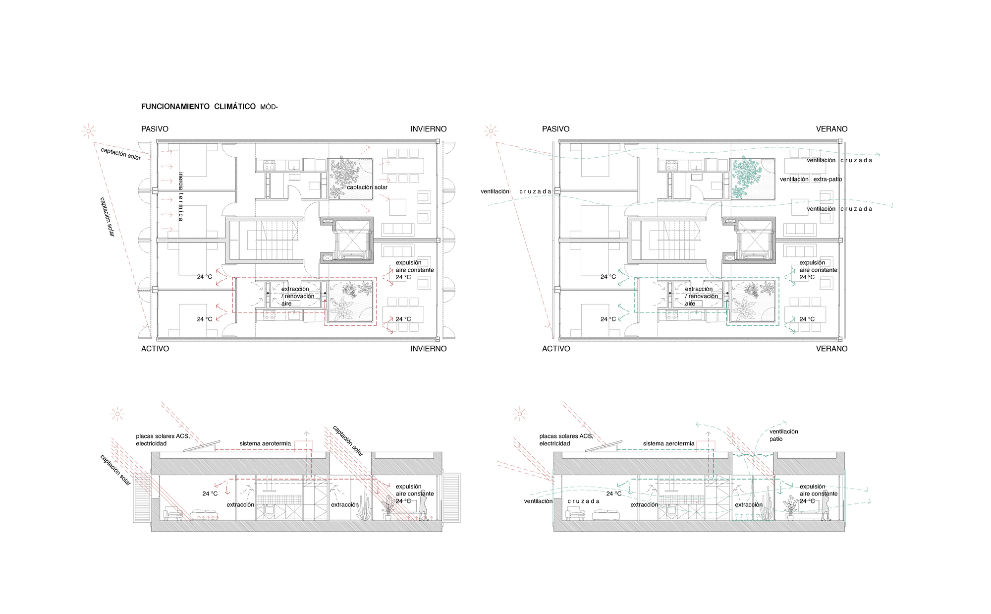
As a consequence of the strong unevenness of the land, the building has been settled on the upper level, creating an accessible route, thus we define the level +0.0 at the confluence of Raiguer Avenue with Emmet Abrahim street (highest point of the site). as the starting level of the set. The housing module is organized around a central wet core that defines two areas with a double orientation. The location of the day and night areas are changing by in height attending at the best sun orientation , winds , intimacy and views , generating different types of housing per floor. The houses have outdoor spaces: a private garden on the ground floor, and terraces on the successive floors. The structural solution of the building is using a system of reticular concrete slabs with large spans 35 cm thick and metal pillars. The underground is solved by means of concrete retaining walls, and the foundation by means of a system of deep foundations due to the expansive clays of the Zone. The façade layers are resolved by means of a double local ceramic sheet with recycled cotton insulation in the chamber and externally the envelope is resolved with external insulation using sprayed cork and coarse lime, on top of which is a layer of fine lime with natural pigments. The exterior carpentry is made of aluminium with a thermal break and the solar protections are made of Larch wood, certified from sustainable extraction.
The Roofs are flat and are solved by means of an inverted insulation and waterproofing system and recycled gravel. Above these are the photovoltaic panels, aerothermal and recovery equipment, and ventilation ducts. The interior pavements are ceramic local clay “cocked” with biomass. We have reduced the areal facilities on the bathroom areas there is the only ceiling. The ACS is produced thanks to a “NUOS” Aerothermal system with very low consumption and great performance. The ventilation of the houses is solved by means of heat recuperators that temper the air thanks to community Aerothermal systems. The community spaces on the ground floor have strictly solved the circulations with a concrete floor and the entirety of the space by means of some draining gravel pavements that allow the natural permeability of the ground torain water , allowing natural flow to the subsoil. Some “Jacarandas” will protect from the sun and accompany the circulation through this community space.
Project gallery
Project location
Address:Carrer del Canonge Sebastià Garcias Palou, 54, 07300 Inca, Illes Balears, Spain
客服
消息
收藏
下载
最近









































