查看完整案例

收藏

下载
这里是「北纬54 度蓝调」寓所,住着两大两小、活泼的一家人,空间结合了业主喜爱的北欧风与蓝色,以多样彩度的「蓝」为基调,辅以橘、黄跳色点缀,没有多余的装饰,一切都恰如其分,如同北欧生活哲学Lagom:「不多不少,刚刚好。」
曲线划开了空间中生硬的墙体,以圆弧造型包覆原始格局的棱棱角角。
客厅配上圆弧地毯和圆润的Sam Son 休闲椅,与天花、壁面的设计语汇相互呼应,并以边几取代茶几,为男孩们争取活动场域最大化,而墙上画作是业主亲手绘制的油画,别具纪念与展示意义。
将视听器材收纳于无形,以接收器远端遥控各式设备,为业主保留下一整面素净的电视墙。
因应疫情时代,高度使用酒精的情况下,我们在餐桌上贴了一层保护膜,避免酒精侵蚀原木桌面
水蓝色的六角水磨石砖铺设出圆弧落尘区,柜体间融入弧形的穿鞋空间,巧妙符合设计主轴,并于门板设计加长型隐藏取手,高度适合大人小孩使用。
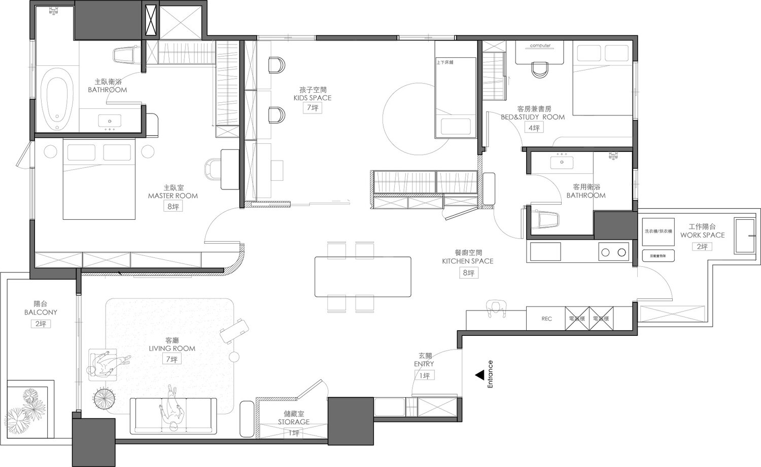
小孩房格局原为二房,我们将隔间打通为一房,让两兄弟能够一同学习、嬉戏、成长;同时在餐厅收纳柜右方安装同色系门片,门后即可通往小孩房,等他们长大后,仅需加装一道隔间墙,兄弟俩就能拥有个人空间,省去大规模的装潢变动。
小小年纪,哥哥和弟弟就是小画家,我们在墙上为兄弟俩刷出圆弧画布,任他们挥洒色彩,一旁黄与绿的Pantone 折叠椅为空间增添缤纷童趣;书墙为活动式设计,未来如果书桌或钢琴需要变动位置,可在原有框架里装上备用层板,扩充收纳空间。
主卧以清新的灰绿色打底,给予夫妻放松自在的氛围;主浴门口的开放式层架,让沐浴后的衣物、毛巾有适当的小空间安放。
使用频率不高的客房,身兼书房使用,空间延续「蓝调」主轴,在灰色调之上,以蓝、绿色床头软包、书桌椅、壁挂架提亮,彼此重叠的洞洞板、壁挂架和电脑萤幕组成和谐画面。
整体空间维持了一致的设计语汇,不论外界如何纷扰,当一家四口回到这里,都可以获得安定人心的蓝色力量。
客服
消息
收藏
下载
最近


























