查看完整案例

收藏

下载

翻译
Architects:STUDIO MOTLEY
Area:10500ft²
Year:2023
Photographs:Murtaza Gandhi
Structural Consultant:Cruthi Consultants
Principal Architects:Kajal Gupta, Anand K Rao
Project Architect:Adhiti S. Gautama, Dikshith T George
Interns:Sanket B, Tulika Upadhyay, Anu K, Pooja Prakash, Sascharisa, Annaporna, Disha Patel, Gayathri, Shreya Buddhadev, Manasi Talkar
Program :Residential- Multi -dwelling
Site Area:4000 sqft
Clients:Mr and Mrs Chugh
City:Bangalore
Country:India
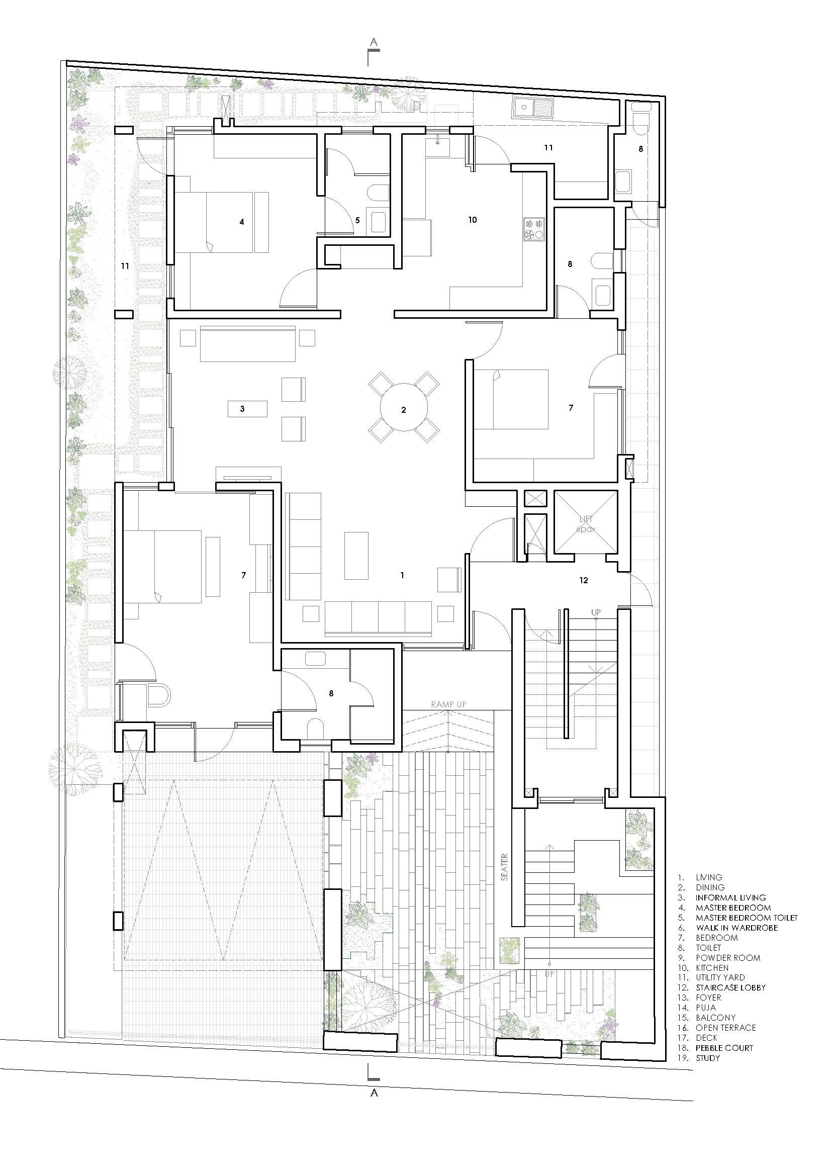
Text description provided by the architects. Located in Bangalore opposite a large neighborhood park, a set of 4 houses were to be built- one of which was to be the personal house for the client, and the others were to be let out. The intent was to create a quiet presence on the street and evoke a sense of nostalgia for the city, which was once famous as a garden city known for its slow pace of life but now facing unprecedented and mostly unplanned growth.
Taking a cue from its location, the houses feature large terraces, connecting each unit to the landscape beyond, from which an unobstructed view of the park can be experienced. On the second floor, this terrace is sheltered by a twenty-foot cantilevered roof, creating an extension of the park itself, onto which the house spills out.
The building is clad with Sadarahalli stone, a locally found granite in a rough, textured form to echo the older built fabric of the city. The façade also features an operable screen made of laminated bamboo to create a sense of privacy for the bedrooms.
Project gallery
Project location
Address:Bangalore, Karnataka, India
客服
消息
收藏
下载
最近





















