查看完整案例

收藏

下载

翻译
Architects:Juan García Nofuentes & Roser Martinez,ROOM ARQUITECTOS
Area:777m²
Year:2023
Photographs:Juanan Barros
Manufacturers:Saloni,Cortizo,Pavisuelos,Simon,imex
Lead Architects :Ruben Muñoz Quesada, Pablo Olmedo Puertas, Juan Garcia Nofuentes, Roser Martinez-Ramos e Iruela
Technical Architecture:Manuel Gomez Rodriguez
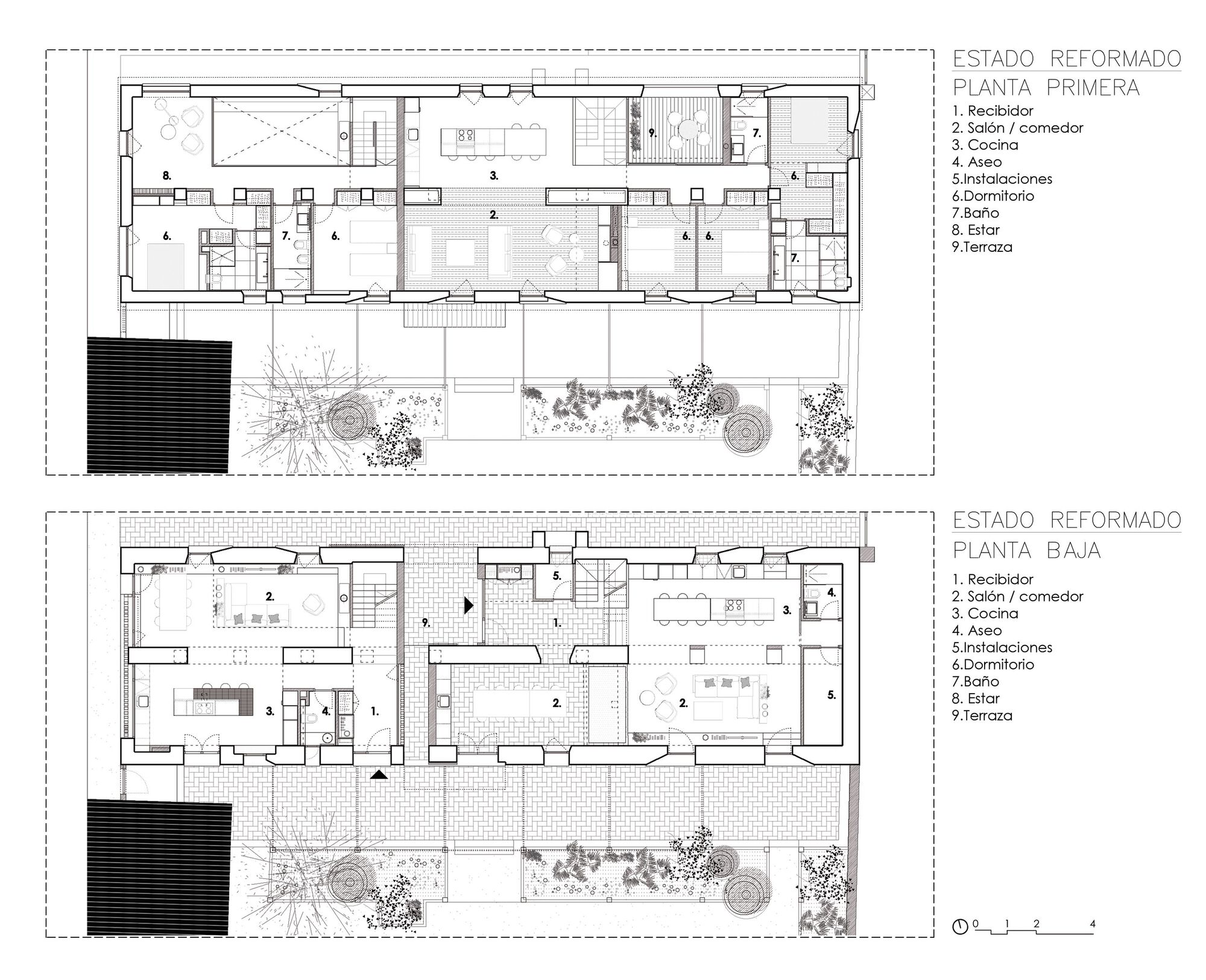
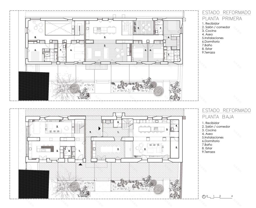
Program:Comprehensive rehabilitation and adaptation of existing farmhouse to 2 single-family homes
City:Belicena
Country:Spain
Text description provided by the architects. We are facing a building from the beginning of the last century, typical of the Vega de Granada, built in a rudimentary way with load-bearing walls and a gable roof on a wooden structure. The complex is developed around two "L" shaped bodies, open to a central courtyard and another one at the back where the swimming pool is currently located.
The functional program involves a comprehensive rehabilitation of one of the existing bodies to implement a program for two independent single-family homes with two different programs. The ground floor of one of the houses (the largest one) is intended for social and celebratory activities directly related to the central courtyard and the pool.
At the construction level, the interior of the entire building is emptied, reinforcing the existing foundation and consolidating load-bearing walls. Then, the new wooden floors are incorporated as an analogy to the original construction.
The materiality of the entire intervention strives to preserve the vernacular character of the original construction, maintaining the exposed load-bearing walls, and the sloping roof, and recovering the ceramic lattices as elements for solar control and ventilation. Together with the high thermal inertia of the existing perimeter walls, this promotes thermal comfort inside. Finally, the interior partitions that organize the program are executed with a materiality that is differentiated from the pre-existing elements, so that the before and after of the intervention can be appreciated at all times.
Project gallery
Project location
Address:18101 Belicena, Granada, Spain
客服
消息
收藏
下载
最近

























