查看完整案例

收藏

下载

翻译
Architects:KLab architecture
Area:1000m²
Year:2023
Photographs:Panagiotis Voumvakis
Manufacturers:Delta Marbles,Korakitis,Parkeform,sikatherm
Lead Architect:Konstantinos Labrinopoulos
Structural Design:Panos Mavridis-Maria Christodoulou OE
MEP Engineers:Idea Meletitiki-Alexandros Nikolaides
Project Managers:Future Constructions
Construction:Future Constructions
Landscape Design:Nature above
Project Architect:Evangelia Kakava
Design Team:Argiro Efstathiou, Eva Sarantopoulou, Vaso Dermitzaki, Nicolas Buruzciak
City:Voula
Country:Greece
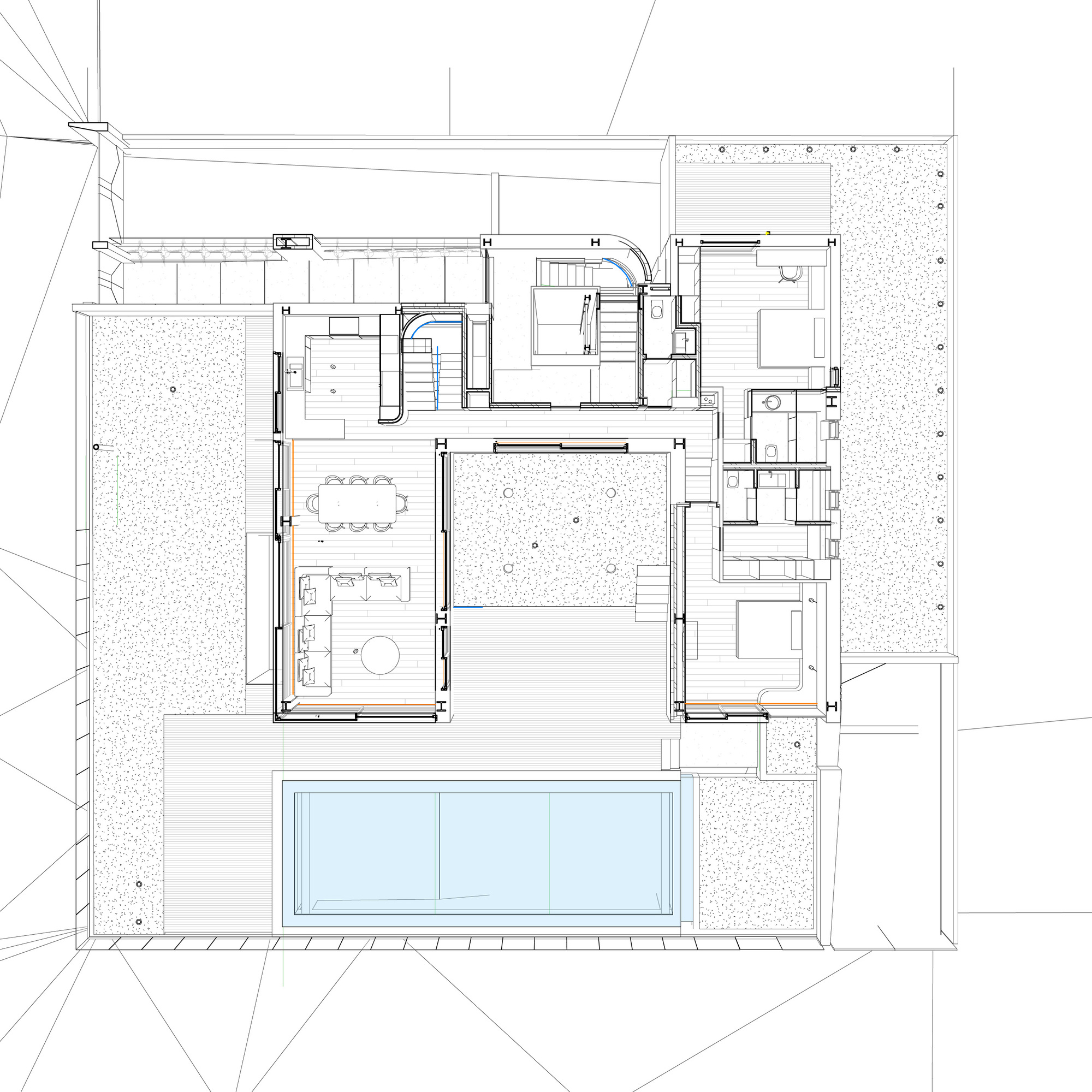
Text description provided by the architects. Our idea is to do vertically 3 single houses (villas) built on a metal structure.
2 of the most important characteristics of a single house are that it is detached, at a distance from adjacent buildings or neighbors and the 2nd is the garden with soft, green, and hard floors. These 2 were the creative-driven force of how we wanted our building to feel.
We tried to minimize the volumes that were attached to the next flat to minimize any possible interference between the people who owned the houses. We managed this by inserting a small middle floor each time, which produced a void space, especially combined with the atrium. The void space was then been occupied by gardens and outdoor covered areas.
In a way, the built part was equal or even less to the outdoor space, covered and uncovered and this is something quite new to an apartment buildings.
The building produces dramatic cutouts in its volume as the metal structure allowed us to create large cantilevered surfaces on top of light metal columns. The atrium and the volumes of the pools emphasized this almost sculptural subtraction of volume which created all these covered gardens.
The latest changes in the building regulations and also the new technologies which we have tested and introduced to our design, but also the need for new and more sustainable living conditions allowed us to fulfill our design and living experiment and produce this typical (at least for now) apartment building.
Project gallery
Project location
Address:Voula, Athens, Greece
客服
消息
收藏
下载
最近
































