查看完整案例

收藏

下载
本案为一套两层的小独栋,附带一方小小的庭院。
设计师在接手这个案子之初,屋主是很确信自家的风格偏现代简约的。
可戏剧性的是,效果最终呈现的却是日式混搭的风格。因为在设计的过程中,屋主已经不知不觉加入了大量原木和日式元素。
这也许和屋主长期旅日经历有关吧。
也许“家”就是这样一个地方,高度提炼了你生命中所有无法割舍的情愫与向往。
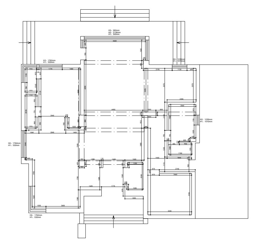
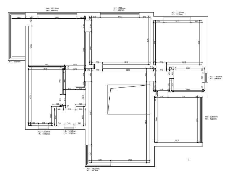
- 原始户型图 -
F1
F2
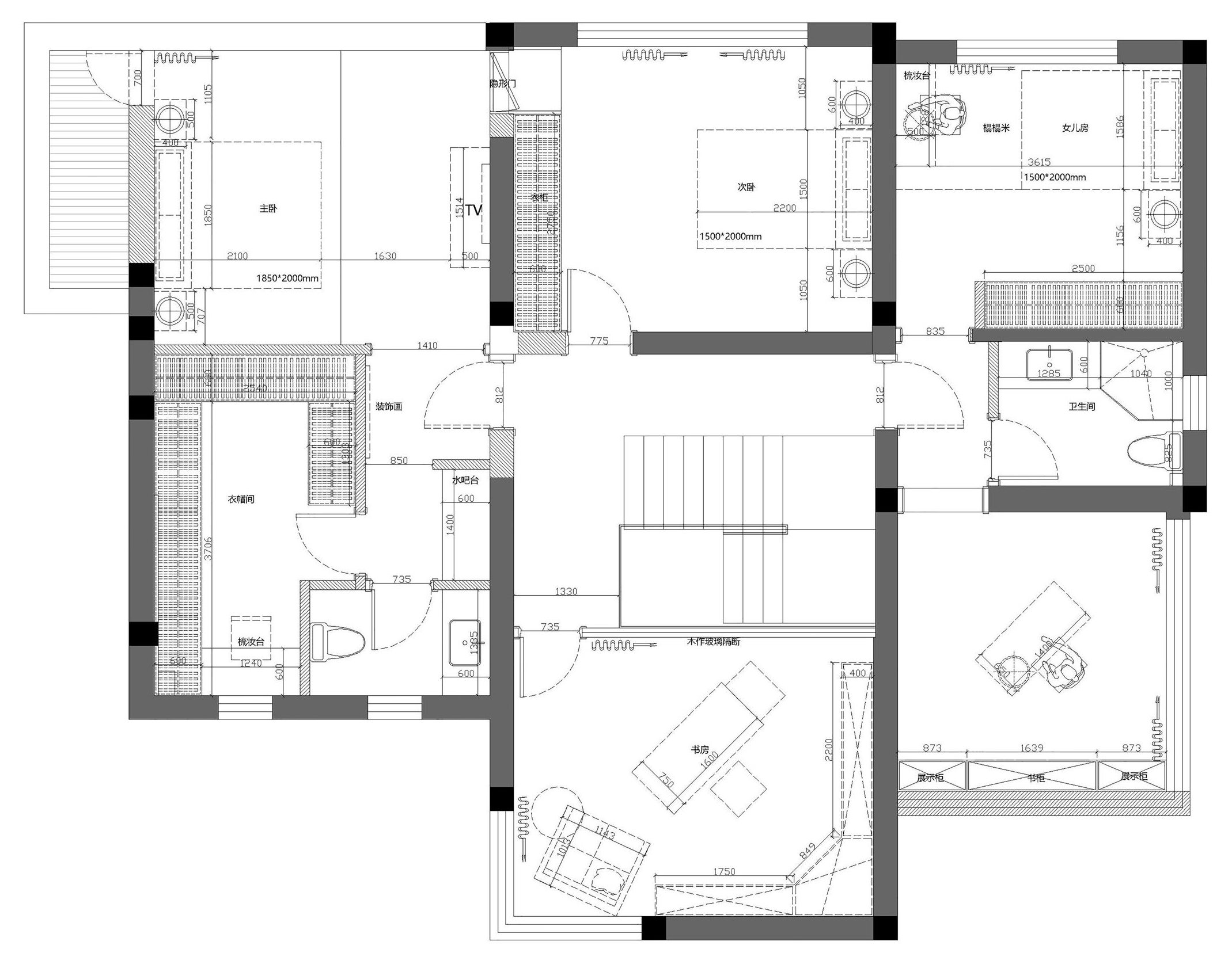
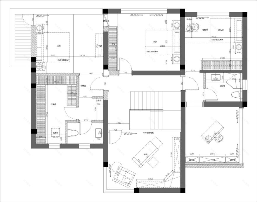
- 平面布局图 -
F1
F2
- 玄关 -
加宽的双开门设计,高挑的悬浮吊顶,干净简洁的直线条……
这些现代风格的设计手法,完美融合了木格栅和收纳间的双移门这些日式元素。
玄关的木格栅,让递进的空间若隐若现。整体的原木基调在白墙的映衬下,显得纯净、通透、明亮。
- 客厅 -
作为全屋的重点——客厅,我们结合了屋主的生活习惯,打造了一间反传统非主流的客厅。
屋主喜欢放空的感觉,喜欢空间的绝对自由,反对用沙发茶几这些固定件去填充空间。
每天的闲暇时间喜欢喝下午茶、冲咖啡,制作一些甜点和简餐。
于是我们的客厅里,你看不到沙发、茶几和电视,只有一方大大的中岛台和一整排的收纳柜。
暗藏的投影幕布取代了电视。
重新安装了整面落地窗后,屋内更为通透,充满了自然气息。
长长的窗台变身为一排带收纳功能的卡座,随意丢个懒人沙发即可打发一下午的慵懒时光。
院落虽然不大,但足以赏尽春去秋来、冬温夏清的自然小景。
功能强大的收纳柜,可以收纳各种屋主心爱的器皿酒水和收藏品。
- 餐厅 -
原本餐厅与门厅之间是连通的,我们用一面半透的丝麻质地的垂帘作为隔断。
不仅采光不受任何阻隔,空间顿时多了几分若隐若现的飘逸感。
一套明清风格的餐桌椅是屋主多年前寻获的宝贝,有着深厚的感情,于是也带到了新家。
为了配合餐桌椅的调性,还专门买了一组中式的餐边柜,
让整个餐厅呈现出新中式的感觉,却也毫无违和感。
- 厨房 -
中厨地面依然通铺木地板,搭配白色系橱柜,更显得整洁明亮。
- 主卧 -
主卧的整体氛围更简约与随意,并透着一种度假民宿的天然质朴。
整面的大窗边放置一把藤编的休闲单椅,可以想象清晨的阳光洒落窗前的无比惬意和温暖。
- 次卧 -
- 多功能房 -
二楼一间朝南的房间作为未来宝宝的游戏室,目前可作为全家人的休闲书房来使用。
房间的功能性有时候反而需要足够的放空,以充分考虑未来的可变性。
- 榻榻米客房 -
另外一间次卧,设计成了榻榻米房。可作为二楼的茶室、客房兼书房使用。
- 卫生间 -
客服
消息
收藏
下载
最近








































