查看完整案例

收藏

下载
每一个品质、美好的居家,都是一家人对于未来的希翼,家中有梦想中的美妙,又充满现实的烟火气。生活即艺术。
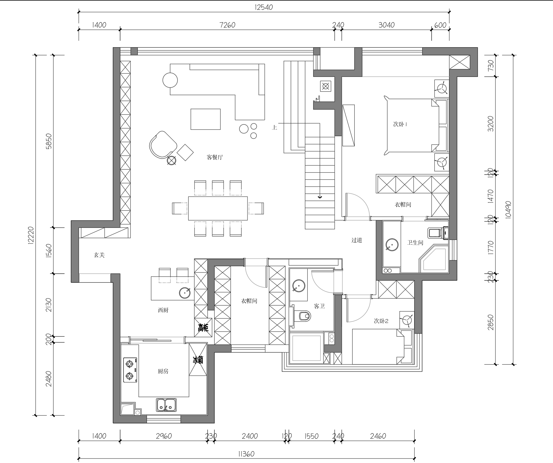
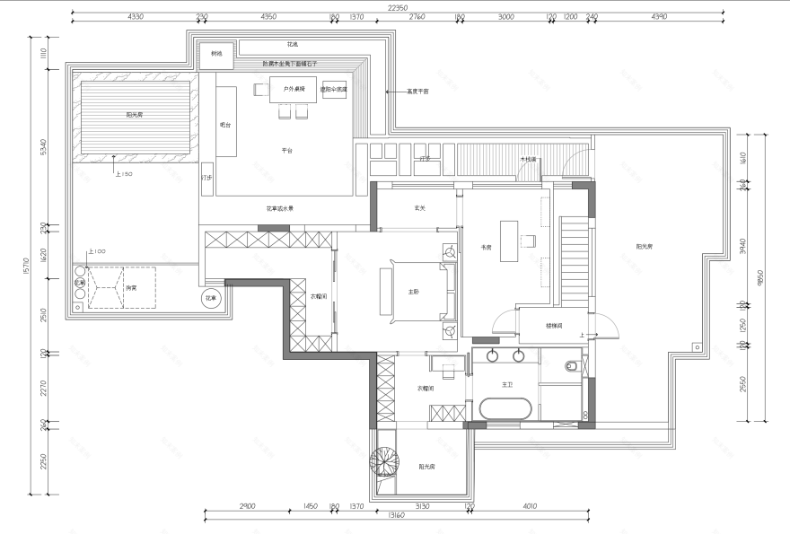
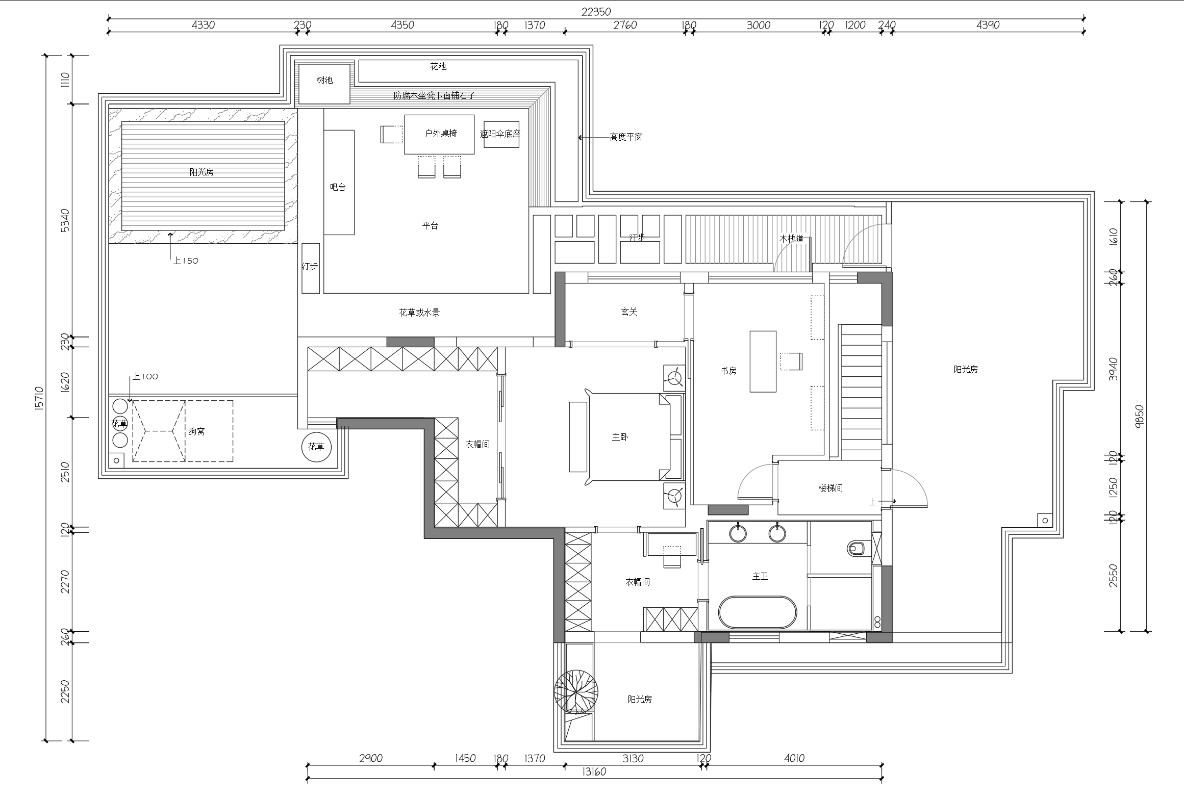
户型图
▲一层平面布置图
▲二层平面布置图
整体色调偏高级灰一些,舒适的家具、新潮的饰品,舒适与质感并进,据说小两口是留学归国,无处都体现出客户的品味。略有一种“乍见之欢不如就处不厌”的家居体验。多一份奢华就变得俗气,多一份简约就成了简陋,每一处布局都恰到好处。
独立的衣帽间,充分满足了业主的生活需求及心理满足感。
置身于顶层的花园,一切美景,都让每一个小确幸都藏在这个家里每一个角落,城市喧嚣好像被按下了静音键,这一刻,疲乏好像也被遗忘。
项目地址:宁波-私宅 设计单位:玖乐装饰 执行设计:陈建腾
客服
消息
收藏
下载
最近






















