查看完整案例

收藏

下载

翻译
Architects:POLYGOON Architectuur
Area:2880m²
Year:2022
Photographs:Jessy van der Werff
Manufacturers:Reynaers Aluminium,Vectorworks,Wienerberger,Gealan,MAKZZ,Mastersystems
Lead Architects:Domien Boits, Bram Van Bouwel, Ine Heynen, Vladdi Theuns
Structural Engineer:Sweco
Main Contractor:Bouwonderneming Damman
Technical Services Engineer:Studie 10
Construction Support:Spoor 9
Client:Woonmaatschappij Thuiswest
City:Diksmuide
Country:Belgium
Text description provided by the architects. Located near the center of Diksmuide, two sturdy blocks emphasize the entrance to the ‘Tuinwijk’ subdivision project. According to the local authorities, this is the last of the city’s infill projects, one on a largely undeveloped site adjacent to an existing green, garden neighborhood. The new subdivision consists of a traditional ensemble of (half)open and closed buildings: two-story houses with side and front gardens where cars are parked.
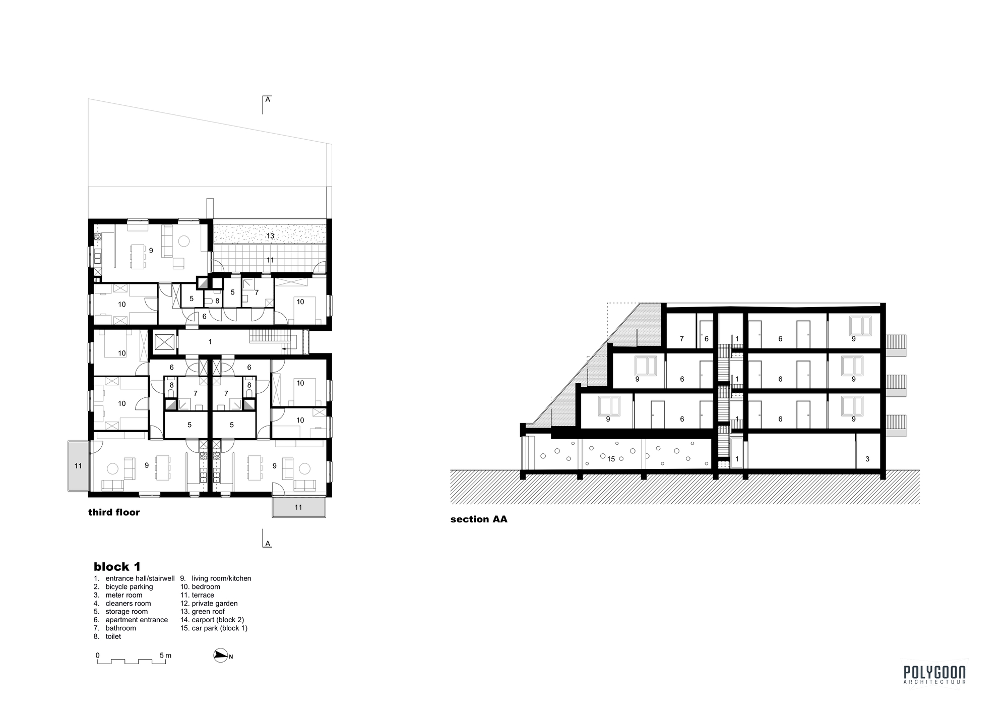
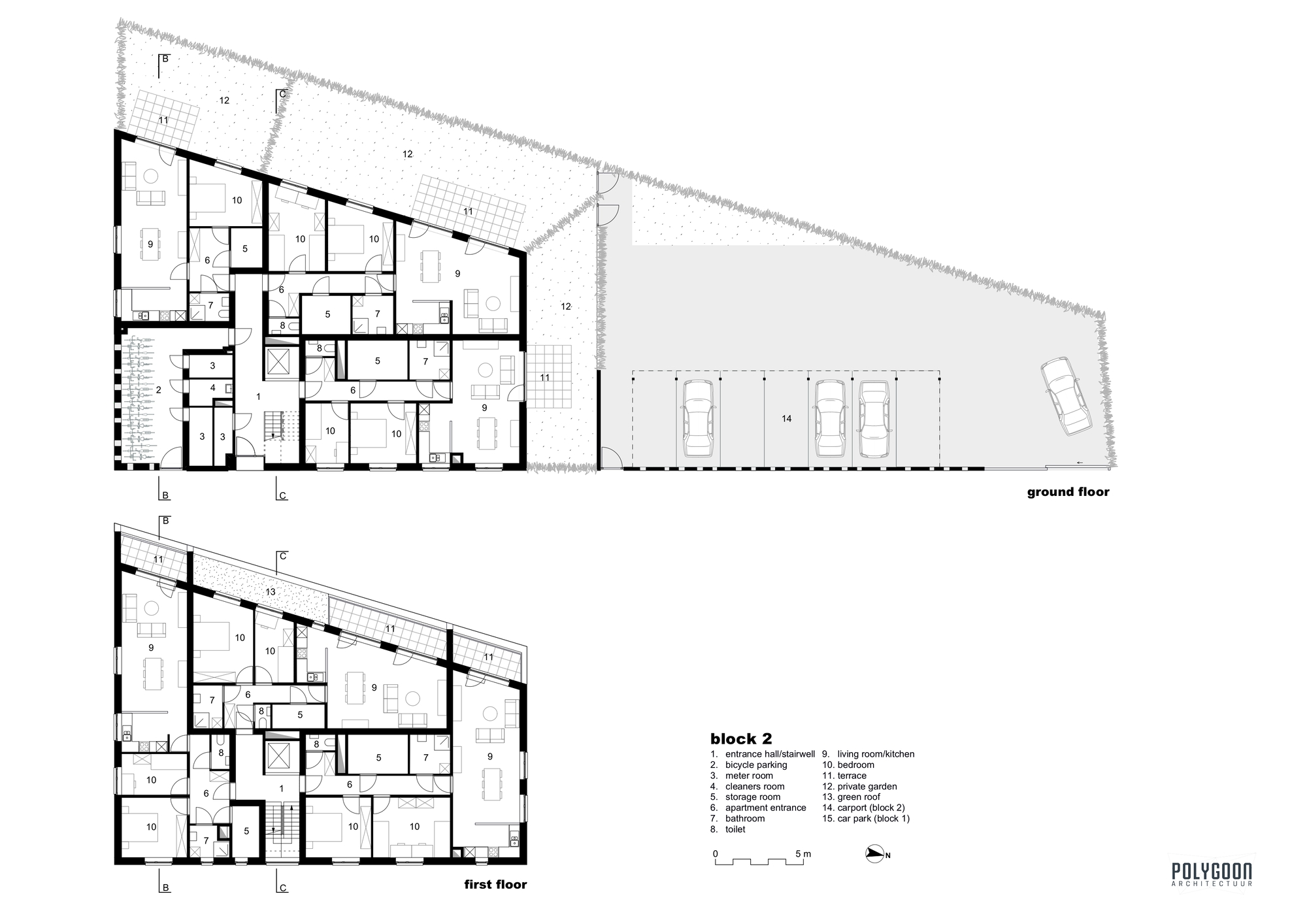
The first houses built in the neighborhood reveal a streetscape dominated by cars, carports, and garage doors, spread out along the new streets. The two social housing volumes, totaling 22 apartments, common bicycle parking, car park, and carport, take a radically different approach to the question of housing demand. The apartments are very compactly stacked. This allows open space to be created between the buildings, which becomes public domain despite the relatively small plot size. This urban square on the western side of the subdivision completes two other public zones located in the central and eastern parts of the neighborhood.
Each residential unit extends over several facades with beautiful views and has a spacious, sunny, private outdoor space. Although many apartments have the same layout, the clever window compositions are not repetitive. So not only is every apartment different, but the facades are also freer, less disciplined, and not a literal interpretation of the interior layout.
Detail: the brickwork of the facades is defined by their contours; a stretcher bond for the facades with flat roofs and a raking stretcher bond where the roof edge is angled. Both entrances intersect the building volume and are emphasized by pigeon blue window joinery, through which the stairwell becomes visible – one that is executed in the same materials as the balconies with balustrades. Inside, red-brown accents combined with wooden finishes lend warmth to the living spaces.
The brick volumes rest on a concrete plinth, behind which the bicycle and car parking spaces are located. An important aspect of the design is the integration of bikes and cars into the building. How can we remove the car from the streetscape in the most well-considered way possible, without creating a dead space? Circular openings in the prefab concrete arouse curiosity in those passing by and allow interaction between them and the residents.
Dynamism and liveliness are created between private and public. It is an interesting exploration of how we can meet the need for parking and remove the cars from the streetscape in an original manner, without it being an excavated hole or an enclosed space. No blind walls, but a permeable boundary between public and private.
Structurally, the project was a challenge: the buildings are supported by pile foundations, whereby a prior bomb detection took place for all 120 piles as the site was full of explosives from World War I. Through this project, we touch on a number of important themes such as social housing, compact and affordable living, scarcity of building sites, the interaction between public and private spaces, and the issue of parking, all of which give the project an important social relevance.
Project gallery
Project location
Address:Galopstraat 1/2, 8600 Diksmuide, Belgium
客服
消息
收藏
下载
最近
































