查看完整案例

收藏

下载

翻译
Architects:SEITARO ASO ARCHITECTURE INC.
Area:393m²
Year:2023
Photographs:Takuya Seki,Arata Noguchi (SAA)
Manufacturers:Aica,Sangetsu,Toli
Structure Engineering:Tatsumi Terado Structural Studio
MEP Consultants:Ryo Miura LLC
Construction:IWAMOTOGUMI CO., LTD.
Architects:Seitaro Aso, Arata Noguchi
City:Ota City
Country:Japan
Text description provided by the architects. The apartment complex stands on a site facing a shopping street.
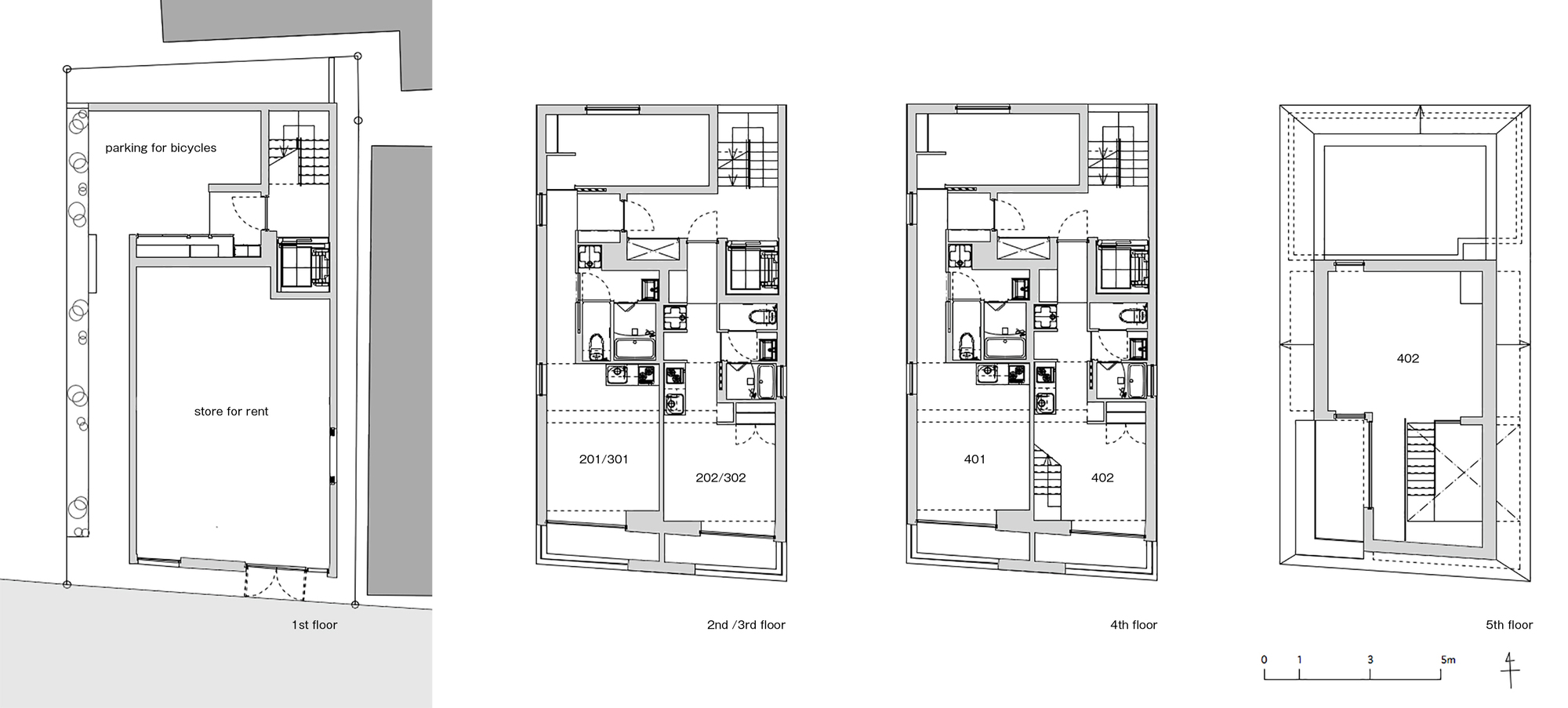
The street is busy with people and cars coming and going throughout the day. The client requested that the first floor be rented to commercial tenants in line with the surrounding buildings and that the second through fifth floors be residential units primarily for single occupants. The project's main theme was to create a calm and relaxing living environment by blocking the view and sound from the street while still conveying the liveliness of the shopping district.
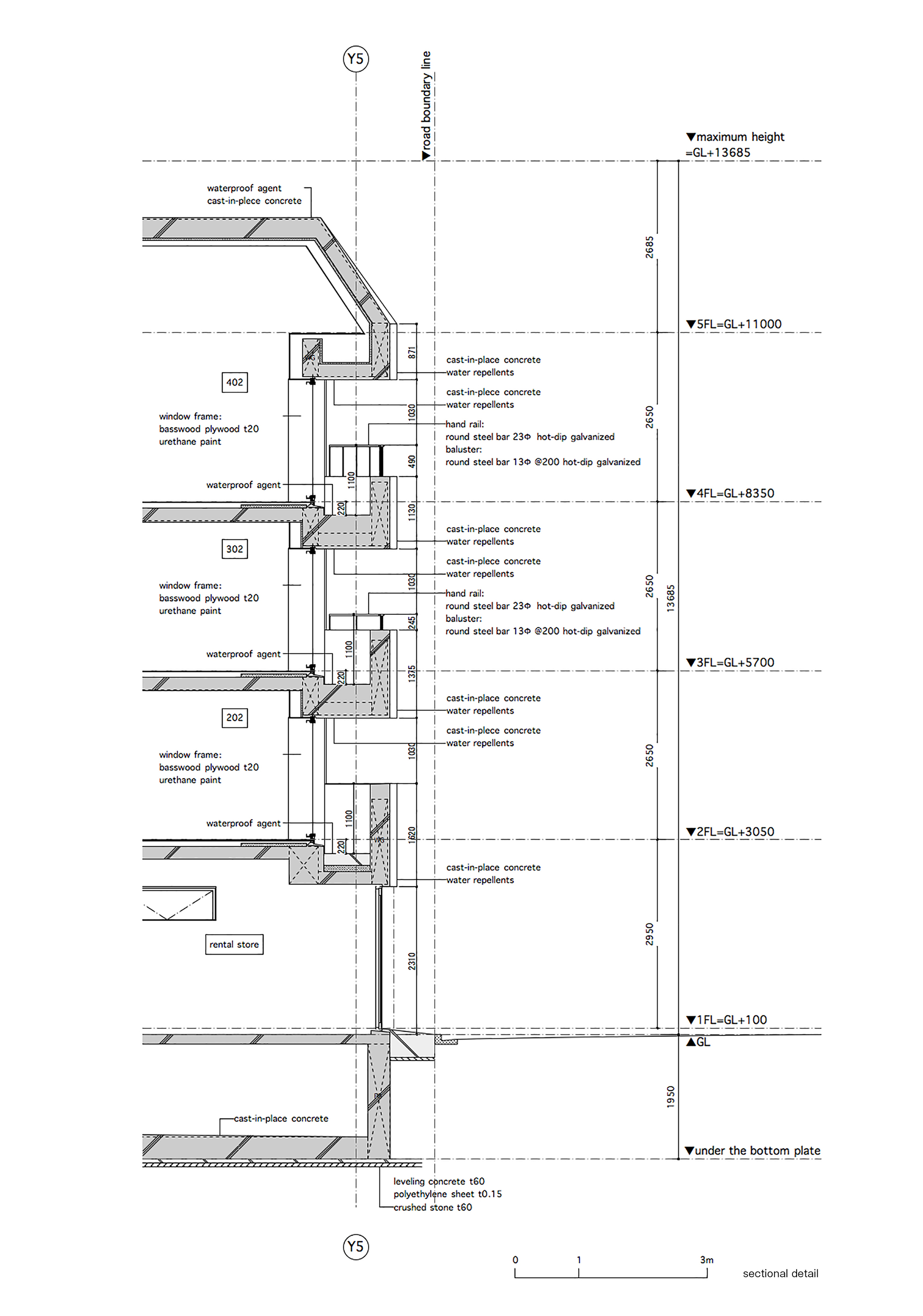
Our idea was to adjust the relationship between inside and outside by running concrete bands around the four sides of the building, floor by floor, and varying the height. The height is up to 1100 mm from the floor on the second floor, 850 mm on the third floor, and 600 mm on the fourth floor. The upper floors are more open, and the rooms are brighter. In general, larger windows on the lower floor would be better, considering room brightness alone. But in this case, glances and sounds from the shopping district are significant issues, so the concrete bands on the lower floors rise the highest to block them.
The concrete bands, a response to the surrounding environment, were carefully detailed to give the building a unique character. Drainage joints in the balcony eaves were omitted to enhance the voluminous impression of the concrete bands. Shoring posts were slightly lowered at the eaves side during concrete casting, creating a slope to prevent water intrusion.
The windowsills on the adjacent land boundary side, eliminating flashing hardware, were shaped using mortar so that the top of the drainage slope aligns with the top of the concrete bands, reducing unnecessary lines. The white-painted bearing walls cover outdoor units of the air conditioners and water heaters on the balconies, enhancing the abstract impression of the elevation and creating a clean and crisp appearance. Windows were opened between the concrete bands and framed with basswood plywood on the interior side. The floor-length windows facing the street also have 400 mm-deep basswood plywood frames.
They allow people to touch and lean on them, creating a place to stay for a moment at the interface between the shopping street and the interior. The skirting boards and wooden doors were also made of the same material to avoid spaces assembling readymade products only while considering the functional aspects. The edges of these components reveal laminated layers, subtly suggesting a visual connection with the concrete bands on the exterior.
Project gallery
Project location
Address:Ota City, Tokyo, Japan
客服
消息
收藏
下载
最近





























