查看完整案例

收藏

下载
艺术的伟大意义,基本上在于它能显示人的真正感情、内心生活的奥秘和热情的世界。
——罗曼·罗兰
The great significance of art basically lies in its ability to show people true feelings, the mystery of inner life and the passionate world.
——Romain Rolland
艺术是一座载体,人与时间、思考与创造、新生与艺术,用色调与室内本身创造出的语言共筑一个时空。真实的体验与漂浮于内心之上的感受,在有形与无形之中穿梭,视觉在不同的维度间跳跃,这一刻空间因颜色而有了温度。
恬静·梦幻·优雅
Serene·Dreamlike·Elegant
在恬静优雅的慢生活里思考生活的艺术,在舒适简单的空间里感受生活的张力。本案设计师从年轻女性的感官出发,以粉色、橘红色为主色调,用浅绿作为点缀,勾勒出恬静优雅的舒适空间,设计了一套贴合现代女性审美的样板间,让空间因为明亮的颜色而有了生命的温度。
圆形暖色灯光与自然光影的交相辉映,共同营造一场如梦似幻的童话美梦。早晨的阳光透过轻盈的纱窗,恬静地飘落在童话美梦空间的每一个角落。交错的光影随着时间变换而发生角度转移,为每一种介质蘸抹上淡粉的色泽。
放慢脚步,享受生活。恬静空间里的舒适生活如同一抹温暖的阳光,撒入心房。静下心来细心插花,精心布置齐餐具,放上一块午后甜点,倒上一小杯水果酒,独享恬静生活。餐具的圆形设计给人带来安静、和谐的舒适感。
恬静的慢生活需要心灵的栖息空间。在恬静淡雅的温暖色调下,白描的绘画手法塑造的洁净画面,使得原本点缀其中的橘色显得愈加活泼。泼墨纹理肆意挥洒在毛毯上,仿佛在一张硕大的宣纸上尽情作画,如同抽象水墨画一般伴随主人堕入梦乡。
深浅颜色的点缀宛如蜻蜓点水般柔美,又如同身着典雅含羞的女子娓娓道来,一切都在矜持中绽放。轻触水面的暗力、水面微颤的张力,激荡四周的水纹都在微纹雕刻的圆盘饰物中体现。
在儿童房中,充满奇妙童真的设计使我们在有限的空间里找回无穷无尽的想象力,跳入爱丽丝追赶揣着怀表、会说话的兔子的奇妙幻境。
自由的个性表达在本案的空间设计中奏响悠闲与时尚的一阙和谐协奏曲,诠释时尚精英阶层小资生活的优雅艺术美。
时尚·前卫·神秘 Fashion·Avantgarde·Mysterious
本户型着力于新锐的艺术表现力,追求时尚的前卫和神秘的自由,以蓝、灰为主色调,用不同饱和度的色调充盈整个住所。穿梭在深邃的空间里,感受轻奢的高品质生活。
蓝灰混合成的冷色调营造出家居的品质感。落地玻璃为地毯铺上光线的质感,在地板上得以延展,仿佛冬天薄薄的冰湖上轻铺一层雪花。冬阳照射下的光线虚实若幻地透射在客厅地面上,为它增添几分神秘色彩。
静立一隅的画饰展现时尚之美,仿佛开启三道通向不同情感世界的大门,让人深陷其中。物我交融的设计中尽情展示前卫之美。对生活的热爱蕴藏在细节里,皮质高端座椅摒弃多余复杂的支架结构,给视觉与触觉带来的舒适感,是身体的释放,也是精神的享受。
餐桌上的装饰物是精神追求的集中体现。物质与精神的边界在此弥散,营造出静谧而又富含格调的闲适光景。在兼顾美感的同时注重实用,客厅和餐厅分隔的格局,使得视觉效果在实用价值中得到完美诠释。
主卧引入现代简约美学,灰色沉静而内敛,在介于黑白的灰色空间中,用星空蓝加以点缀。
黑色的复仇者联盟标志毫无违和地与周围不同饱和度的灰色系融合在一起,彰显高品质生活底下,蕴藏的那颗永远年轻的心。光线在反光材质的标志上来回折射,带有方向箭头的大写英文字母“A”为次卧增添几分动感与节奏感。
色彩的使用大胆而灵活,运用跳跃的黄、蓝进行颜色碰撞,让儿童房充满了年轻的朝气与活力。镜子前陈列的潮流玩具则体现孩子活泼、爱玩的天性。
美存在于生活,对于美的追求,不止于人,也不止于物。本案设计师用想象和创造在设计中捕捉生活之美,试图实现时尚与独特共生的空间。让色调和温度在小资的生活格调中相遇,演绎出现代都市美学与时尚神秘的心灵居所。
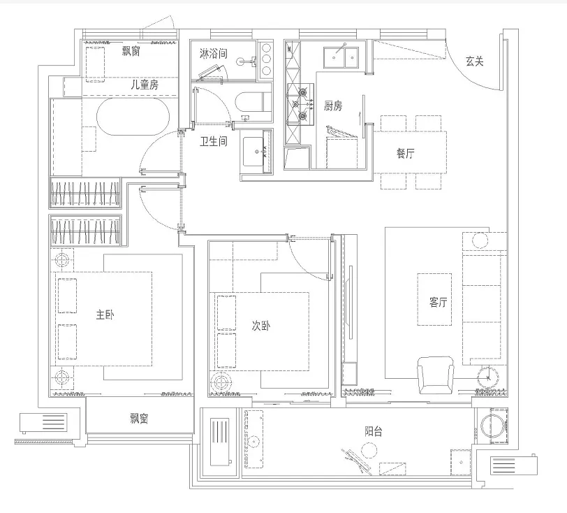
A 户型
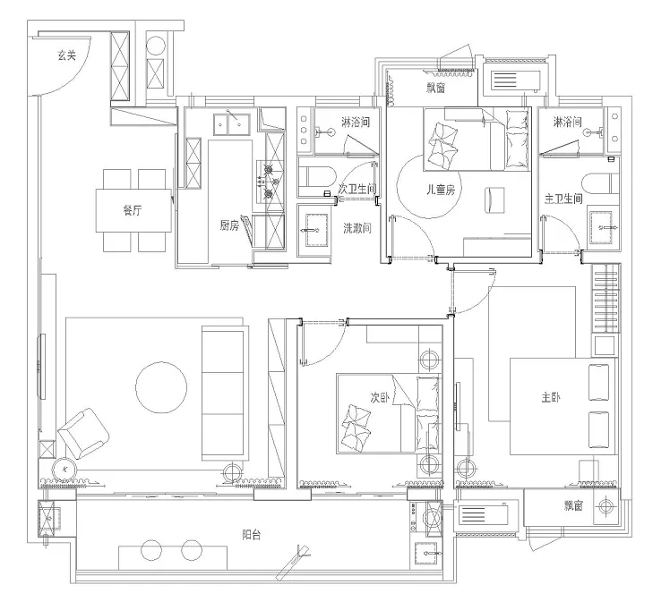
B 户型
项目名称 | 绿滋肴绿梦·洪洲书院样板间
项目地点 | 江西南昌市
完成时间 | 2020 年 12 月
业主单位 | 江西绿滋肴置业有限公司
业主团队 | 冷龙、李娜、李广、吴迪
软装设计 | 设计四组@GNU 软装事业部
设计总监 | 龙海玲
创意总监 | 余秋兵
设计机构 | 东莞市金秋装饰设计有限公司
企业网站 |
客服
消息
收藏
下载
最近

































