查看完整案例

收藏

下载
这套案子是我自己的家,因为预算有限,又痴迷改造小房子,2018年,我花光了大部分积蓄,买下了杭州郊区一个奇葩户型的房子。
它算是我见过最渣的户型了,入户开间只有2.5米,纵深长约17米,中间区域几乎没有任何采光,除了5.4米的层高,没有任何优点。这在整个杭州都是非常少见的。
装修这个房子,我没有画任何效果图,只有几张图纸,花了两年多才完成,把这里改造了一个双层别墅。
这是我很喜欢的一张照片,可以看到我在浇筑的时候没有把楼板浇筑过来。留出了一块挑高的空间,这个就是希望空间层次感会丰富,需要“高”来均衡。
客厅沙发选择了一款两人位沙发,舒适度非常好。考虑到有朋友来玩的话就会显得特别局促,所以我又在对面做了一排卡座, 功能上进行互补。
看到这张照片就知道家里的户型多奇葩了,灯光的处理上我格外花了点心思,比如卡座下面暗藏了灯带。
客厅的顶部我用了竹子来做装饰,希望家里有些自然的味道。(竹子一定要选择做过防腐处理的)
这个是俯瞰的角度,特别喜欢这个吊灯,发现这两年出现的特别多。
楼梯是浇筑的,希望尽可能的小,避免遮挡光线。家里没有老人和小孩,所以没有添加扶手。
这个平台是我平时看书的区域,3米高的书架除了放置书籍外,还可以展示收藏品。
原本餐厨区域的封闭式空间也被全部打通,中岛接连餐桌放置在厨房中间的位置,双动线的形式即使朋友们一起来聚餐也不会“堵塞”。
餐厨空间的地面其实是我用的“瓦片” 也是属于很少见的材料。
全屋无踢脚线设计、无门槛石设计。
因为卫生间的压缩,所以我把台盆放置在了公共区域。左右两边做了收纳格子,方便我放置日常的化妆品而又不至于台面是乱七八糟的。
干区采用的大理石类型是:香雪梅
这个就是我的房间了,是主卧空间。放置了一款1.5米宽的床,然后加30公分的榻榻米。
衣帽间常在了帘子后面。
次卧相对于主卧,次卧空间会更加的开阔一些,因为这里原本是主卧空间。
这款“鸟笼灯”来自于海淘,灯的细节蛮体现空间质感的。
卫生间虽然小但是功能又很全。
卫生间四个面全部采用“聚氨酯”这种材料 这种材料也是我第一次使用,但使用下来这个材料非常的稳定。
用了两款不同纹理的“聚氨酯”板材 它的特性是防水、安装简单、环保。
书房空间也是我平时待的时间比较多的空间,地面上我整铺了榻榻米垫子 主要是这个空间比较小,加班累了直接可以躺在上面睡觉。
拱形的造型是希望把光线带到餐厅,不至于有过多的遮挡。而且拱形造型层次感和视觉的冲击力都非常强。
楼梯上我通铺了地毯,楼梯踏面的材料考虑了很多,但是都比较硬 因为楼上基本都是光着脚上去的,所以最终选择了地毯这种形式。
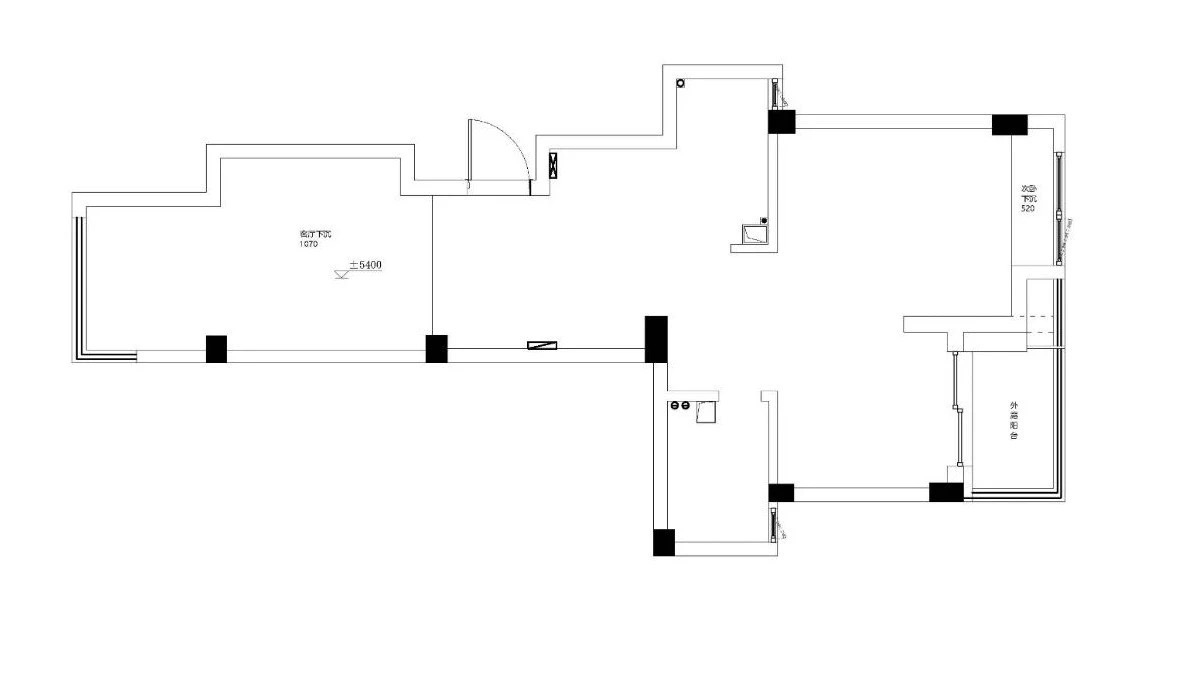
设计图纸
△原始结构图
△平面设计图
△改造后空间解析图
△改造后剖面图
设计团队:墨菲空间研究社
项目户型:3室
使用面积:89㎡
房屋位置:浙江 杭州
客服
消息
收藏
下载
最近




































