查看完整案例

收藏

下载

翻译
Architects:Takehiko Suzuki
Area:68m²
Year:2023
Photographs:Masao Nishikawa
Manufacturers:Hatria,Hotta Carpet,Paffoni
Lead Architects:Takehiko Suzuki
Contractor:Makiya Corporation
Program / Use / Building Function:Apartment
Structure Design:Kenichi Inoue
Curtain Design:Haruka Shoji Textile Atelier
Country:Japan
Text description provided by the architects. This is an interior renovation project of a dwelling unit in a 40-year-old apartment building in Tokyo. The unit with around 70 square meters is renovated as a residence for a couple and a child, plus an office space for the husband.
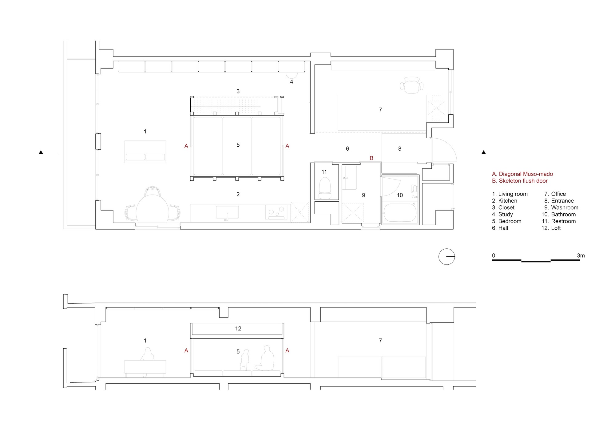
The unit is a corner room on the top floor of the five-story building with windows on three sides. After removing all the original interior work into the skeleton form, we put the office and sanitary on the north side of the RC bearing wall, and the living space on the south side of it.
The living space has a bedroom in its center, and it’s surrounded by a kitchen, living/dining room, closet, storage, and desk space. This layout allows the residents to move around and creates a sense of distance between the residents. At the same time, the layout without dead ends is convenient for distributing the light and wind coming through the windows on three sides into the entire unit. There is a loft above the bedroom, and it is used as a playground for the kid and storage.
In the materialization of the planning above, we’ve implemented boundary surfaces between spaces that can be actively adjusted by the residents. The aim is to create a comfortable coexistence of different activities, moods, also various light, heat, and sound environments, which vary according to the individual's preferences. We’ve focused on the development of these adjustable boundary surfaces, or “fittings.”
With these new fittings which allow light and wind to pass through softly and control the line of sight and presence of residents delicately, we’ve tried to realize an environment expanding and contracting beyond the planning layout, and the rich gradation of life that results from it.
Project gallery
Project location
Address:Tokyo, Japan
客服
消息
收藏
下载
最近
























