查看完整案例

收藏

下载

翻译
Architects:Carr Cotter & Naessens,Denis Byrne Architects
Area:15808m²
Year:2022
Photographs:Paul Tierney
Manufacturers:IdealCombi
Contract Administrator/Assigned Certifier:Denis Byrne
Design Director:David Naessens
Design Certifier:Louise Cotter
Technical:Andy Burdon
Project Architect:Julien Camuset
Project Architect (Façade):John Mark Vinten
Architect:Natalia Cagnone
Technologist:Ola Odunlade
Main Contractor:Duggan Brothers Ltd
Glazing:Hodgins Architectural Facades
Joinery:Gem Group
Structural Engineers:Nicholas O Dwyer
Services Engineers:MMA Consulting Engineers
Quantity Surveyor:John J Casey & Co.
Landscape Architect:Cunnane Stratton Reynolds
City:Dublin
Country:Ireland
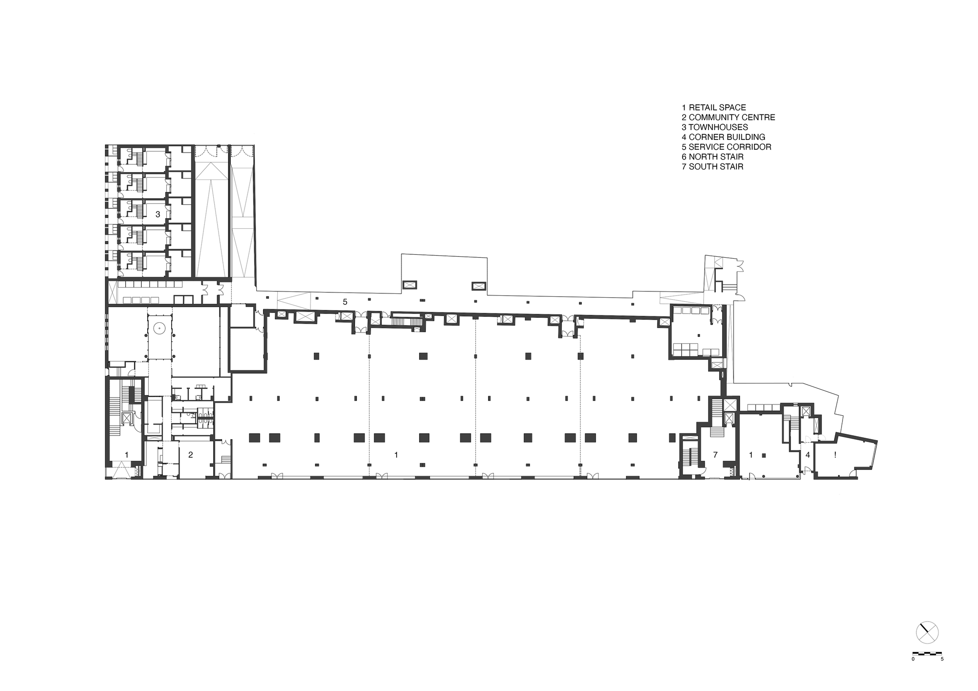
Text description provided by the architects. Project Background/Context. The site is located on part of the previous Dominick Street flats complex on the east side of Lower Dominick Street, Dublin 1, at the junction with Parnell Street. The mixed-use development for Dublin City Council includes apartments and townhouses with a community center and retail space at street level. The six-story block along Dominick Street consists of a terrace of 6 apartment “houses” of 5 stories, providing 67 apartments over the ground floor community center and commercial space. A short terrace of 5 townhouses defines Dominick Place, a new street linking Dominick Street to Granby Place.
Design Solution. The masterplan strategy for this project seeks to reinstate the historically well-defined character of Dominick Street as both place and conduit to the cultural heart of the city. We have reinstated the street face as a brick skin but layered it to provide a continuous south-facing loggia that will provide convivial open space for residents and shelter from the rain. This provides an acoustic and visual barrier for the apartments to the noisy street below.
The corner block on Parnell Street has quite a complex urban task, which justifies a more sculptural form. It must negotiate the different scales of Parnell Street and Dominick Street and read clearly as a distinct building of civic scale, with its own language of openings and material aesthetic. It is a small landmark on Parnell Street for this revived urban quarter. The corner building includes more particular and bespoke accommodation including 3 high dependency apartments with adjustable kitchens and bathrooms with assistive technology.
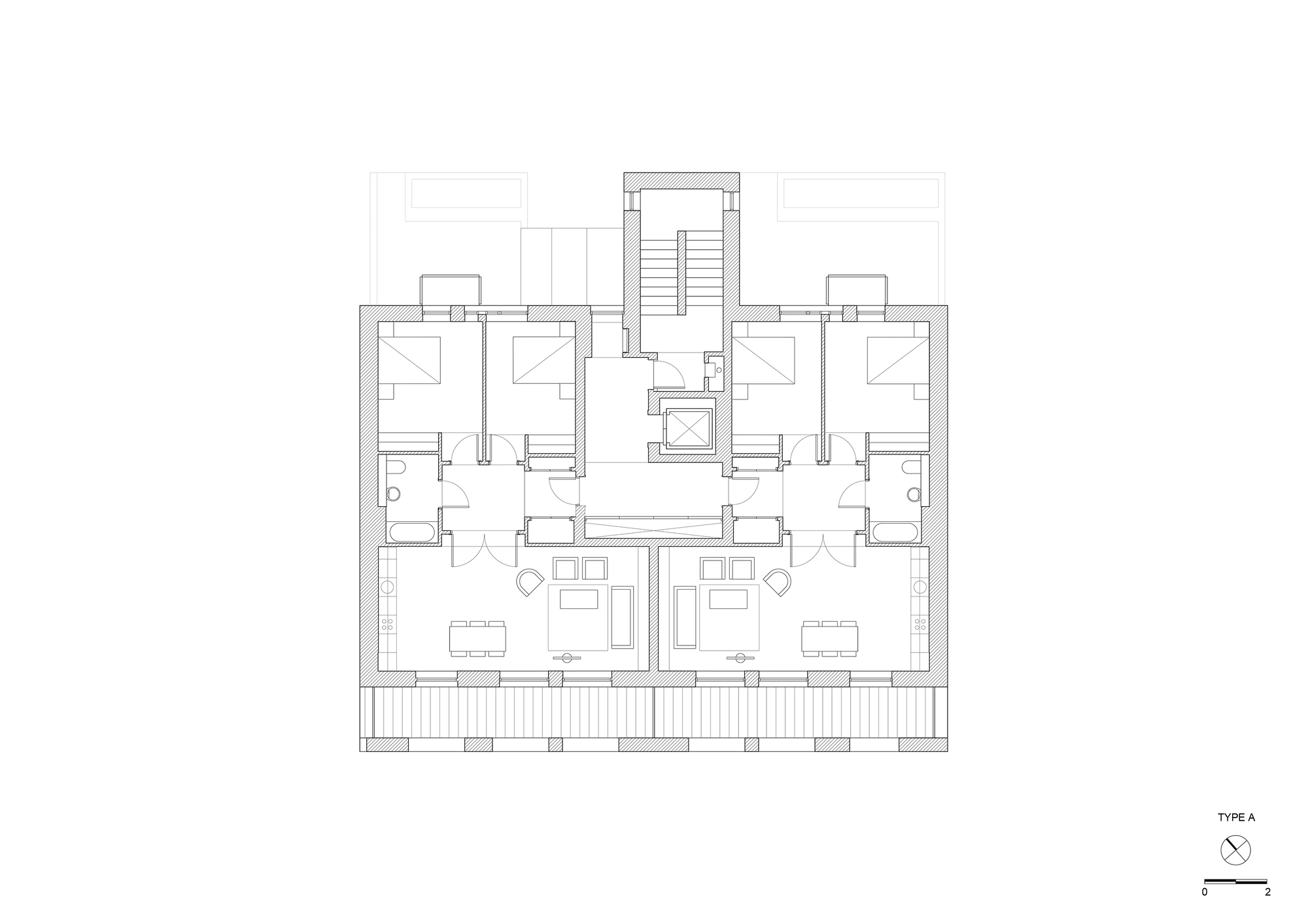
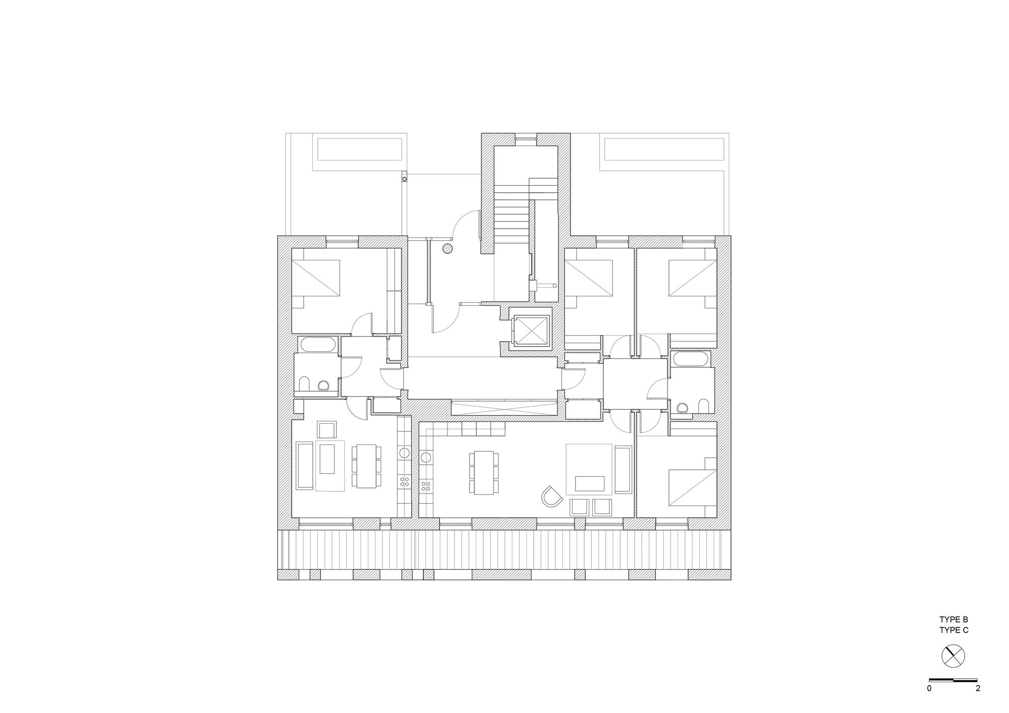
The Apartment House is the building block of the project; there are 6 houses each with stairs and a core arranged along the courtyard. Each apartment has a central hall sized to a turning circle which is placed in the living room to the sunny street side and a pair of bedrooms to the courtyard. The low ceiling of the entrance vestibule accentuates the generous cubic volume of the central hall.
The two main entrances are located off Dominick Street. Each entrance is a voluminous brick-lined hall with stairs and lifts leading to the upper courtyard from where the six apartment houses are accessed. The courtyard is defined to the rear by a story-height raised structure that is planted with a row of trees to screen and protect from wind. The structure below includes storage and plant rooms, and the Marian shrine from the old flats. The garden spaces are landscaped as rooms, including seating areas, lawns, and play spaces.
The courtyard is excavated at one point to create a sunken garden for the community center at street level. The project is designed to achieve NZEB standards. We developed a clearly defined and highly insulated and airtight envelope and care was taken to detail out thermal bridging. The building is equipped with air-source heat pumps, rainwater harvesting, photovoltaic panels, and centralized ventilation systems with heat exchange.
Project gallery
Project location
Address:1 Dominick St, Dún Laoghaire, Dublin, Ireland
客服
消息
收藏
下载
最近





































