查看完整案例

收藏

下载

翻译
Architects:Bauclub
Year:2022
Photographs:Nicolas Da Silva Lucas
Illustration:Stephane De Groef
City:Brussels
Country:Belgium
Text description provided by the architects. As a young office based in Brussels, Bauclub is regularly required to study the ordinary local typology and therefore reflect on how to position itself in relation to its identified constraints and opportunities.
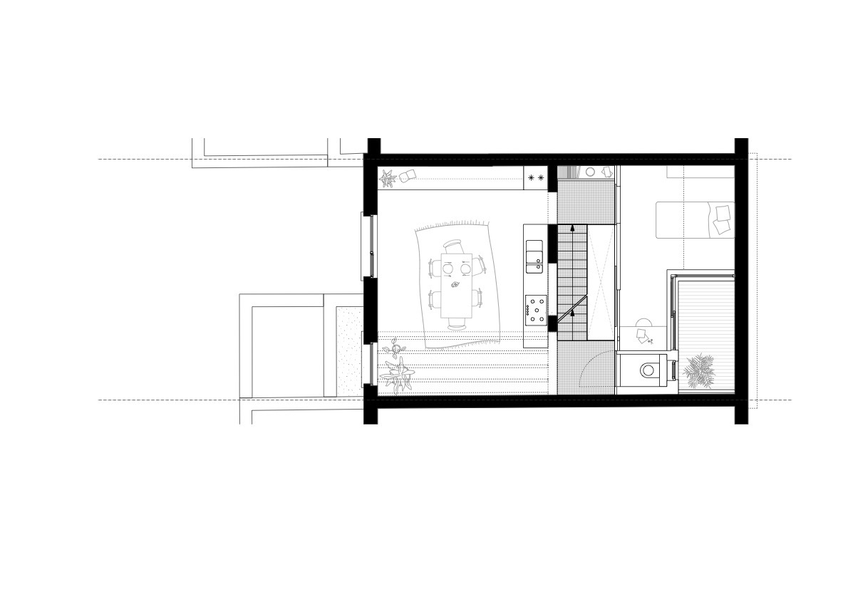
Berk is a transformation project of an apartment on the upper floors of a typical building for a family of illustrators and their daughter.
It is an introverted intervention where only the movement of the staircase reveals the existing context (interior and exterior). This frees the rear façade and brings zenithal light into the vertical void created, a dimly lit space.
Due to the layout, a game of perspectives is drawn: horizontal, vertical, and oblique planes, and visual sequences are created throughout the apartment.
Project gallery
Project location
Address:Brussels, Belgium
客服
消息
收藏
下载
最近





















