查看完整案例

收藏

下载

翻译
Architects:Tchoban Voss Architekten
Area:33875m²
Year:2022
Photographs:Stefan Mueller
Manufacturers:Kone GmbH
Lead Architect:Sergei Tchoban
Structural Engineer:Buro Happold GmbH
Construction Physics:Mueller-BBM GmbH
Landscape Architect:Rainer Schmidt Landschaftsarchitekten GmbH
Lighting Design:Lichtvision Design GmbH
Project Partner:Axel Binder
Project Leaders:Woo- Chung Lee (Residential), Carolin Trahorsch (Office)
Design Team:Giorgi Mjavanadze, Julia Angelstorf, Lev Chestakov, Franziska Dorner, René Hoch, Valeria Kashirina, Manuela Peth, Stefan Petro, Ingo Schwarzweller, Ramona Schwarzweller, Pavel Zemskov
General Contractor :HOCHTIEF Infrastructure GmbH
Building Equipment:Buro Happold GmbH
Facades Consultants:Heidersberger Fassadenbau GmbH
Fire Protection:Krebs & Kiefer Ingenieure GmbH
City:Berlin
Country:Germany
Text description provided by the architects. The Luetzowviertel is centrally located in Berlin between Potsdamer Platz, Tiergarten, and Gleisdreieck Park. 3 Hoefe (Three Courtyards) is a lively, independent quarter entirely in keeping with the courtyard architecture typical of mid-19th century Berlin, which was shaped by the Prussian urban planner and subsequently Berlin city planning officer James Hobrecht.
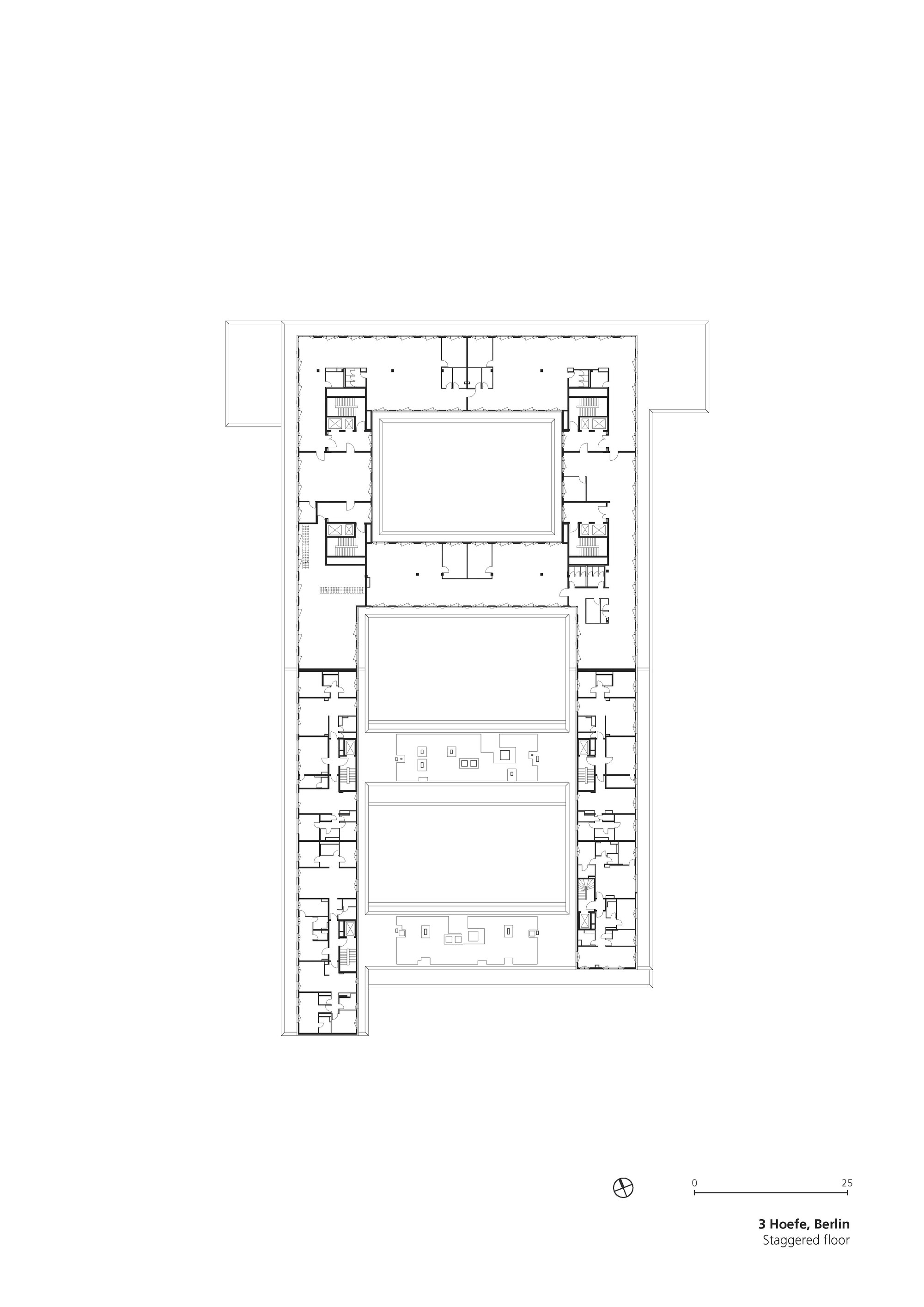
Conceived as a work-life building ensemble, the project provides for a roughly equal mix of residential and work uses. The office section has six full stories and one setback story and comprises over 18,000 sqm of office space. The residential area, with 223 residential units, has seven full stories and one set-back story in the longitudinal blocks, and six full stories and one set-back story in the transverse and central blocks. The buildings are thus grouped around three greened inner courtyards of different designs. In terms of height, this complex blends harmoniously with the neighboring buildings.
The office building has four stairwells, each with two lifts. There are shared lobbies on the ground floor, each serving two staircases; these are accessible from the first courtyard. In the ground-floor street-side units, retail units enrich the neighborhood’s infrastructure. The office space can be flexibly divided up with up to seven units per floor. Parts of the roof areas are extensively greened.
The flexible apartment types include studios, apartments, maisonettes, and penthouses, offering great scope for individual design. Most of the apartments have outdoor areas, which take the form of terraces on the ground floor and set-back floors and balconies on the standard floors. The set-back floors create generous roof terraces which are connected to the penthouse apartments. The other roof areas are also extensively greened.
The façades vary in design. The residential part of the building shows clear parceling. The façades of the residential buildings emphasize the colorful individuality of each house. Socle areas are made of clinker brick slips; from the second floor upwards, the finishing material is plaster (exterior insulation and finish system (EIFS)). The street façade of the office building is also of clinker brick slips and is structured with offset pilaster strips and cornices. Windows and sheet-metal panels alternate. On the courtyard side, the picture is the same, but from the second floor upwards, the facing material is again plaster.
An underground car park with approximately 115 parking spaces underpins both parts of the building. The basement also houses storage rooms, a bicycle cellar, and technical equipment.
Project gallery
Project location
Address:Lützowstraße 107, 10785 Berlin, Germany
客服
消息
收藏
下载
最近






































