查看完整案例

收藏

下载

翻译
Architects:Heide & von Beckerath
Area:12400m²
Year:2021
Photographs:Andrew Alberts
Manufacturers:Bega,FSB Franz Schneider Brakel,RZB,Villeroy & Boch
Structural Engineering:Pichler Ingenieure GmbH
Structural Physics:Andreas Wilke Ingenieurbüro
Project Architects:Dörte Böschemeyer, Daniel Bruns, Giulia Maniscalco, Anahit Meliksetyan, Patrick Zamojski
Building Services:IBP Ingenieure GmbH & Co. KG
Fire Protection:brandkontrolle Andreas Flock GmbH
City:Fürth
Country:Germany
Text description provided by the architects. The site of a former mirror factory is located between Wilhelminian housing on Lange Straße in the southwest and Dr.-Mack-Straße in the northeast near the water meadows on the river Pregnitz at Fürth’s city park. It is accessible from both streets and runs transversely to a story-high drop in the terrain. The old forge is the only remaining building on the site. The party wall of a neighboring building forms the north-western boundary. A new development is anticipated along the southeastern border. The after-use of the industrial site gives significant impetus to the urban neighborhood’s transformation and the innovative form of housing lends it model character.
The program was developed in close consultation with the future residents and in a dialogue with the city of Fürth. The building joint venture’s aspiration for community-oriented living in diverse and generation-spanning co-housing led to a mix of cooperative and owner-occupied accommodation. A housing cooperative was specially set up in which the owners are sustaining members. Of the eight sponsored apartments, four are available for refugees and several of the cooperative’s apartments are rented by the Lebenshilfe Fürth e.V. charity. The PEN-Club offers another apartment to exiled writers. A neighborhood center sponsored by the city serves as a hub for neighborhood issues and local initiatives within the building.
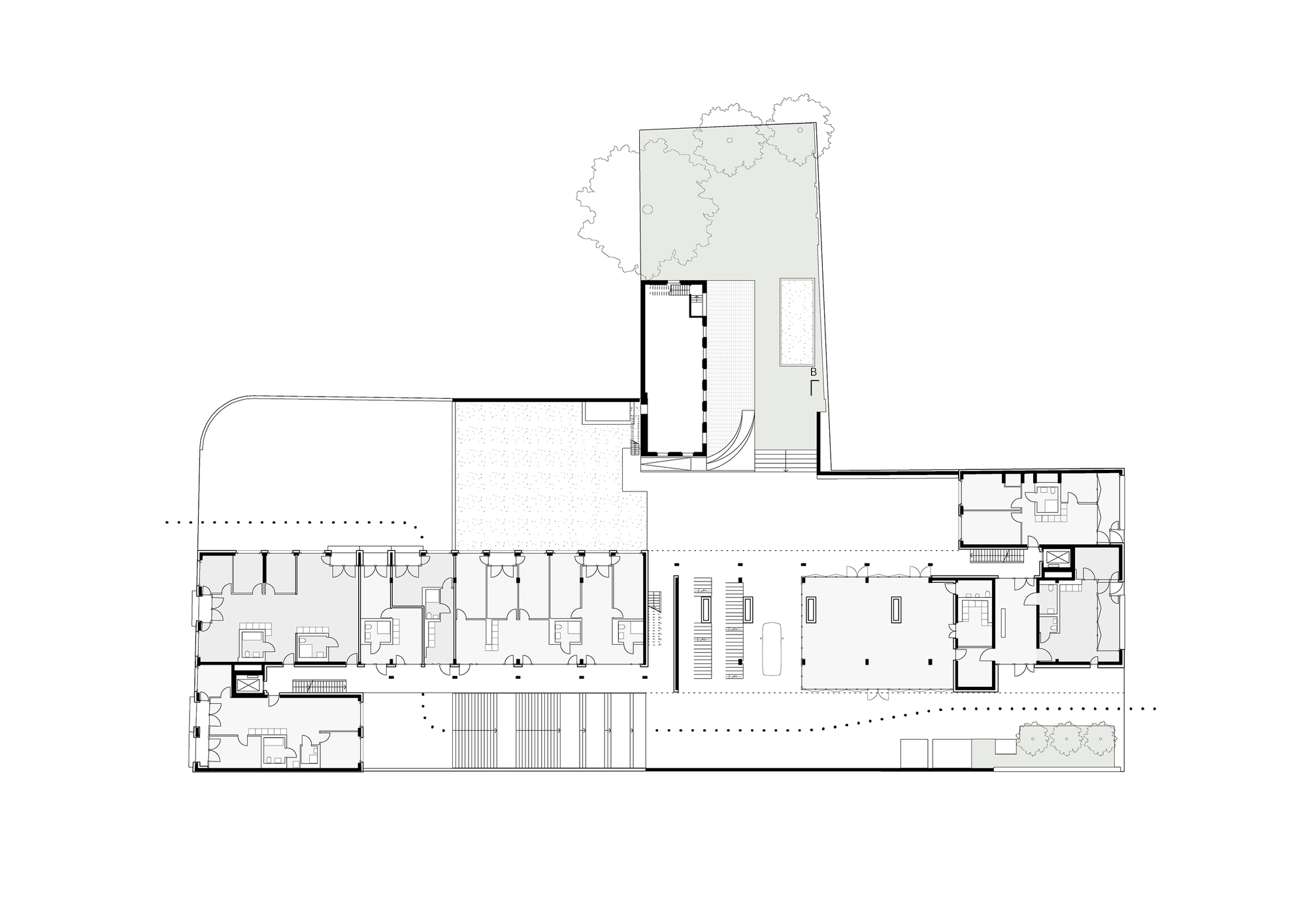
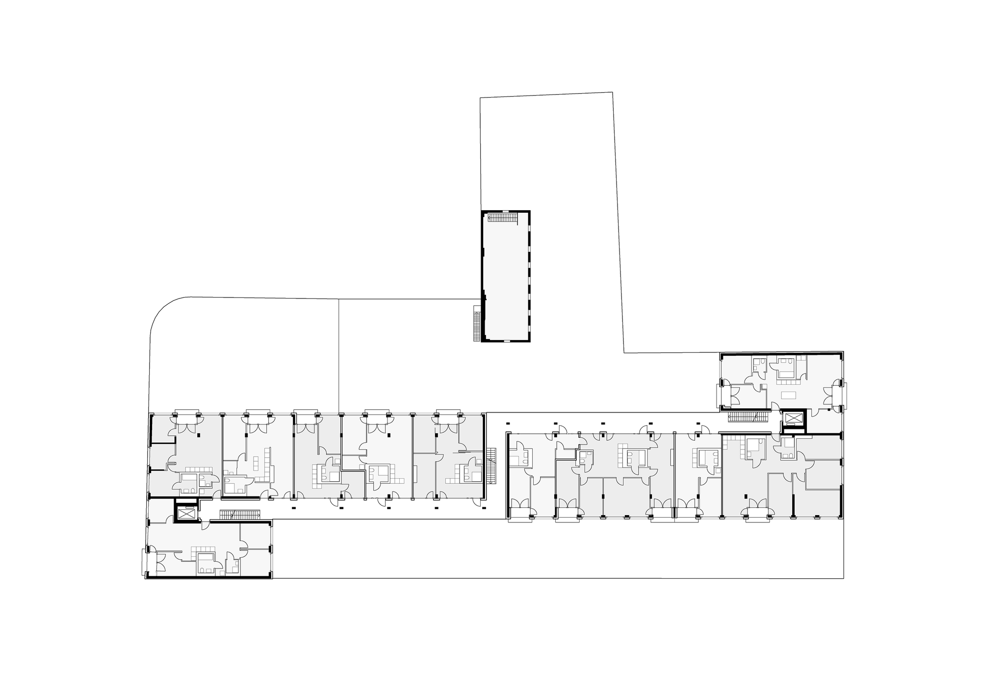
The Spiegelfabrik development provides a communal residential scheme with a social and environmental focus. It consists of two end buildings and a connecting building that is accessed along alternating balconies. The site’s special characteristics are exploited to set the proposed uses in a spatial context with open spaces. These include different types and sizes of apartments in various locations, communal rooms, a workshop, and a parking deck.
A public path leads along the building connecting the two streets; the drop in the terrain is negotiated via a broad flight of steps. The maximum utilization of the plot and the resulting density defines three high-quality open spaces. They are a courtyard along one of the site boundaries, which is accessed from Lange Straße, a lower courtyard accessed via the public stairs, and a garden at the former forge. The roof contains another communal area that is intended to be used as a garden.
The architectural design at the Spiegelfabrik is reflected in a fine balance between private and public. T-shaped pillars divide the access balconies into an open space immediately outside the apartments and the open corridor, which also serves as a meeting place where neighborly relationships can be forged. In the center of the building and adjacent to the public access is the Spiegelsaal, a communal space with a kitchen, whose entire frontage can be opened up towards the courtyard and garden. The flight of stairs also serves as an informal place to sit or it can double up as stands.
The old forge will accommodate bicycle, pottery, and wood workshops plus a workspace for residents. Negotiations for the complex space allocation program as well as the layout and fittings for the apartments were accomplished with a robust and efficient basic structure, borrowed from industrial architecture. A frame of reinforced pre-cast concrete elements was combined with lightweight construction to allow a flexible arrangement of partition walls in the detailed horizontal and vertical configuration of the apartments. Kitchens and bathrooms were arranged around the vertical shafts to meet individual needs.
Sustainability plays a major role in the design, construction, and operation of the Spiegelfabrik building, and also in neighborly living. The building is a hybrid construction with 80% of its external walls made from prefabricated timber panels. The aim was to use mostly durable materials that are environmentally and health compatible. Bespoke construction elements were used on the timber-glass facades and the pivoting windows.
A good standard of insulation and modern building services achieved high energy efficiency. A gas-fired condensing boiler and its own gas-fired cogeneration plant deliver heat and power to the building. Photovoltaics contribute to reaching 60% self-sufficiency in power supply. A car-sharing scheme reduces the number of required car parking spaces. Intensive and extensive green roofs and gardens help prevent overheating in summer and provide a pleasant micro-climate. The open spaces serve as rainwater buffers during rainstorms and create valuable habitats.
Project gallery
Project location
Address:Fürth, Germany
客服
消息
收藏
下载
最近

























































