查看完整案例

收藏

下载

翻译
Architects:A-lab
Area:2426m²
Year:2022
Photographs:Jean-Pierre Mesinele
Manufacturers:Bronze Copper Cladding,Cedar wood cladding
Lead Architects:A-lab
Client:V7 Eiendom
Landscape Architect:Landskaperiet
Contractor:Bunde Bygg
Country:Norway
Text description provided by the architects. Villa Asker transforms an existing commercial site into a modern residential typology set in a spacious green outdoor area in Asker, a municipality in the vicinity of Norway’s capital Oslo. Located opposite the brutalist council hall, “Asker Rådhus”, and set on the outskirts of “Asker Hageby”, a garden village from the 1950s, Villa Asker inhabits a central junction with apartments within walking distance from the town center and the forest “Vestmarka”, making a visible statement of the municipality's investment in quality architecture.
The idea behind the saw-toothed form is to break up the volume of the new building to respond to the scale of the site and the context of the garden village typology. Seen from the air, the alignment of the displaced volumes follows the lines of the semi-detached houses at the rear. The shifting of the façade also breaks up the size of the building and curves it toward the street. The roof is covered with sedum moss that soaks up rainwater and at the same time creates a smooth transition to the landscape silhouette to the west.
The facade is clad in untreated cedar that achieves a warm patina, echoing the wooden facades in the neighborhood. Varying widths of the cladding and slanting of facade surfaces towards entrances, terraces, stairwells, and roofs form a subtle play of volumes and shadows throughout the building's facade. Untreated copper details have been added on both sides of the building as a modern ornamentation that interacts beautifully with the cedar.
On the entrance side, the copper accentuates the entrances and stairwells towards the street, with the copper plating creating slanted angles in a play between vertical and horizontally slanted shapes. On the western side, the copper accentuates the balconies and emphasizes the stepping of the building volume, and creates a contrast against the railings, glass, and slanted wood in the vertical façade.
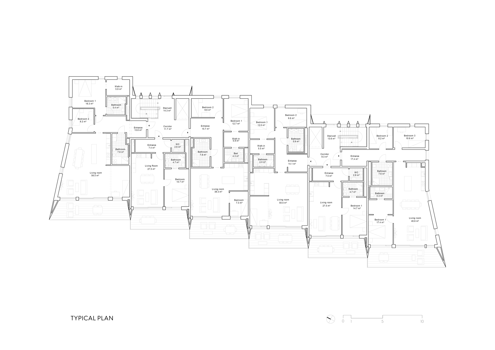
The design of the building creates 22 unique double-sided apartments with great daylight conditions. The varying floor plans range from 56 - 130 square meters with a ceiling height of 2.60 meters. The volumes are partially retracted, with slanted sections that create a warm and intimate zone on the verandas. The detailing in the rounding of the slanted sections on the verandas has associations with the Norwegian boat-building tradition with its artisanal perfection.
The overall quality and precision of the woodwork in the facade help to underpin the entire building's appearance, which is reinforced the closer you get to the facade. Villa Asker has become a visual attraction for passers-by and residents throughout the region.
Project gallery
Project location
Address:Asker, Norway
客服
消息
收藏
下载
最近






























