查看完整案例

收藏

下载
是夜,三五好友小聚,煮茶喝酒,一起聊天吹牛,聊我们的开心生活,吹心中的理想境界。
茶至半浓,酒至半酣,酒话里透出了几句文话直击我们心扉——
“山野外,自在里。左边是茶,右边是酒。”
我们感动着这句酒话传递的意境和追求,笑谈着“茶+酒”有着让人变身“才子”、“英雄”的魔力,酝
酿着
一方我们心中的自在空间。那一刻,“自在里”便在我们心里发了芽...
我们茶馆取名“自在里”,主题为“左茶右酒”,是希望此处的空间便是那一注融合的水,是意为以自
在的空间为平台把我们的生活方式,亦或者把我们的快乐带给更多的人。
研茶空间
自古以来,茶与酒代表着两种文化符号,都是生活艺术和社交场合中必不可少的两种中国传
统文化,它们经历着岁月的洗礼并且历久弥新。
问世于一千多年前的王敷《茶酒论》,最后以水的加入结束了茶、酒对垒。
空间的内核文化是茶酒论,是历代很多专家学者都在研究的,归根结底是一种生活状态。生活
亦修行,我们自得其乐,快活自在,亦茶亦酒,也是我们可以驾驭一切的一种心态。
私人品鉴室
茶家具展区
过 道
茶器展区
我们想赋予“自在里”一个属性:它是喝茶空间,也是一个可以放松喝点小酒的自在空间。
茶与酒,一个冷凝低回,一个沸腾奔涌,超脱而现实,出世也入世,看似对立的文化元素,在
“自在里”这个空间不但可以保持各自真实和谐共存,还互为作用产生了一种新的开放性和丰富
性,我们希望在这里能让人既有喝茶的雅兴,也不尽怀风流的闲心。
茶 室
空间是舞台,家具是角色,灯光是表情,主人则是空间的灵魂。而问山茶馆的两个灵魂恰好
是一茶,一酒。
在家具设计上,我们与“野木1978”老马做了深入的讨论。我们需要有舒适的沙发,有内涵的
我们从一个“谦卦”的讨论开始,从挖掘文化为导向,一直到我们生活的状态,每个尺寸和材
质都是相互交流的结果。于是有了“卦相桌”、“无序茶桌”、“三姑峰柜”、“纵横茶柜”。
“问山茶馆--自在里”承载着主人陈会长(问山茶友会会长)和王馆长(原中国茶叶博物馆馆长)
的茶叶情怀,承载着他们用茶酒诠释美好生活的愿望,同时也是
踱.Design和问山茶馆的第一次深度思考与体验,关于茶,关于酒,关于空间,关于生活方式。
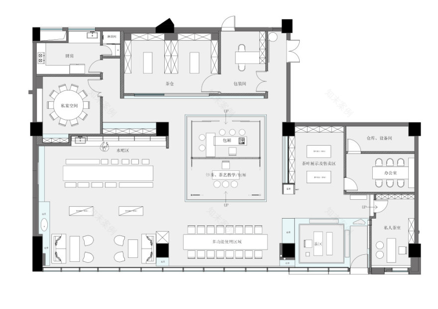
平面布局图
项目名称:问山茶馆--自在里
项目地点:杭州市滨江区南环路4280号 汇智地大厦
项目类型:商业空间
面 积:360 ㎡
空间设计:踱.Design
平面设计:玺莱文化
家具设计:野木1978
空间摄影:南垚视觉
施工团队:杭州踱影装饰设计工程有限公司
竣工时间:2020.11
客服
消息
收藏
下载
最近




















