查看完整案例

收藏

下载

翻译
Architects:Studio Cáceres Lazo
Area:385m²
Year:2022
Photographs:Bruno Giliberto,Pablo Altikes
Design Team:Gabriel Cáceres, Daniel Lazo.
Collaborators:John Miller, Tomislav Mímica, Diego Melero.
City:Santiago
Country:Chile
Text description provided by the architects. The city of Santiago, like many other developing world capitals, is experiencing a rapid process of urban transformation. In the last 20 years, parts of the city that had been neglected for a long time have experienced a spectacular increase in real estate development and construction.
The downtown neighborhoods have been affected like no other. Mostly left to economic and institutional roles during the 1980s, the new century has brought a process of constant and exponential repopulation.
Along with positive results such as the revaluation of public space and urban life, the increase in real estate prices and rents is making it increasingly difficult for new urbanites to find housing, while predatory urban practices threaten to erase the very character that led them to these neighborhoods in the first place.
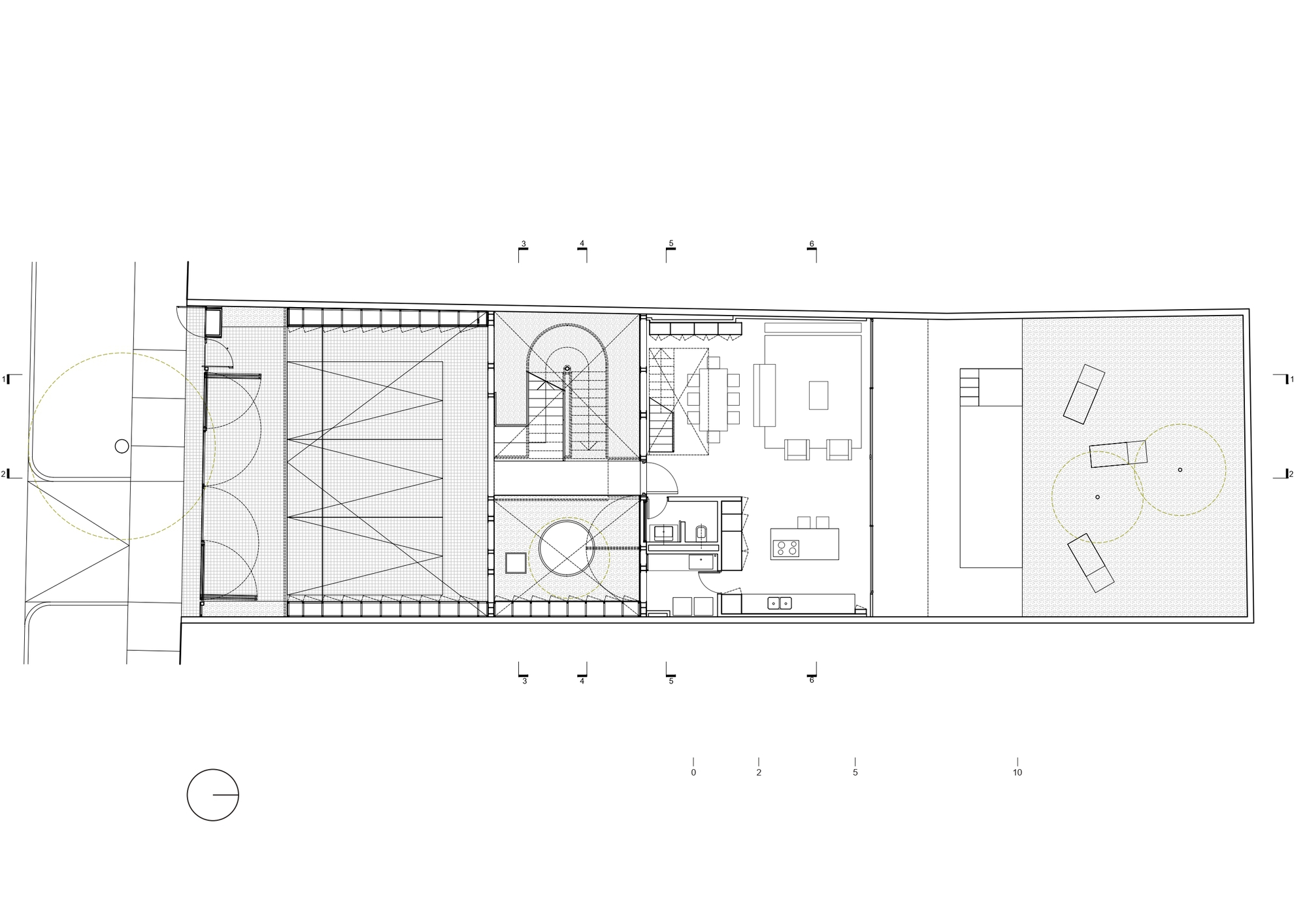
The DSP apartment building proposes a sustainable path for housing development. Fitted into a plot of land previously occupied by a single residence, it is an exercise in micro-scale density.
Within a prefabricated concrete framework, three different types of apartments are housed: a 1,730 square foot duplex on the ground floor with a large backyard; a 700 square foot studio on the second floor; and a 1,400 square foot penthouse on the top that enjoys the entire rooftop.
In the center of the building, an ethereal steel sheet staircase -painted in chalk white- provides access.
The structure of the building is basically a shelf that extends across the property, built with prefabricated walls and a double-tee slab system, traditionally used for multi-level parking due to the large spans it achieves without the need for central support.
This unique feature allows for the multiplicity of typologies within the building, making the interior of each floor effectively independent from the one below. An expanded aluminum veil covers the front and rear façades, providing both shade and privacy from the street.
Thanks to the use of the prefabrication system, the entire concrete structure can be erected in less than 5 weeks.
The DSP building was developed under the program of Ochoalcubo. For over a decade, Ochoalcubo has invested in cutting-edge architecture developments in the second home market, with houses designed by renowned local and international architects - some of them Pritzker Prize winners. DSP is their first foray into multifamily residential developments and construction within an urban context.
Project gallery
Project location
Address:Santiago, Región Metropolitana, Chile
客服
消息
收藏
下载
最近













































