查看完整案例

收藏

下载

翻译
Architects:Hacin
Area:64500ft²
Year:2021
Photographs:Bruce T Martin
Manufacturers:Endicott,Doors: trustile,MGA Cast Stone,Millwork: trickett woodworks,Sioux City Brick
Principal:David Hacin
Project Manager:Matthew Manke
Project Designer:Darien Fortier
Executive Architect:The Holland Companies
City:Boston
Country:United States
Text description provided by the architects. The Factory Lofts is located at 46, 56, and 76 Wareham Street in Boston’s South End. Built circa 1870, the original, three-story structure was owned and operated by the New England Organ Company. The warehouse building was designated for organ production. “The Factory” is an homage to the purpose of the original structure, breathing renewed life into the site’s industrial heritage.
Throughout the project, the design team was faced with three major challenges: 1) how to approach the reconstruction of a historically significant, but structurally unsalvageable building, 2) how to incorporate additional volumes into the original design in a contextually-appropriate way, and 3) how to effectively activate the streetscape of Wareham Street, an up-and-coming section of the burgeoning SOWA (South of Washington) Art and Design District.
The proposed project involved the renovation and maintenance of the south and west facades; both were considered architecturally significant and critical to the building’s overall relationship with its surrounding context. The strong rhythm established by windows and bays as well as the material palette of brick and metal were consistent with that of former mill buildings and other historic structures along Wareham Street. The proposed design added a series of distinct volumes above and behind the existing building, creating an interlocking composition of forms defined by industrial, contextually relevant materials, such as corrugated metal. Three additional floors and a rear addition would be set back from the street-facing facades to maintain the historic integrity of Wareham Street.
Early in the approvals process, it was determined that the original building was structurally unsalvageable, forcing the project approach to pivot from preservation to reconstruction. Assisted by the Boston Landmarks Commission, the design team resisted the idea of replicating the design. They began developing plans for a new building, utilizing innovative construction techniques and materials, and meticulously studying the notable features of the original structure to transition the site’s underlying spirit into the 21st century. The historic structure was torn down, raising stakes to honor its memory in a modern, unique way.
The final design is the same footprint as the proposed one, with an upgraded interpretation of the original building and two larger, darker volumes that rise above and behind. As originally conceived, the added volumes are visible from Malden Street, preserving the sight line and historic character of Wareham Street. The building utilizes an industrial material palette, including red and gray brick, factory-scaled windows, and metal. In particular, perforated screening was used to conceal kitchen and laundry vents, reducing the visibility of mechanical clutter on the exterior of the building. In terms of the Malden Street façade, the material selection was influenced by a rigorous textural study during which the design team studied traditional industrial buildings and took note of square proportions, the repetition of windows, and an overall rigor. \ A range of original building materials were salvaged and incorporated into the final design, including a column from the central entry that was refurbished and installed in the new residential lobby. In addition, metal window headers and sills were repurposed for use in both the residential and commercial lobbies.
The design of The Factory focuses on several aspects of sustainability, including the quantity and quality of stormwater management as well as water and energy efficiency. The installed system results in a 60% reduction in stormwater compared to pre-development levels. The specification of efficient water fixtures results in a 25% decrease in water usage. The project also limits the use of potable water through the selection of landscaping that does not require permanent irrigation systems. In addition, the Whole Building Energy Modeling demonstrates a 25% energy savings as a result of the roof design and wall assemblies, the specifications of glazing systems with improved U-values and SHGC’s, and highly efficient mechanical systems.
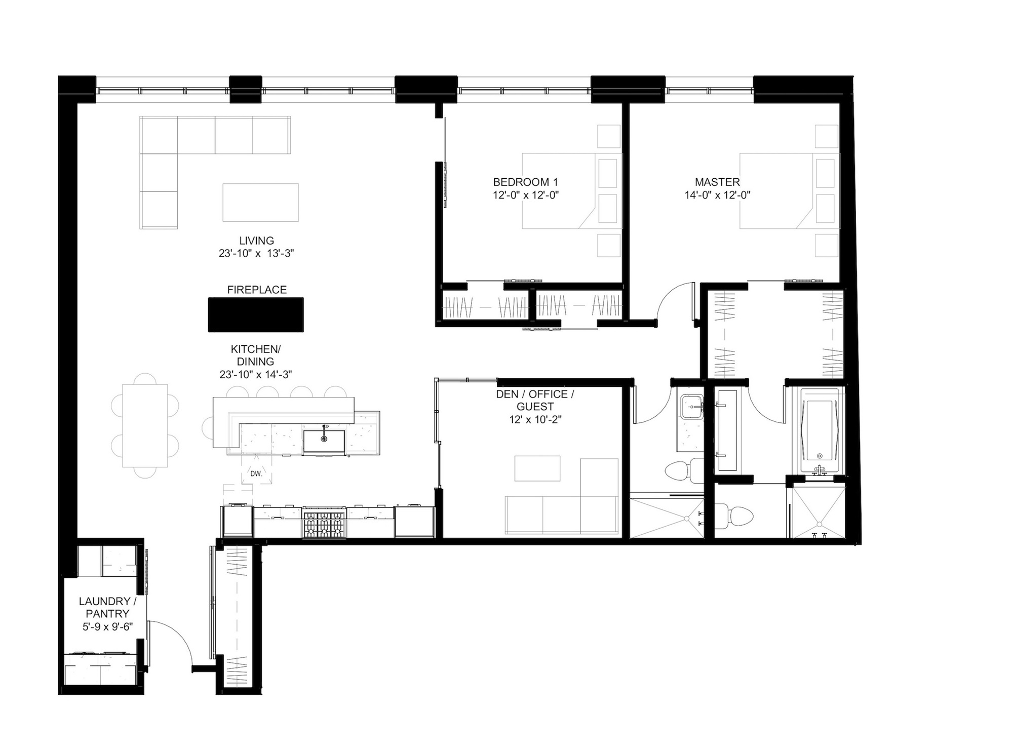
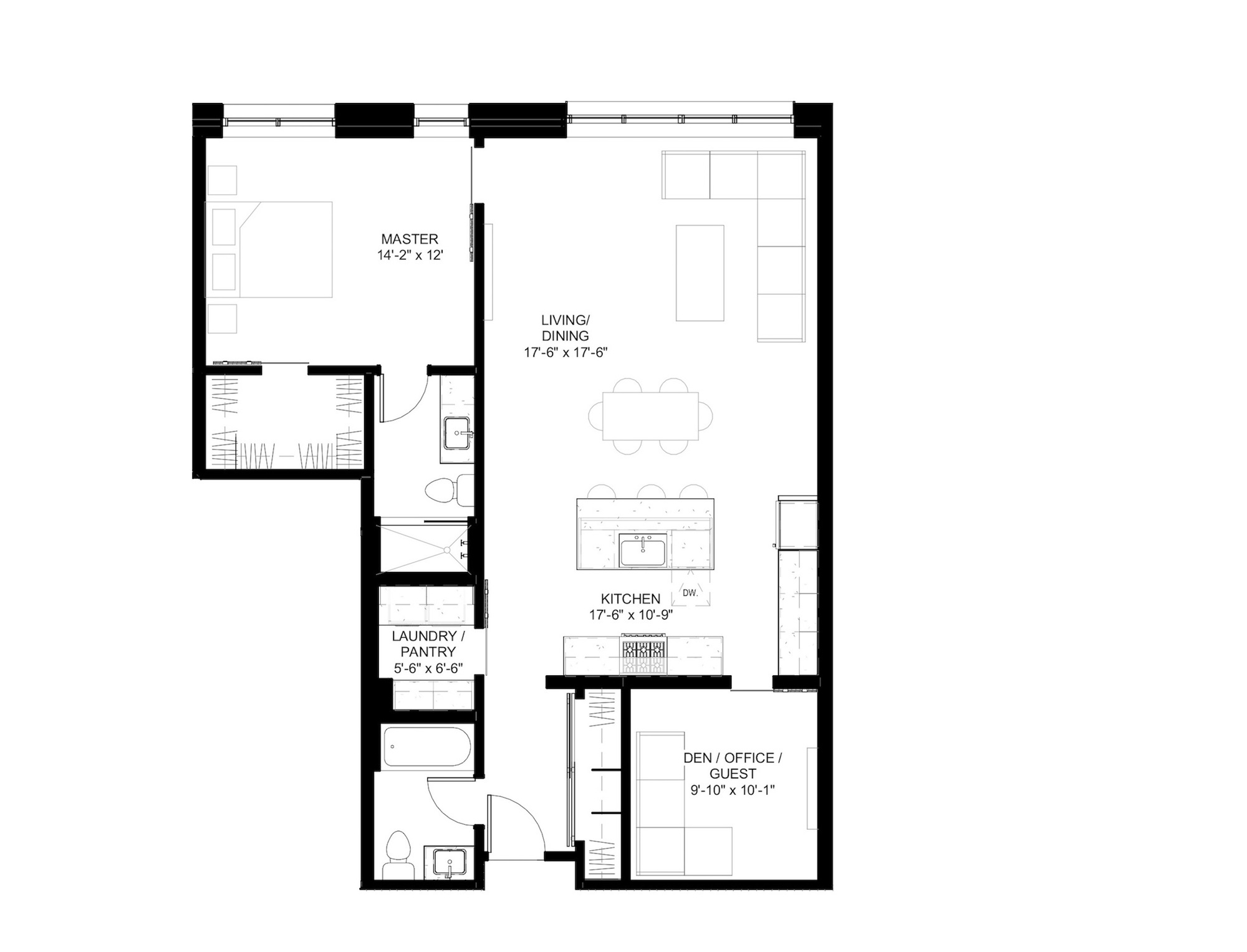
The Factory Lofts was conceived as a mixed-use building, recycling its industrial roots into the modern concept of “live-work space.” At the ground level, retail storefronts are sheltered by a structural steel awning reminiscent of Chelsea Market in New York’s Meatpacking District, adding a layer of cobblestone-street character and industrial texture to this up-and-coming section of the SOWA Art and Design District. The second and third levels of the building are commercial offices, with tenants ranging from a daycare center to an incubator-style studio space for hair salon entrepreneurs to conduct business. The top three levels are luxury residences. Building amenities include a fitness center, rooftop garden, and terrace, as well as an underground, automated vehicle storage and retrieval system, one of the first installed in Boston.
From the start, the significant responsibility to make a surgical intervention in the historically-rich South End neighborhood was recognized. The final design needed not only to serve the community and honor its roots with reverence, but to activate the streetscape, threading the needle of craft and artistry from the galleries, shops, and SOWA events from Harrison Avenue to Wareham Street. The retail storefronts and second-floor commercial spaces have been developed to establish new employment opportunities in the area, and with them, an infusion of creative energy and innovation. From the ashes of its industrial legacy rises a renewed identity in the modern age. Winner of Gold Award, Residential, and Multi-family, 2022 Brick in Architecture Awards.
Project gallery
Project location
Address:76 Wareham St, Boston, MA 02118, United States
客服
消息
收藏
下载
最近














