查看完整案例

收藏

下载

翻译
Architects:OHLAB
Area:3300m²
Year:2022
Photographs:José Hevia
Manufacturers:Dornbracht,Miele,Calizas Capellà,Contain,Elevators,Fontini,Wordlight
Structures:AMM Technical Group
Director:Paloma Hernaiz, Jaime Oliver
Team:Rebeca Lavín, Robin Harloff, Maria Bruna Pisciotta, Mercé Solar, Luis Quiles, Silvia Morais, Ángela Suárez, Wiktoria Ginter, Camila Ospina, Pedro Rodríguez, Laura Colomer, Eusebiu Spac, Agustín Verdejo
Building Engineer:Jorge Ramón
Kitchen Design:Espacio Home Design
City:Palma
Country:Spain
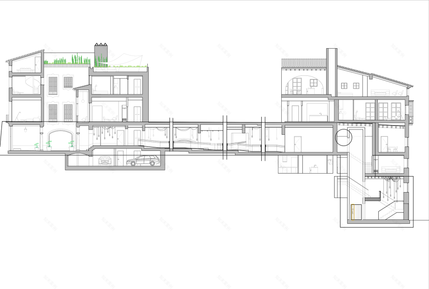
Text description provided by the architects. Can Santacilia is a 3,300 m2 residential project with 15 dwellings and common areas. It is a careful renovation of two buildings located in the heart of Palma de Mallorca's old town. The buildings date back to the 12th or 13th century, although the building visible from Plaça Tagamanent was registered in the city archives in 1576 as Can Santacilia. Since then, both buildings have suffered several modifications, consequently the existing state prior to the OHLAB project is from the 17th century, with a subsequent reform in the 18th century. In addition, both buildings underwent alterations during the 20th century aimed at dividing and converting them into several dwellings, as a result, we found them highly modified compared to their original state.
The first challenge was that of historical responsibility, which began with the investigation of the different interventions over time to discover, recover and give value to the main architectural elements and spaces. We didn’t try to erase and hide the alterations that occurred throughout history in order to recover an ideal past that we don’t really know, instead we tried to discover different stages and interventions, recognizing elements of value in each of them. In order to make this operation efficient and reintegrate the building into the city’s activity, we decided to update their spaces and use them for the 21st century.
On the one hand, a modern, comfortable residential building was required, with all the services and facilities needed for a contemporary lifestyle. On the other hand, we are faced with a complex and divided structure, difficult to integrate with a 16th-century protected façade and volume. The OHLAB renovation project takes advantage of the complexity of existing buildings with the potential to generate unexpected spaces. The intervention solves each house with a distribution and individualized solutions, combined with the new common areas and connections and making up the union of both buildings. The final result is a single building that bases its uniqueness on the recovery of the historical essence and on the commitment to contemporaneity.
A selection of natural, noble, local materials is combined with the introduction of new noble ones, such as antique bronze pieces, local stones, mirrored cloths, porcelain details, local linen, and cotton textiles. The project recovers the entrance courtyard that had been altered in the reforms of the last century, restoring the old splendor of this space.
The courtyard becomes the main entrance to the heart of the building, communicating with the landscaped terraces upwards and with the communal areas such as a gym and an indoor swimming pool with a spa that directly overlooks the courtyard. Despite the constructive restrictions that a historic reform implies in a protected building, the project has been designed from the beginning with sustainability parameters, in order to maximize its energy efficiency, increase thermal insulation, take care of thermal bridges, and use an efficient centralized air conditioning system.
Project gallery
Project location
Address:Palma, Islas Baleares, Spain
客服
消息
收藏
下载
最近




































